Version: 8.25.1Navigation überspringen
390.000 €
5 Zimmer  •  132 m²  •  623 m² Grundstück  •  frei ab 01.09.2026
Immowelt logo

Einfamilienhaus zum Kauf
390000 €
2.955 €/m²
5 Zimmer  •  132 m²  •  623 m² Grundstück  •  frei ab 01.09.2026

Charmantes, überwiegend saniertes Einfamilienhaus in bevorzugter, zentraler Lage

HERZLICH WILLKOMMEN in einem charmanten, überwiegend sanierten Einfamilienhaus mit ca. 132 m² Wohnfläche auf einem ca. 623 m² großen, eingewachsenen Grundstück in zentraler, gefragter Lage.

Hereinspaziert in den Windfang, von dem aus sich zur rechten Seite der Flur sowie das Wohn- und Esszimmer mit Erker und dahinter ein weiteres Zimmer mit einem angrenzenden Ankleidezimmer oder Büro befindet.
Gerade aus vom Flur gelangen Sie in die großzügige Küche mit einer modernen Einbauküche und dann weiter über einen kleinen Flur in das neu gestaltete Bad mit bodengleicher Dusche.

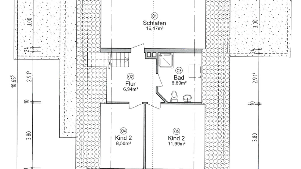
Über die Treppe gelangen Sie in das Obergeschoss mit 3 Zimmern und einem Wannenbad. Über eine Bodeneinschubtreppe können Sie den Spitzboden erreichen, der mit 2 Velux-Fenstern und einer Heizung etwa 28 m² Nutzfläche bietet.

Das Haus hat einen Teilkeller, in dem sich die Öl-Heizung von 2001 befindet.

Im eingewachsenen Garten befindet sich eine große Terrasse mit einem teilweise überdachten Freisitz, ein Abstellraum sowie 2 Garagen (die größere Garage mit einem elektrischen Tor).

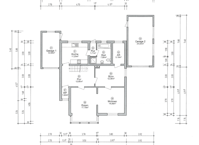
Erdgeschoss (ca. 82 m² Wohnfläche):
- Windfang
- Flur
- Wohn- und Esszimmer mit Erker
- 1 weiterer Raum mit angrenzendem Ankleideraum, Büro oder Abstellraum
- Küche mit Einbauküche
- Duschbad
- Flur in den Garten / Terrasse

Obergeschoss (ca. 50 m² Wohnfläche):
- Flur
- 3 Zimmer
- Wannenbad

Spitzboden:
Nutzfläche mit Heizung und 2 Veluxfenstern. Über die Bodeneinschubtreppe erreichbar.

Teilkeller:
- Öl-Heizung aus 2001

Grundstück:
- Kleine Garage (ca. 12,5 m² Fläche)
- Größere Garage (ca. 24,5 m²) mit elektrischem Tor
- Große Terrasse mit teilweise überdachtem Freisitz
- Eingewachsenes Grundstück

Das Haus steht zum 1. September 2026 zum Verkauf.

Merkmale

  • frei ab 01.09.2026
  • 623 m² Grundstück
  • Einbauküche
  • Badezimmer: Badewanne, Bad mit Dusche
  • Keller
  • Balkon
  • Garten
Das Haus wurde 1936 in Massivbauweise errichtet und im Lauf der Jahre erweitert.

2013 wurden folgende Sanierungsarbeiten ausgeführt:
- Neues Dach
- Elektroleitungen komplett erneuert
- Abwasserleitungen komplett erneuert
- Fenster (2-fach-Verglasung) ausgetauscht
- Haustür und Außentür zur Terrasse erneuert
- Bad im Erdgeschoss neu
- Einbauküche neu (2015)
- Beide Garagen saniert
- In den Wohnräumen Holzdielen (2009)

Der Kaminofen darf nicht mehr betrieben werden.

Grundrisse

Grundrisse
1 / 2

Realisiere Dein Projekt

Bausubstanz und Energie

Energieausweis

  • Baujahr1936
  • EnergieträgerÖl
Immowelt logo

Preisdetails

Kaufpreis
390000 €
2.954,55 €/m²
Provision für Käufer
3,57 % inkl. MwSt. auf den beurkundeten Kaufpreis
Geschätzte Gesamtkosten
437.073 €1
Kaufpreis
390.000 €
Notarkosten (1,5%)
5.850 €
Grunderwerbsteuer (6,5%)
25.350 €
Provision für Käufer (3,57%)
13.923 €
Grundbucheintrag (0,5%)
1.950 €
1Der angezeigte Wert ist eine automatisch berechnete Schätzung von immowelt.
2Bei den Angaben handelt es sich um ortsübliche Werte. Individuelle Kosten können abweichen.

Lage

address-icon
Rendsburg (24768)
Der Anbieter hat die genaue Adresse nicht freigegeben
Dieses schöne Einfamiliehaus befindet sich zentral im beliebten Stadtteil Neuwerk mit vielen Wohn- und Geschäftshäusern in Rendsburg. Der Stadtteil Neuwerk ist ein bei Jung und Alt sehr beliebter Stadtteil mit dem historischen Paradeplatz, um den sich verschiedene Restaurants gruppieren sowie der "Königstraße", die mit einer Vielzahl von Geschäften zum Bummeln einlädt. In Neuwerk lassen sich Wohnen und Arbeiten in gefragter und gepflegter Wohnlage bestens verbinden. Auch die Schön-Klinik als einer der größten Arbeitgeber Schleswig-Holsteins, befindet sich in fußläufiger Entfernung.
Rendsburg mit ca. 32.000 Einwohnern befindet sich im Zentrum Schleswig-Holsteins. Durch die einzigartige Lage am Nord-Ostsee-Kanal und der Eider sowie die sehr gute Infrastruktur bietet die Kreisstadt ein wunderbares Wohnambiente für Jung und Alt. Ob Sie die zahlreichen Schiffe bestaunen oder die vielfältigen kulturellen Angebote nutzen möchten steht Ihnen frei. Wandern, Rad fahren oder Wassersport - für jeden ist etwas dabei. Die medizinische Versorgung durch Fachärzte und Kliniken ist ebenso gewährleistet. Auch Schulen und Kindergärten sind in der Stadt ansässig.
Durch die nahe gelegene A7 werden Städte wie Kiel, Flensburg und Hamburg schnell erreicht. Für Strandfreunde bietet die ca. 35 Autominuten entfernte Ostsee ein interessantes Ausflugsziel und auch an die Nordsee gelangt man in nur einer knappen Stunde Fahrt.

Weitere Informationen

Sonstiges MÖCHTEN AUCH SIE IHR HAUS ODER IHRE WOHNUNG VERKAUFEN ?
Planen Sie den Verkauf oder die Vermietung Ihrer Immobilie, so ist es für Sie wichtig, deren Marktwert zu kennen. Lassen Sie kostenfrei und unverbindlich den aktuellen Wert Ihrer Immobilie professionell durch Mertin Immobilien einschätzen. Zuverlässig. Kompetent. Seriös. Bitte kontaktieren Sie mich gern unverbindlich!

GELDWÄSCHE: Als Immobilienmaklerunternehmen ist Mertin Immobilien nach § 2 Abs. 1 Nr. 14 und § 11 Abs. 1, 2 Geldwäschegesetz (GwG) dazu verpflichtet, bei der Begründung einer Geschäftsbeziehung die Identität des Vertragspartners festzustellen und zu überprüfen, bzw. sobald ein ernsthaftes Interesse an der Durchführung des Immobilienkaufvertrages besteht. Hierzu ist es erforderlich, dass wir nach § 11 Abs. 4 GwG die relevanten Daten Ihres Personalausweises festhalten (wenn Sie als natürliche Person handeln) - beispielsweise mittels einer Kopie. Bei einer juristischen Person benötigen wir eine Kopie des Handelsregisterauszugs, aus welchem der wirtschaftlich Berechtigte hervorgeht. Das Geldwäschegesetz sieht vor, dass der Makler die Kopien bzw. Unterlagen fünf Jahre aufbewahren muss. Als unser Vertragspartner haben Sie auch eine Mitwirkungspflicht nach § 11 Abs. 6 GwG.

HAFTUNG: Wir weisen darauf hin, dass die von uns weitergegebenen Objektinformationen, Unterlagen, Pläne etc. vom Verkäufer bzw. Vermieter stammen. Eine Haftung für die Richtigkeit oder Vollständigkeit der Angaben übernehmen wir daher nicht. Es obliegt daher unseren Kunden, die darin enthaltenen Objektinformationen und Angaben auf ihre Richtigkeit hin zu überprüfen. Alle Immobilienangebote sind freibleibend und vorbehaltlich Irrtümer, Zwischenverkauf- und Vermietung oder sonstiger Zwischenverwertung. Stichworte Nutzfläche: 28,00 m², Anzahl der Schlafzimmer: 4, Anzahl der Badezimmer: 2, Anzahl Balkone: 1, Bundesland: Schleswig-Holstein, modernisiert: 2015

Weitere Services

Lust auf eine Besichtigung?
Eine Frage zur Immobilie?
Nachricht hinzufügen
Mit der Nutzung der oben angegebenen Telefonnummer oder durch Klicken auf „Kontaktieren“ akzeptierst Du die Allgemeinen Nutzungsbedingungen, denen Du jederzeit widersprechen kannst. Weitere Informationen zum Datenschutz

Über den Anbieter

Straße 10, 24784 Westerrönfeld
partner badge
Partnerschaft
Frau Anja Mertin
Frau Anja MertinDein Kontakt
Online-ID: 26NIRDMH47UH
Referenznummer: 11584 - Rendsburg, Königinstraße 31
Mertin Immobilien
title
Mertin Immobilien
Bewertung: 4,5 von 5 Sternen
Nachricht hinzufügen
Mit der Nutzung der oben angegebenen Telefonnummer oder durch Klicken auf „Kontaktieren“ akzeptierst Du die Allgemeinen Nutzungsbedingungen, denen Du jederzeit widersprechen kannst. Weitere Informationen zum Datenschutz
Wie zufrieden bist du mit dieser Seite (nicht mit der Immobilie selbst)?