Version: 8.24.0Navigation überspringen
695.000 €
3,5 Zimmer  •  98,1 m²
Immowelt logo

Wohnung zum Kauf • provisionsfrei
695000 €
7.086 €/m²
3,5 Zimmer  •  98,1 m²

WEINGARTEN: 3,5-ZIMMER-WOHNUNG MIT AUFZUG - PROJEKTIERTER NEUBAU

BAUVORANKÜNDIGUNG:

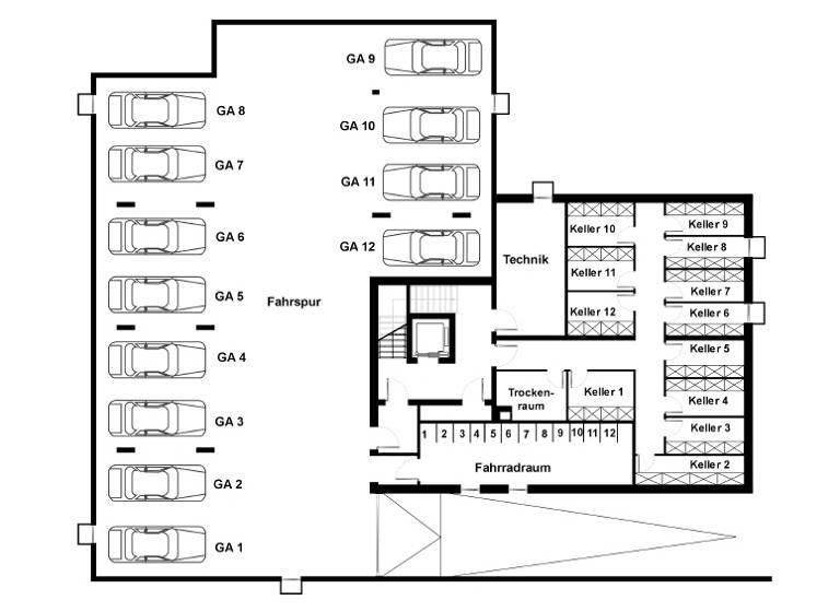
In beliebter Stadtlage entsteht hier ein projektierter Neubau, im KfW 55 Standard, mit insgesamt 12 Wohnungen (2,3,4-Zimmer) und 12 Stellplätzen in der Tiefgarage, mit Wohnflächen von ca. 39 m² bis ca. 97 m².

Der Baubeginn wird, nach Erteilung der Baugenehmigung und ein Verkaufsstand von mindestens 4 Wohnungen, voraussichtlich nach den Handwerkerferien (Anfang September/Oktober) mit dem Abbruch erfolgen können.
Die Bauzeit beträgt nach Baubeginn ca. 15 - 18 Monate bis zur Bezugsfertigkeit.

Die Bauausführung erfolgt entsprechend unserer Bau- und Leistungsbeschreibung, die Sie gerne anfordern können. Das Gebäude und die Gebäudetechnik werden selbstverständlich nach den Vorgaben der jeweils neuesten, gesetzlich vorgeschriebenen Energieeinsparverordnung erstellt. Erstellung und Abwicklung unterliegen der gesetzlichen Vorgaben.

Drei wichtige oft gestellte Fragen:

1)Wie erfolgt die Bezahlung?

Die Bezahlung erfolgt nach den Vorgaben der gesetzlich gültigen und vorgeschriebenen Makler und Bauträgerverordnung, der sogenannten "MaBv", ein Ratenzahlungsplan entsprechend dem Baufortschritt. Erst nach der Fertigstellung des entsprechenden Gewerkes, ist die Rechnungsstellung der Rate erlaubt.

2) Können noch Änderungswünsche berücksichtigt werden:

Änderungs- und Sonderwünsche hinsichtlich der Grundrissgestaltung sind nach statischer und bautechnischer Prüfung, selbstverständlich möglich.

3) Wie lange haftet der Bauträger?

Mit der Bauabnahme beginnt der Countdown für die Gewährleistungsfrist. Da Baumängel am Haus häufig erst nach einiger Zeit sichtbar werden, ist die Gewährleistungsfrist laut Verbraucherschutzgesetzt großzügig auf einen Zeitraum von 5 Jahren bemessen. Die Gewährleistungsfrist beginnt mit der Bauabnahme und gilt für Mängel, die eindeutig auf die Bauausführung zurückzuführen sind.

Haben Sie weitere Fragen zu diesem besonderen Neubauprojekt, dann vereinbaren Sie doch einfach ein ersten, unverbindlichen Gesprächstermin in unserem Hause, in der Schussenstraße 4, in 88212 Ravensburg.

Bauträger und Vertragspartner ist die Hochmann Wohn- und Gewerbebau GmbH.

Der Erwerb ist selbstverständlich provisionsfrei.

Merkmale

  • Personenaufzug
  • Garage
Fordern Sie unser ausführliche Baubeschreibung per Mail an.

Hier einige Features:

* Luft-Wasser-Wärmepumpe (Strom betrieben)
* PV Anlage für Allgemeinstrom und Heizung
* 3-fach Kunstoffenster Verglasung
* Ebenerdige Duschen
* Aufzugsanlage
* Die DG-Wohnungen können einen Kamin- oder Schwedenofen anschließen
* Große Dachterrassen
* Große überdachte Balkone
* Anschlussmöglichkeit für die Elektromobilität vorgesehen
* Zu jeder Wohnung gehört ein Keller

Grundrisse

Grundrisse
1 / 2

Realisiere Dein Projekt

Bausubstanz und Energie

Der Anbieter hat keine Informationen zum Energieverbrauch bereit gestellt.
  • Baujahr2026
  • Zustand der ImmobilieNeubau
  • HeizungsartZentralheizung
  • EnergieträgerElektro
Immowelt logo

Preisdetails

Kaufpreis
695000 €
7.086,05 €/m²
Preis pro Stellplatz
30000 €
Provision für Käufer
provisionsfrei
Weitere Preisinformationen
1 Garagenstellplatz, Kaufpreis: 30.000,00 EUR
Geschätzte Gesamtkosten
743.650 €1
Kaufpreis
695.000 €
Notarkosten (1,5%)
10.425 €
Grunderwerbsteuer (5%)
34.750 €
Grundbucheintrag (0,5%)
3.475 €
1Der angezeigte Wert ist eine automatisch berechnete Schätzung von immowelt.
2Bei den Angaben handelt es sich um ortsübliche Werte. Individuelle Kosten können abweichen.

Lage

address-icon
Bergstraße 9Weingarten (88250)
Bergstraße 9, 88250 Weingarten

Ca. 5 Gehminuten auf den Löwenplatz ins Zentrum.

Weitere Informationen

Sonstiges Baujahr: 2026
Heizungsart: Zentralheizung
Befeuerung/Energieträger: Strom Stichworte Garage vorhanden

Weitere Services

Lust auf eine Besichtigung?
Eine Frage zur Immobilie?
Nachricht hinzufügen
Mit der Nutzung der oben angegebenen Telefonnummer oder durch Klicken auf „Kontaktieren“ akzeptierst Du die Allgemeinen Nutzungsbedingungen, denen Du jederzeit widersprechen kannst. Weitere Informationen zum Datenschutz

Über den Anbieter

Schussenstraße 4, 88212 Ravensburg
partner badge
Partnerschaft
Herr Berndt HochmannDein Kontakt
Online-ID: 2h7gw5u
Referenznummer: 4302
Immobilienbüro Hochmann
Immobilienbüro Hochmann
Bewertung: 4 von 5 Sternen
Nachricht hinzufügen
Mit der Nutzung der oben angegebenen Telefonnummer oder durch Klicken auf „Kontaktieren“ akzeptierst Du die Allgemeinen Nutzungsbedingungen, denen Du jederzeit widersprechen kannst. Weitere Informationen zum Datenschutz
Wie zufrieden bist du mit dieser Seite (nicht mit der Immobilie selbst)?