Version: 8.22.4Navigation überspringen
397.100 €
3 Zimmer  •  73,3 m² Bürofläche
Immowelt logo

Praxis zum Kauf - Erstbezug
397100 €
3 Zimmer  •  73,3 m² Bürofläche

CANAVESE - Neubau-Gewerbefläche mit Freifläche | alternative Grundrissvariante für Büro oder Ordination in Liesing - PROVISIONSFREI

In der Canavesegasse 4, eingebettet in eine ruhige und beliebte Wohngegend des 23. Wiener Gemeindebezirks, entsteht mit CANAVESE ein hochwertiges Neubauprojekt der Chronos Wohnbau Gruppe. Die Lage verbindet angenehme Zurückgezogenheit mit sehr guter urbaner Anbindung und bietet eine Wohnqualität, die Ruhe, Grün und Infrastruktur in ausgewogener Weise vereint.

Atzgersdorf steht für gewachsene Strukturen, Grünräume und ein entspanntes Wohnumfeld - bei gleichzeitig guter Erreichbarkeit des Stadtzentrums. Ein Standort für Menschen, die bewusst wohnen möchten und Wert auf Alltagstauglichkeit legen.

ARCHITEKTUR UND PROJEKTKONZEPT

Zwei architektonisch klar gestaltete Baukörper fügen sich harmonisch in das bestehende Ortsbild ein. Das Projekt umfasst 18 Eigentumswohnungen sowie 4 hochwertig integrierte Gewerbeflächen im Erdgeschoss. Die gewählte Projektgröße trägt zu einem ruhigen Wohngefühl und einer nachhaltigen Nachbarschaftsstruktur bei.

Die Wohnungen reichen von Gartenwohnungen über großzügige Familienwohnungen bis hin zu durchdacht geplanten Dachgeschosswohnungen. Ein Großteil der Einheiten verfügt über private Freiflächen - Eigengärten, Terrassen oder Balkone - und schafft damit wertvolle Außenräume für den Alltag.

INDIVIDUELLE GESTALTUNGSMÖGLICHKEITEN

Sie können Ihr zukünftiges Zuhause in vielen Bereichen persönlich mitgestalten.
Dazu zählen - sofern gewünscht -

* die Auswahl von Bodenbelägen und Fliesen 
* die Festlegung von Sanitärausstattung und Armaturen,
* die Abstimmung von Details des Innenausbaus wie Türen und Schalterprogramme,
* sowie die Anpassung von Grundriss und Raumaufteilung an individuelle Wohnbedürfnisse

Die Wohnungsbilder im Inserat beziehen sich auf Top 2, Top 8 sowie Top 11 und geben einen wundervollen ersten Eindruck in die Lebensqualität des Projekts.

AUSSTATTUNG UND WOHNQUALITÄT

Klare Linien, großzügige Fensterflächen und eine durchdachte Raumorganisation prägen das Wohngefühl. Fußbodenheizung, moderne Haustechnik, hochwertige Sanitärausstattung und langlebige Materialien bilden die Grundlage für zeitlosen Wohnkomfort und nachhaltige Wertbeständigkeit.

Die Grundrisse sind vielseitig nutzbar und eignen sich für unterschiedliche Lebenssituationen - vom ersten Eigenheim über die Familienzeit bis hin zur langfristigen Vorsorge.

LAGE UND UMGEBUNG

Die Umgebung bietet einen hohen Freizeit- und Erholungswert. Die Liesing, der Lainzer Tiergarten sowie die Perchtoldsdorfer Heide befinden sich in unmittelbarer Nähe. Nahversorgung, Schulen, Kindergärten und öffentliche Verkehrsmittel sind gut erreichbar. Die Wiener Innenstadt erreichen Sie in rund 25 Minuten.

ZEITPLAN

Der Baustart ist für Sommer 2026 vorgesehen, die Fertigstellung für Herbst 2027. Die klare Projektstruktur, die hochwertige Planung und die Möglichkeit zur individuellen Abstimmung bieten eine verlässliche Grundlage für Eigennutzer wie auch für Anleger.

CANAVESE STEHT FÜR

Ruhiges Wohnen. Durchdachte Planung. Individuelle Gestaltung. Langfristige Nutzbarkeit.

Ein Neubauprojekt für Menschen, die bewusst wählen -
und Wert auf Qualität, Ruhe und Substanz legen.

Gerne übermitteln wir Ihnen auf Anfrage auch die Preisliste für Anleger.

 

OBJEKTBESCHREIBUNG

Die 4 Gewerbeflächen im Erdgeschoss sind als hochwertige Arbeits- und Praxisräume geplant. Je nach Einheit stehen private Freiflächen wie Terrassen, Gärten oder Lichthöfe zur Verfügung. Flexible Grundrisslösungen ermöglichen eine Nutzung als Büro, Ordination oder Dienstleistungsfläche.
Die gewerbliche Nutzung ist bewusst in das Gesamtkonzept eingebettet und bietet ein hochwertiges Umfeld, das sich ideal für konzentriertes Arbeiten und eine repräsentative Nutzung eignet.

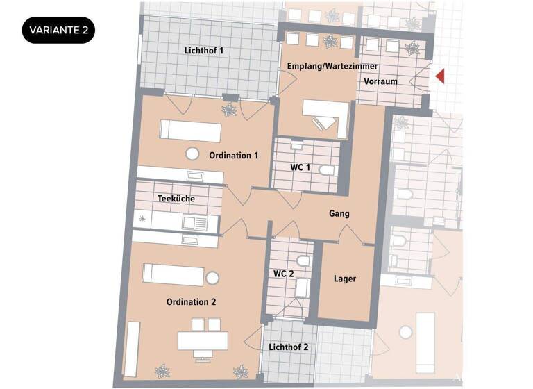
Top 2v2 in Haus 2 befindet sich im Erdgeschoss und ist optimal als Ordination ausgelegt.

Mit ca. 73,26 m² Nutzfläche verfügt die Einheit über eine funktionale 3-Raum-Struktur, bestehend aus zwei Ordinationsräumen sowie einem Empfangs- und Wartebereich.

Ergänzt wird das Raumangebot durch eine Teeküche, zwei separate WCs, einen Lagerraum, einen Vorraum sowie einen Gang. Zwei Lichthöfe sorgen für natürliche Belichtung und eine angenehme Arbeits- und Aufenthaltsatmosphäre.

Die ebenerdige Lage sowie die klare Trennung von Behandlungs-, Warte- und Nebenbereichen bieten ideale Voraussetzungen für einen professionellen Ordinationsbetrieb.

HIGHLIGHTS AUF EINEN BLICK

* ca. 73,26 m² Nutzfläche
* 3-Raum-Ordination
* 2 Ordinationsräume
* Empfangs- & Wartebereich
* Teeküche
* 2 WCs
* 2 Lichthöfe
* ebenerdige Lage & ordinationsgerechter Grundriss

 

Infrastruktur / Entfernungen

Gesundheit
Arzt <1.000m
Apotheke <500m
Klinik <500m
Krankenhaus <2.000m

Kinder & Schulen
Schule <500m
Kindergarten <500m
Universität <5.000m
Höhere Schule <4.500m

Nahversorgung
Supermarkt <500m
Bäckerei <500m
Einkaufszentrum <2.000m

Sonstige
Geldautomat <500m
Bank <500m
Post <2.000m
Polizei <2.000m

Verkehr
Bus <500m
U-Bahn <2.000m
Straßenbahn <2.000m
Bahnhof <500m
Autobahnanschluss <2.500m

Angaben Entfernung Luftlinie / Quelle: OpenStreetMap

Merkmale

  • Bezug: Herbst 2027
  • Erdgeschoss
  • Personenaufzug
  • Gäste-WC
  • Barrierefrei, Rollstuhlgerecht
  • Raumaufteilung flexibel
  • Bodenbelag: Fliesen, Parkett

Grundrisse

Grundrisse
1 / 3

Realisiere Dein Projekt

Bausubstanz und Energie

Heizwärmebedarf (HWB)

B

Gesamtenergieeffizienz (fGEE)

B
  • Baujahr2027
  • Zustand der ImmobilieNeubau, Massivhaus, Erstbezug
  • HeizungsartFußbodenheizung
  • EnergieträgerFernwärme
Immowelt logo

Preisdetails

Kaufpreis
397100 €
Provision für Käufer
Bitte beachte, das Angebot kann bei Vertragsabschluss die Zahlung einer Provision beinhalten. Weitere Informationen erhältst Du vom Anbieter.

Lage

address-icon
Wien (1230)
Der Anbieter hat die genaue Adresse nicht freigegeben
Die Liegenschaft Canavesegasse 4, 1230 Wien liegt im beliebten Stadtteil Atzgersdorf und vereint ruhiges, grünes Wohnen mit einer sehr guten infrastrukturellen Anbindung und bietet damit eine ausgewogene Kombination aus höchster Wohnqualität, Erreichbarkeit und langfristiger Attraktivität.

Der Standort ist sowohl öffentlich als auch individuell sehr gut erreichbar. Der Bahnhof Wien Atzgersdorf (S-Bahn S2, S3, S4) sowie mehrere Buslinien gewährleisten eine direkte Anbindung an die U-Bahn-Linien U4 (Hietzing) und U6 (Alterlaa) sowie eine zügige Verbindung in die Wiener Innenstadt.

Die Nahversorgung ist umfassend und im unmittelbaren Umfeld gegeben. Supermärkte, Apotheken, Schulen, Kindergärten sowie medizinische Einrichtungen befinden sich in kurzer Distanz. Ergänzt wird das Angebot durch das Riverside Shopping Center sowie die Westfield Shopping City Süd. Grün- und Erholungsräume wie der Stadtpark Atzgersdorf und Spazierwege entlang der Liesing unterstreichen die Attraktivität und nachhaltige Wohnqualität des Standorts.

Weitere Informationen

Stichworte Tiefgarage vorhanden, Fahrradraum, Anzahl der separaten WCs: 2, Kellerfläche: 3,72 m², Bundesland: Wien, 4 Etagen, Wohnungsnr.: 2v2

Weitere Services

Lust auf eine Besichtigung?
Eine Frage zur Immobilie?
Nachricht hinzufügen
Mit der Nutzung der oben angegebenen Telefonnummer oder durch Klicken auf „Kontaktieren“ akzeptierst Du die Allgemeinen Nutzungsbedingungen, denen Du jederzeit widersprechen kannst. Weitere Informationen zum Datenschutz

Über den Anbieter

Göttweihergasse 1/1, 1010 WIEN
partner badge
10 Jahre Partnerschaft
Frau Lia SeidelDein Kontakt
Online-ID: 2nqk95a
Referenznummer: OBGC20260123194925899456abc4cda
AKKADIA Immobilienvermittlung GmbH
Bewertung: 4,4 von 5 Sternen
Nachricht hinzufügen
Mit der Nutzung der oben angegebenen Telefonnummer oder durch Klicken auf „Kontaktieren“ akzeptierst Du die Allgemeinen Nutzungsbedingungen, denen Du jederzeit widersprechen kannst. Weitere Informationen zum Datenschutz
Wie zufrieden bist du mit dieser Seite (nicht mit der Immobilie selbst)?