LADENFLÄCHE IN ZENTRALER LAGE DIREKT AN DER U-BAHN
Top-attraktives, generalsaniertes Geschäfts - und Büroensemble bestehend aus Vorder- und Rückgebäude, ein kleiner Innenhof verbindet beide Geschäftshäuser und kann als Parkplatz genutzt werden, mit schönem Eingangsbereich und Treppenhaus. Tiefgaragen- und Freistellplätze stehen auf Anfrage zur Anmietung zur Verfügung. TG-Plätze à € 90,00 anmietbar.
Merkmale
vermietet
Erdgeschoss
Deckenhöhe ca. 4 m - Beheizung der Fläche erfolgt durch Flachheizkörper - Beleuchtungskonzept mit Pendelleuchten - Lager in der Mietfläche - Hauseigene Tiefgarage.
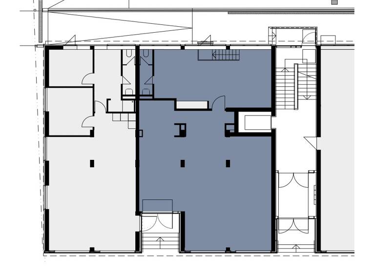
Grundrisse
Grundrisse
1 / 1
Realisiere Dein Projekt
Bausubstanz und Energie
Möchtest du Details zum Energieverbrauch?
Mietkosten
Nettomiete
23 €/m²
23 €
Nebenkosten
3,20 €
Provision für Mieter
provisionsfrei
Kaution
keine Angabe
Lage
Sendling, München (81371)
Der Anbieter hat die genaue Adresse nicht freigegeben
Arbeiten mit Münchner Stil: Entdecken Sie im populären Stadtteil Sendling einen Ort, an dem Komfort und Genuss immer in Reichweite liegen. Das Objekt befindet sich hier inmitten einer optimalen Infrastruktur. Außer durch die exzellente Anbindung an zwei U-Bahn-Linien (U3 / U6, "Poccistraße" wenige Schritte entfernt) und zum Mittleren Ring und den Autobahnen ist die Umgebung durch gastronomische Vielfalt und hervorragende Einkaufsmöglichkeiten geprägt. Sobald die Freizeit auf der Tagesordnung steht, präsentiert die nahe gelegene Theresienwiese nicht nur zum Oktoberfest ihre traditionsreichen Großveranstaltungen.
Weitere Informationen
Sonstiges
Falls Sie in unseren Exposés noch nicht Ihre ideale Bürolösung gefunden haben, zögern Sie nicht, sich mit uns in Verbindung zu setzen. Sie erreichen uns per E-Mail unter info@hdic.de oder telefonisch unter 0171 3802649. Teilen Sie uns Ihr genaues Suchprofil mit, und wir setzen unsere Expertise ein, um aus über 1000 Objekten in München und Umland das perfekte Büro für Sie zu finden. Unser Service ist professionell, schnell, zielführend und wird mit höchster Diskretion durchgeführt. Zusätzlich laden wir Sie ein, unsere Webseite hdic.de zu besuchen, wo Sie weitere attraktive Objekte finden können.
Stichworte
Tiefgarage vorhanden