




Villa zum Kauf2900000 €4.192 €/m²13 Zimmer • 691,8 m² • 7.002 m² Grundstück
2900000 €
4.192 €/m²
13 Zimmer • 691,8 m² • 7.002 m² Grundstück
Exklusives Anwesen von außergewöhnlicher Größe - ein privater Rückzugsort für höchste Ansprüche
Merkmale
- Bezug: ab sofort
- 7.002 m² Grundstück
- Einbauküche
- Keller
- Gäste-WC
- Balkon
- Garten
- Terrasse
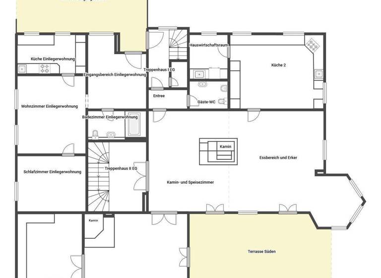
Grundrisse
Grundrisse
1 / 3
Realisiere Dein Projekt
Bausubstanz und Energie
Energieausweis
B
- Baujahr1996
- HeizungsartFußbodenheizung
- EnergieträgerÖl
Preisdetails
Kaufpreis
2900000 €
4.192,02 €/m²
Provision für Käufer
Die Provision i.H.v. 3,57 % inkl. MwSt. ist mit Kaufvertragsbeurkundung fällig, sofern der Verkaufspreis über 83.000,00 € liegt.
Liegt der Verkaufspreis dagegen bei/unter 83. Weitere Informationen siehe Provisionshinweis.
Liegt der Verkaufspreis dagegen bei/unter 83. Weitere Informationen siehe Provisionshinweis.
Geschätzte Gesamtkosten
3.059.500 €1
Kaufpreis
2.900.000 €
Kaufnebenkosten
159.500 €
2Notarkosten (1,5%)
43.500 €
Grunderwerbsteuer (3,5%)
101.500 €
Grundbucheintrag (0,5%)
14.500 €
1Der angezeigte Wert ist eine automatisch berechnete Schätzung von immowelt.
2Bei den Angaben handelt es sich um ortsübliche Werte. Individuelle Kosten können abweichen.
Lage

Agg, Oberaudorf (83080)
Der Anbieter hat die genaue Adresse nicht freigegeben
Weitere Informationen
Weitere Services
Lust auf eine Besichtigung?
Eine Frage zur Immobilie?
Über den Anbieter
Online-ID: 2nxd95c
Referenznummer: 705140d7da
Wie zufrieden bist du mit dieser Seite (nicht mit der Immobilie selbst)?




