Version: 8.26.0Navigation überspringen
IMAXX Gesellschaft für Immobilien-Marketing mbH
1.070 €
152,5 m² Bürofläche

Bürofläche zur Miete • provisionsfrei
1.070 €
152,5 m² Bürofläche

Hochwertige Büroetage auf über 150,00 m² Nutzfläche!!!

Zur Vermietung bieten wir eine vormals als Vorstandsetage genutzte exklusive Büroetage auf 152,53 m² Nutzfläche im 1. Obergeschoss einer in 1979 erbauten Bankfiliale der VR-Bankverein Bad Hersfeld-Rotenburg eG an. Das Gebäude und die Büroeinheit wurden schon zur Zeit der Errichtung qualitativ hochwertig gebaut und ausgestattet. Nachhaltige Renovierungs-/ und Modernisierungsarbeiten am und im Objekt führen zu einem gepflegten Zustand und wäre ein repräsentatives Aushängeschild für Sie als zukünftigen Mieter.
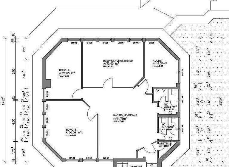
Die Büroetage verfügt über einen Empfangsraum (44,79 m²) mit Empfangstresen und fest verbauten Einbauschränken, von dem Sie jeden weiteren Raum erreichen können, zwei große Büroräume (30,04 m² und 20,65 m²), ein Besprechungszimmer (30,00 m²), den Personal-/ Küchenraum (15,07 m²) und die getrennten Sanitäranlagen für Damen und Herren (5,57 m² und 4,60 m²), die in 2020 auf den modernsten Standard saniert wurden. Des Weiteren befinden sich vor dem Zugang der Büroeinheit ein kleiner Abstellraum und ein Kellerraum im Untergeschoss. Zu guter Letzt stehen Ihnen 3 Pkw-Außenstellplätze zur Verfügung. Das Mietobjekt wird derzeit eigengenutzt und wird voraussichtlich zum 01.12.2024 frei.
Der Energieausweis ist bestellt und wird nachgereicht.

Merkmale

  • Bodenbelag: Fliesen, Teppich
  • 3 Stellplätze: 3 Außen-Stellplätze
  • voll klimatisiert
Die Büroetage ist mit hochwertigem und strapazierfähigem Teppich, fest verbauten Einbauschränken, einer Teeküche mit Spüle, Spülmaschine und einem Kühlschrank ausgestattet. Die gesamte Büroeinheit ist vollständig möbliert. In den Büroeinheiten sind unter anderem Glaswände und Glastüren verbaut, sodass auch der Lichteinfluss im Empfangsraum gewährleistet ist. Auch die Decken-LED-Lampen sorgen für eine angenehme Arbeitsatmosphäre. Gegen die Sonneneinstrahlung in den süd-/ westlich gelegenen Büroräumen sind Außenjalousien vorhanden. Ebenso ist die Büroetage klimatisiert. Für die Beheizung der Räume sorgt die zentrale Ölheizung.

Grundrisse

Grundrisse
1 / 1

Bausubstanz und Energie

Energieausweis

Ein Energieausweis ist für diesen Gebäudetyp nicht notwendig.
  • Baujahr1979
  • Zustand der ImmobilieGepflegt
  • HeizungsartZentralheizung
MediumRectangleTop

Mietkosten

Nettomiete zzgl. Nebenkosten
1.070 €
Provision für Mieter
provisionsfrei; Provisionsfrei für den Mieter
Kaution
3.210 €
Weitere Preisinformationen
3 Stellplätze

Lage

address-icon
Oberaula (36280)
Der Anbieter hat die genaue Adresse nicht freigegeben
Der Luftkurort Oberaula liegt am Südhang des Knüllgebirges im oberen Aulatal. Die Gemeinde besteht aus den sechs Ortsteilen Oberaula (Sitz der Gemeindeverwaltung), Hausen, Friedigerode, Ibra, Olberode und Wahlshausen. Die nächstgelegenen größeren Städte sind Bad Hersfeld (etwa 25 km östlich gelegen), Schwalmstadt (etwa 24 km westlich gelegen), Neukirchen (etwa 11 km westlich gelegen), Homberg (Efze) (etwa 26 km nördlich gelegen) und Alsfeld (etwa 21 km südwestlich gelegen). Die Nähe zur Autobahn (etwa 8 Km, A7 Kirchheim) und der vor der Tür befindliche ÖPNV-Anschluss sorgt für Flexibilität Ihrer Kunden und Mitarbeiter.

Weitere Informationen

Stichworte Stellplatz vorhanden, Bundesland: Hessen, Distanz zum Flughafen: 44.85, Distanz zum Hauptbahnhof: 21.17, Distanz zum Bus: 0.1

Weitere Services

Lust auf eine Besichtigung?
Eine Frage zur Immobilie?
Mit einer persönlichen Nachricht hast du bessere Chancen auf eine Antwort.
Mit der Nutzung der oben angegebenen Telefonnummer oder durch Klicken auf „Kontaktieren“ akzeptierst Du die Allgemeinen Nutzungsbedingungen, denen Du jederzeit widersprechen kannst. Weitere Informationen zum Datenschutz

Über den Anbieter

Plockstraße 6-10, 35390 Gießen
partner badge
3 Jahre Partnerschaft
Herr Viktor Gissel
Herr Viktor GisselDein Kontakt
Online-ID: 26JS9S7RU22Y
Referenznummer: 49233
MediumRectangleTop
Wie zufrieden bist du mit dieser Seite (nicht mit der Immobilie selbst)?