Version: 8.24.0Navigation ĂĽberspringen
Garant Immobilien GmbH
318.000 €
3 Zimmer  â€˘  76 m²  â€˘  2. Geschoss

Wohnung zum Kauf - Erstbezug • provisionsfrei
318000 €
4.184 €/m²
3 Zimmer  â€˘  76 m²  â€˘  2. Geschoss

Exklusive 3 Zimmer-NB-Whg. 2. OG in Toplage von Furtwangen - energieeffizient, modern, erstklassig!

Verwirklichen Sie Ihren Traum vom Eigenheim!
Diese attraktive Etagen-Wohnung befindet sich im 2. OG in einem modernen Neubau-Mehrfamilienhaus mit insgesamt 14 Wohneinheiten.
Das stilvolle Wohnkonzept überzeugt durch eine durchdachte und praktische Planung - hier können Sie Ihre Wohnträume wahr werden lassen.

Die helle Wohnung besticht durch ihren klaren Grundriss:

- groĂźzĂĽgiger Wohn-/Ess-/KĂĽchen- und Schlafbereich
- gemĂĽtliches Schlafzimmer
- weiteres Zimmer, ideal als Kinderzimmer oder BĂĽro
- modernes Badezimmer mit Dusche und WC
- Abstellraum
- Gäste-WC
- Terrasse

Vom Wohnzimmer aus gelangen Sie direkt auf die sonnendurchflutete Terrasse - perfekt zum Entspannen und GenieĂźen.
Ein Kellerraum sowie ein gemeinschaftlicher Waschraum runden das attraktive Gesamtpaket ab.

Das Gebäude entspricht dem Effizienzhaus-Standard 40 und wird zusätzlich mit dem staatlichen Qualitätssiegel Nachhaltiges Gebäude (QNG) ausgezeichnet. Damit erfüllt es höchste Anforderungen an Energieeffizienz und Nachhaltigkeit. Dies eröffnet Zugang zu attraktiven Förderprogrammen sowie steuerlichen Vorteilen und macht das Objekt auch sehr interessant für Kapitalanleger.

Optional steht Ihnen ein Tiefgaragen-Stellplatz zum Preis von Euro 25.000 zur VerfĂĽgung.

Für weitere Informationen oder zur Vereinbarung eines Besichtigungstermins stehe ich Ihnen selbstverständlich gerne zur Verfügung.



Weitere Angebote unter www.GARANT-IMMO.de

Merkmale

  • Bezug: nach Vereinbarung
  • 2. Geschoss
  • Personenaufzug
  • Tiefgarage
  • Gäste-WC
  • Balkon

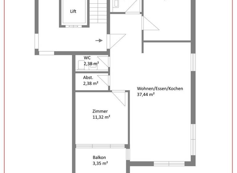
Grundrisse

Grundrisse
1 / 1

Realisiere Dein Projekt

Bausubstanz und Energie

Energieausweis

A
  • Baujahr2023
  • Zustand der ImmobilieErstbezug
  • HeizungsartZentralheizung
  • EnergieträgerPellets
MediumRectangleTop

Preisdetails

Kaufpreis
318000 €
4.184,21 €/m²
Preis pro Stellplatz
25000 €
Hausgeld
220 €
Provision für Käufer
provisionsfrei
Weitere Preisinformationen
1 Tiefgaragenstellplatz, Kaufpreis: 25.000,00 EUR
Geschätzte Gesamtkosten
340.260 €1
Kaufpreis
318.000 €
Notarkosten (1,5%)
4.770 €
Grunderwerbsteuer (5%)
15.900 €
Grundbucheintrag (0,5%)
1.590 €
1Der angezeigte Wert ist eine automatisch berechnete Schätzung von immowelt.
2Bei den Angaben handelt es sich um ortsübliche Werte. Individuelle Kosten können abweichen.

Lage

address-icon
Stadtgebiet, Furtwangen im Schwarzwald (78120)
Der Anbieter hat die genaue Adresse nicht freigegeben
Das Objekt befindet sich in Furtwangen im Schwarzwald, einer traditionsreichen Hochschulstadt im Landkreis Schwarzwald-Baar.
Die Lage überzeugt durch eine gelungene Kombination aus Wohnqualität, Ruhe und Nähe zur Innenstadt.
Hier genießen Sie eine ruhige und naturnahe Wohnatmosphäre, ohne auf die Vorteile einer stadtnahen Infrastruktur verzichten zu müssen.
Einkaufsmöglichkeiten, Schulen, Kindergärten sowie die Hochschule Furtwangen sind schnell erreichbar.
Die Lage ist besonders attraktiv für Menschen, die modernes Wohnen mit guter Infrastruktur und der einzigartigen Natur des Schwarzwalds verbinden möchten.

Weitere Informationen

Sonstiges Energiebedarfsausweis
Energiekennwert: 34,30 kWh/(qm*a)
Energieeffizienz: Klasse A (<50)
Heizung: Zentralheizung mit Pellets
Baujahr laut Energieausweis: 2023

Zusammenfassung:

+ gehobene Bau- und Ausstattungsqualität
+ KfW-Förderung: Günstige Kredite und erhöhte Steuerabschreibung
fĂĽr energieeffiziente Neubauten - senken Sie Ihre Finanzierungs-
kosten!
+ Top-Lage mit Wirtschaftswachstum sorgt fĂĽr stetige Wert-
entwicklung
+ breites Bildungsangebot, von Kindergarten bis Gymnasium
+ 14 Wohneinheiten, Größe zwischen ca. 37 qm - ca. 84 qm
+ Für Sie als Käufer ohne Käuferprovision!
+ beliebte Urlaubsregion Stichworte Tiefgarage vorhanden, Anzahl der Schlafzimmer: 2, Anzahl der Badezimmer: 1, Anzahl Balkone: 1, 4 Etagen

Weitere Services

Lust auf eine Besichtigung?
Eine Frage zur Immobilie?
Nachricht hinzufĂĽgen
Mit der Nutzung der oben angegebenen Telefonnummer oder durch Klicken auf „Kontaktieren“ akzeptierst Du die Allgemeinen Nutzungsbedingungen, denen Du jederzeit widersprechen kannst. Weitere Informationen zum Datenschutz

Ăśber den Anbieter

Im Wallgraben 47, 79761 Waldshut-Tiengen
partner badge
10 Jahre Partnerschaft
BĂĽro WaldshutDein Kontakt
Online-ID: 2mu5x5d
Referenznummer: 131.106
Garant Immobilien GmbH
Garant Immobilien GmbH
Nachricht hinzufĂĽgen
Mit der Nutzung der oben angegebenen Telefonnummer oder durch Klicken auf „Kontaktieren“ akzeptierst Du die Allgemeinen Nutzungsbedingungen, denen Du jederzeit widersprechen kannst. Weitere Informationen zum Datenschutz
MediumRectangleTop
MediumRectangleBottom
MediumRectangleTop
Wie zufrieden bist du mit dieser Seite (nicht mit der Immobilie selbst)?