




Wohnung zur Miete - Erstbezug702 €2 Zimmer • 63,8 m² • EG • frei ab sofort
702 €
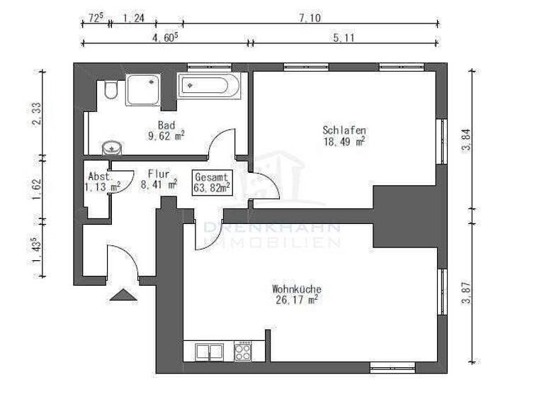
2 Zimmer • 63,8 m² • EG • frei ab sofort
*Erstbezug*| Hochwertig ausgestattete 2-Zimmer-Wohnung | Direkt am Bahnhof | Fahrstuhl
Merkmale
- frei ab sofort
- Erdgeschoss
- Barrierefrei
- Personenaufzug
- Kelleranteil
Grundrisse
Grundrisse
1 / 1
Realisiere Dein Projekt
Bausubstanz und Energie
Möchtest du Details zum Energieverbrauch?

- Zustand der ImmobilieErstbezug
- EnergieträgerFernwärme
Mietkosten
Warmmiete
893,48 €
Kaltmiete
11 €/m²
702,02 €
Nebenkosten
191,46 €
Heizkosten
in Warmmiete enthalten
Kaution
2545.14 €
Lage

Zum Bahnhof 15a, Paulsstadt, Schwerin (19053)
Weitere Informationen
Weitere Services
Lust auf eine Besichtigung?
Eine Frage zur Immobilie?
Über den Anbieter
Rosa-Luxemburg-Str. 9, 18055 Rostock
Partnerschaft
Christian SacharievDein Kontakt
Online-ID: 25BNNSDMYMQU
Referenznummer: E-1000954
Wie zufrieden bist du mit dieser Seite (nicht mit der Immobilie selbst)?




