




1 / 10



1 / 10

Reihenendhaus zum Kauf - Erstbezug • provisionsfrei480000 €480.000 €4.204 €/m²4 Zimmer • 114,2 m²
480000 €480.000 €
4.204 €/m²
4 Zimmer • 114,2 m²
AKTION - Leben im Herzen der Wachau - provisionsfrei, schlüsselfertig, in Krems-Gneixendorf - Eckreihenhaus inklusive Parkplatz
Die Vorteile von Stadt- und Landleben werden hier perfekt vereint.
In einer der beliebtesten Wohngegenden von Krems realisiert der Bauträger Raiffeisen WohnBau in drei Bauabschnitten exklusiven Wohnraum in ruhiger Siedlungslage.
Ideal für Ruhesuchende und auch für Familien, welche sich leistbaren Wohnraum im Grünen wünschen.
In Bauabschnitt 1 entstehen 28 Doppel- und Reihenhäuser (2- bzw. 3-geschoßig) mit gehobenem Wohnkomfort auf großzügigen Wohnflächen zwischen 111 und 140 m².
Jede der 4- bzw. 5-Zimmer-Einheiten überzeugt mit durchdachter Raumaufteilung und privaten Freiflächen wie Eigengärten und Terrassen, bereichert durch gemeinschaftliche Grünflächen.
ÖKOLOGISCH - NACHHALTIG
Die modernen Häuser werden in bewährter Holzriegel-Bauweise errichtet.
Durch die Verwendung heimischer Hölzer leisten Sie nicht nur einen aktiven Beitrag zum Umweltschutz, sondern auch zu nachwachsender Nachhaltigkeit.
ENERGIEEFFIZIENT - UMWELTFREUNDLICH
Die umweltfreundliche Bauweise und das energieeffiziente Heizsystem, die Bereitstellung von Ladestationen für Elektrofahrzeuge unterstreichen das Engagement für eine grüne Zukunft.
BAUSTOFF HOLZ
Ein Bekenntnis zu Stil, Tradition und ökologischem Bewusstsein.
Gneixendorf/Krems, ein schöner Ort zu Leben!
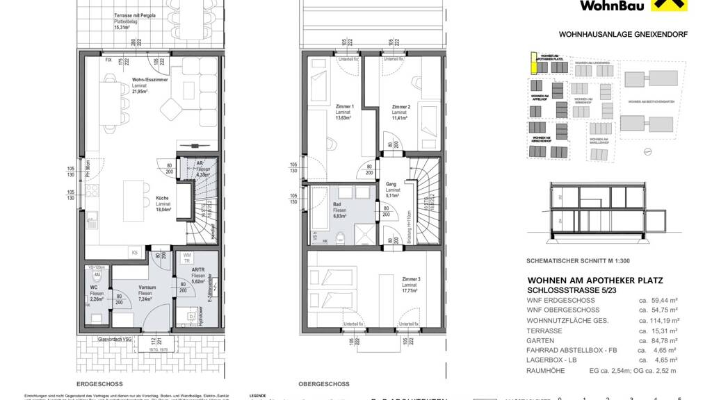
Das hier angebotene Eck-Reihenhaus besticht durch seine optimale Ausrichtung sowie den ansprechenden Grundriss.
Sie betreten das Gebäude über einen Vorraum, welcher genügend Platz für Garderobe bzw. Sitzgelegenheit verfügt. Von hier ist sowohl das Gäste-WC, wie auch der Abstell-/Technikraum zu erreichen.
Ebenso gelangen Sie vom Vorraum direkt in den großzügigen Ess-/Wohnbereich - hier bietet sich ausreichend Platz für eine moderne, offene Küche und einen erstklassigen Wohnbereich. Über den Wohnbereich gelangen Sie auch auf die nach Westen ausgerichtete Terrasse (inkl. Pergola) - hier lassen sich die Nachmittags- wie auch die Abendsonne perfekt genießen!
Im Obergeschoß befinden sich drei Schlafräume sowie ein großes Badezimmer mit Doppelwaschtisch, Badewanne, Dusche und WC. Zwei Zimmer eignen sich perfekt als Kinderzimmer oder Arbeitsraum. Das Schlafzimmer bietet ausreichend Platz für eine integrierte begehbare Garderobe und lässt keine Wünsche offen!
In allen Räumen wird hochwertiger Laminatboden in Eichenholzoptik oder moderne Bodenfließen verlegt.
Das Eck-Reihenhaus verfügt über einen Eigengarten (rd.85m²) mit Terrasse. Eine Lagerbox als zusätzlicher Stauraum im Gartenbereich ist ebenso vorhanden wie eine Fahrrad-Abstellbox im Freien.
Raumaufteilung EG:
-Vorraum
-WC separat
-Abstellraum/Technikraum (Waschmaschinenanschluss)
-Wohn-Esszimmer + Küche
Raumaufteilung OG:
-Doppelbettschlafzimmer mit integrierbarer begehbarer Garderobe
-Zimmer 2
-Zimmer 3
-Bad mit Badewanne, Doppelwaschtisch, Dusche, WC
Jedes Doppel- bzw. Reihenhaus weist folgende Ausstattungshighlights auf:
. Garten/Balkon bei jeder Wohneinheit
. Offene Grundrisse & große Fensterflächen
. Hochwertige Ausstattung
. Fußbodenheizung
. Außenliegende Sonnenschutzvorrichtungen
. Pergola über der Terrasse
. individuell einsetzbare Split-Wärmepumpe
. Kühlen über Fußboden durch Prozessumkehr der Wärmepumpe möglich
. Fan Coil Vorbereitung
. 3-fach-verglaste Kunststofffenster
. Gegensprechanlage
. Türe mit 5-Fachverriegelung
. SAT-Vorbereitung
. Fahrradabstellbox je Wohneinheit
. Je Wohneinheit eine Abstellbox zu Lagerzwecken
. Home Delivery-Space
. Vorbereitung für Photovoltaik
. Vorbereitung für Ladestationen für E-Fahrzeuge
Es erwartet Sie hier ein hochattraktives Zuhause im Grünen, das die Vorzüge von Stadt- und Landleben perfekt vereint.
Wir weisen darauf hin, dass zwischen dem Vermittler und dem zu vermittelnden Dritten ein familiäres oder wirtschaftliches Naheverhältnis besteht.
Der Vermittler ist als Doppelmakler tätig.
Infrastruktur / Entfernungen
Gesundheit
Arzt <2.500m
Apotheke <3.500m
Klinik <4.000m
Krankenhaus <3.000m
Kinder & Schulen
Schule <2.000m
Kindergarten <500m
Universität <3.500m
Höhere Schule <3.500m
Nahversorgung
Supermarkt <2.500m
Bäckerei <500m
Einkaufszentrum <2.500m
Sonstige
Geldautomat <2.000m
Bank <3.000m
Post <2.000m
Polizei <3.500m
Verkehr
Bus <500m
Autobahnanschluss <2.500m
Bahnhof <3.500m
Flughafen <1.500m
Angaben Entfernung Luftlinie / Quelle: OpenStreetMap
In einer der beliebtesten Wohngegenden von Krems realisiert der Bauträger Raiffeisen WohnBau in drei Bauabschnitten exklusiven Wohnraum in ruhiger Siedlungslage.
Ideal für Ruhesuchende und auch für Familien, welche sich leistbaren Wohnraum im Grünen wünschen.
In Bauabschnitt 1 entstehen 28 Doppel- und Reihenhäuser (2- bzw. 3-geschoßig) mit gehobenem Wohnkomfort auf großzügigen Wohnflächen zwischen 111 und 140 m².
Jede der 4- bzw. 5-Zimmer-Einheiten überzeugt mit durchdachter Raumaufteilung und privaten Freiflächen wie Eigengärten und Terrassen, bereichert durch gemeinschaftliche Grünflächen.
ÖKOLOGISCH - NACHHALTIG
Die modernen Häuser werden in bewährter Holzriegel-Bauweise errichtet.
Durch die Verwendung heimischer Hölzer leisten Sie nicht nur einen aktiven Beitrag zum Umweltschutz, sondern auch zu nachwachsender Nachhaltigkeit.
ENERGIEEFFIZIENT - UMWELTFREUNDLICH
Die umweltfreundliche Bauweise und das energieeffiziente Heizsystem, die Bereitstellung von Ladestationen für Elektrofahrzeuge unterstreichen das Engagement für eine grüne Zukunft.
BAUSTOFF HOLZ
Ein Bekenntnis zu Stil, Tradition und ökologischem Bewusstsein.
Gneixendorf/Krems, ein schöner Ort zu Leben!
Das hier angebotene Eck-Reihenhaus besticht durch seine optimale Ausrichtung sowie den ansprechenden Grundriss.
Sie betreten das Gebäude über einen Vorraum, welcher genügend Platz für Garderobe bzw. Sitzgelegenheit verfügt. Von hier ist sowohl das Gäste-WC, wie auch der Abstell-/Technikraum zu erreichen.
Ebenso gelangen Sie vom Vorraum direkt in den großzügigen Ess-/Wohnbereich - hier bietet sich ausreichend Platz für eine moderne, offene Küche und einen erstklassigen Wohnbereich. Über den Wohnbereich gelangen Sie auch auf die nach Westen ausgerichtete Terrasse (inkl. Pergola) - hier lassen sich die Nachmittags- wie auch die Abendsonne perfekt genießen!
Im Obergeschoß befinden sich drei Schlafräume sowie ein großes Badezimmer mit Doppelwaschtisch, Badewanne, Dusche und WC. Zwei Zimmer eignen sich perfekt als Kinderzimmer oder Arbeitsraum. Das Schlafzimmer bietet ausreichend Platz für eine integrierte begehbare Garderobe und lässt keine Wünsche offen!
In allen Räumen wird hochwertiger Laminatboden in Eichenholzoptik oder moderne Bodenfließen verlegt.
Das Eck-Reihenhaus verfügt über einen Eigengarten (rd.85m²) mit Terrasse. Eine Lagerbox als zusätzlicher Stauraum im Gartenbereich ist ebenso vorhanden wie eine Fahrrad-Abstellbox im Freien.
Raumaufteilung EG:
-Vorraum
-WC separat
-Abstellraum/Technikraum (Waschmaschinenanschluss)
-Wohn-Esszimmer + Küche
Raumaufteilung OG:
-Doppelbettschlafzimmer mit integrierbarer begehbarer Garderobe
-Zimmer 2
-Zimmer 3
-Bad mit Badewanne, Doppelwaschtisch, Dusche, WC
Jedes Doppel- bzw. Reihenhaus weist folgende Ausstattungshighlights auf:
. Garten/Balkon bei jeder Wohneinheit
. Offene Grundrisse & große Fensterflächen
. Hochwertige Ausstattung
. Fußbodenheizung
. Außenliegende Sonnenschutzvorrichtungen
. Pergola über der Terrasse
. individuell einsetzbare Split-Wärmepumpe
. Kühlen über Fußboden durch Prozessumkehr der Wärmepumpe möglich
. Fan Coil Vorbereitung
. 3-fach-verglaste Kunststofffenster
. Gegensprechanlage
. Türe mit 5-Fachverriegelung
. SAT-Vorbereitung
. Fahrradabstellbox je Wohneinheit
. Je Wohneinheit eine Abstellbox zu Lagerzwecken
. Home Delivery-Space
. Vorbereitung für Photovoltaik
. Vorbereitung für Ladestationen für E-Fahrzeuge
Es erwartet Sie hier ein hochattraktives Zuhause im Grünen, das die Vorzüge von Stadt- und Landleben perfekt vereint.
Wir weisen darauf hin, dass zwischen dem Vermittler und dem zu vermittelnden Dritten ein familiäres oder wirtschaftliches Naheverhältnis besteht.
Der Vermittler ist als Doppelmakler tätig.
Infrastruktur / Entfernungen
Gesundheit
Arzt <2.500m
Apotheke <3.500m
Klinik <4.000m
Krankenhaus <3.000m
Kinder & Schulen
Schule <2.000m
Kindergarten <500m
Universität <3.500m
Höhere Schule <3.500m
Nahversorgung
Supermarkt <2.500m
Bäckerei <500m
Einkaufszentrum <2.500m
Sonstige
Geldautomat <2.000m
Bank <3.000m
Post <2.000m
Polizei <3.500m
Verkehr
Bus <500m
Autobahnanschluss <2.500m
Bahnhof <3.500m
Flughafen <1.500m
Angaben Entfernung Luftlinie / Quelle: OpenStreetMap
Merkmale
- Bezug: nach Vereinbarung
- Terrasse
- Badezimmer: Badewanne, Bad mit Dusche, Bad mit Fenster
Realisiere Dein Projekt
Bausubstanz und Energie
Heizwärmebedarf (HWB)
B
Gesamtenergieeffizienz (fGEE)
A++
- Baujahr2024
- Zustand der ImmobilieNeubau, Fertighaus, Erstbezug
- HeizungsartFußbodenheizung
- EnergieträgerLuft-/Wasser-Wärmepumpe
Preisdetails
Kaufpreis
480000 €480.000 €
4.203,52 €/m²
Provision für Käufer
provisionsfrei; Keine Provision für den Käufer!
Lage

Gneixendorf (3500)
In Gneixendorf, einer der beliebtesten Wohngegenden von Krems, wird exklusiver Wohnraum in ruhiger Siedlungslage realisiert.
Durch die Nähe zum südlich gelegenen Stadtzentrum von Krems ist Gneixendorf besonders für Familien und Ruhesuchende interessant.
Mitten im Grünen und trotzdem in nur wenigen Autominuten in der Kremser Innenstadt, wo durch die gebotene Infrastruktur (Schulen, Universitäten, Einkaufsmöglichkeiten, Krankenhaus, Kultureinrichtungen und Sportstätten) das Leben pulsiert.
Atemberaubende Ausblicke auf das Stift Göttweig und das idyllische Donautal runden die Szenerie ab.
Unweit von Gneixendorf erstrecken sich die weltberühmten Weingärten der Wachau - ein Paradies für jeden Weinliebhaber.
Mit seinem vielfältigen Freizeitangebot vom Wandern über Fahrradfahren bis hin zu diversen Wassersportarten und seiner idyllischen Lage strahlt Krems ein exklusives und komfortables Lebensgefühl aus.
Krems ist gut an das öffentliche Verkehrsnetz angeschlossen und bietet eine schnelle Bahnverbindung nach Tulln, Wien und St. Pölten.
Mit der Bahn erreichen Sie innerhalb einer Stunde die Stadt Wien, St. Pölten ist mit der Bahn ca. 35 Minuten entfernt.
Der Bahnhof Krems ist innerhalb von 8 Autominuten oder mit dem Bus in 10 Minuten von Gneixendorf erreichbar.
Über die S5 bzw. die anschließende Autobahn A22 gelangt man bequem und in ca. 45 Autominuten nach Wien (P&R Heiligenstadt).
Sankt Pölten erreicht man über die S5/S33 innerhalb von 25 Autominuten. Nach Tulln ist man ca. 30 Autominuten unterwegs.
Durch die Nähe zum südlich gelegenen Stadtzentrum von Krems ist Gneixendorf besonders für Familien und Ruhesuchende interessant.
Mitten im Grünen und trotzdem in nur wenigen Autominuten in der Kremser Innenstadt, wo durch die gebotene Infrastruktur (Schulen, Universitäten, Einkaufsmöglichkeiten, Krankenhaus, Kultureinrichtungen und Sportstätten) das Leben pulsiert.
Atemberaubende Ausblicke auf das Stift Göttweig und das idyllische Donautal runden die Szenerie ab.
Unweit von Gneixendorf erstrecken sich die weltberühmten Weingärten der Wachau - ein Paradies für jeden Weinliebhaber.
Mit seinem vielfältigen Freizeitangebot vom Wandern über Fahrradfahren bis hin zu diversen Wassersportarten und seiner idyllischen Lage strahlt Krems ein exklusives und komfortables Lebensgefühl aus.
Krems ist gut an das öffentliche Verkehrsnetz angeschlossen und bietet eine schnelle Bahnverbindung nach Tulln, Wien und St. Pölten.
Mit der Bahn erreichen Sie innerhalb einer Stunde die Stadt Wien, St. Pölten ist mit der Bahn ca. 35 Minuten entfernt.
Der Bahnhof Krems ist innerhalb von 8 Autominuten oder mit dem Bus in 10 Minuten von Gneixendorf erreichbar.
Über die S5 bzw. die anschließende Autobahn A22 gelangt man bequem und in ca. 45 Autominuten nach Wien (P&R Heiligenstadt).
Sankt Pölten erreicht man über die S5/S33 innerhalb von 25 Autominuten. Nach Tulln ist man ca. 30 Autominuten unterwegs.
Weitere Informationen
Sonstiges
Ein Stellplatz ist bereits im Kaufpreis enthalten.
KAUFPREIS JETZT!
AKTIONSPREIS:
Eckreihenhaus Nr. 23 (schlüsselfertig!) € 480.000 anstatt € 525.400
HINWEIS: BEI TOP 23 IST DIE SCHLÜSSELFERTIGE VARIANTE DAZUZUBUCHEN DA DIESES HAUS ALS MUSTERHAUS AUSGEFÜHRT WIRD.
DER VERKAUF ERFOLGT FÜR SIE PROVISIONSFREI !!
Haben wir Ihr Interesse geweckt?
Mit dem offiziellen Verkauf der Doppel- bzw. Reihenhäuser wurde bereits begonnen.
Für nähere Informationen stehen wir Ihnen gerne unter 0664/3865502 [tel:06643865502] zur Verfügung.
Dieses Angebot versteht sich als freibleibend und unverbindlich. Unsere Angaben erfolgen auf Grund von Informationen und Unterlagen, welche uns vom Eigentümer oder dessen Beauftragten zur Verfügung gestellt wurden, und sind ohne Gewähr.
Besuchen Sie auch unsere Homepage unter www.acacio.at
_HInweis: Bei den verwendeten Bildern handelt es sich um Renderings - diese dienen der Veranschaulichung._
Sind Sie an anderen Grundrissen interessiert? - gerne stellen wir auf Anfrage mehr Informationen zur Verfügung! Stichworte Stellplatz vorhanden, West-Balkon/Terrasse, Rolladen, Nutzfläche: 114,19 m², Anzahl der Badezimmer: 1, Anzahl der separaten WCs: 2, Anzahl Terrassen: 1, Balkon-Terrassen-Fläche: 15,31 m², Gartenfläche: 84,78 m², Bundesland: Niederösterreich, 2 Etagen
KAUFPREIS JETZT!
AKTIONSPREIS:
Eckreihenhaus Nr. 23 (schlüsselfertig!) € 480.000 anstatt € 525.400
HINWEIS: BEI TOP 23 IST DIE SCHLÜSSELFERTIGE VARIANTE DAZUZUBUCHEN DA DIESES HAUS ALS MUSTERHAUS AUSGEFÜHRT WIRD.
DER VERKAUF ERFOLGT FÜR SIE PROVISIONSFREI !!
Haben wir Ihr Interesse geweckt?
Mit dem offiziellen Verkauf der Doppel- bzw. Reihenhäuser wurde bereits begonnen.
Für nähere Informationen stehen wir Ihnen gerne unter 0664/3865502 [tel:06643865502] zur Verfügung.
Dieses Angebot versteht sich als freibleibend und unverbindlich. Unsere Angaben erfolgen auf Grund von Informationen und Unterlagen, welche uns vom Eigentümer oder dessen Beauftragten zur Verfügung gestellt wurden, und sind ohne Gewähr.
Besuchen Sie auch unsere Homepage unter www.acacio.at
_HInweis: Bei den verwendeten Bildern handelt es sich um Renderings - diese dienen der Veranschaulichung._
Sind Sie an anderen Grundrissen interessiert? - gerne stellen wir auf Anfrage mehr Informationen zur Verfügung! Stichworte Stellplatz vorhanden, West-Balkon/Terrasse, Rolladen, Nutzfläche: 114,19 m², Anzahl der Badezimmer: 1, Anzahl der separaten WCs: 2, Anzahl Terrassen: 1, Balkon-Terrassen-Fläche: 15,31 m², Gartenfläche: 84,78 m², Bundesland: Niederösterreich, 2 Etagen
Weitere Services
Lust auf eine Besichtigung?
Eine Frage zur Immobilie?
Über den Anbieter
Acacio Immobilien GmbHMaklerbüro
Bahnhofsring 48/Stg.1/1.OG, 3451 Pixendorf
6 Jahre Partnerschaft

Frau Daniela KönigDein Kontakt
Weitere Unterlagen
Online-ID: 2dbgz5n
Referenznummer: OBGC2024030613144446943790b24e0
Wie zufrieden bist du mit dieser Seite (nicht mit der Immobilie selbst)?


