Rückzugsort auf zwei Ebenen: Gestalten Sie Ihre private Oase mit Außenbereich
Hinter dieser Haustür erwartet Sie eine Immobilie, die mit dem gewöhnlichen Standard bricht. Diese großzügige Maisonette-Wohnung bietet auf ca. 95 m² Wohnfläche ein Raumkonzept, das Flexibilität und Individualität großschreibt. Durch die Aufteilung auf zwei Ebenen (Erdgeschoss und Untergeschoss), sowie eine charmante Empore entsteht ein Haus-im-Haus-Gefühl, das ideal für Paare, kleine Familien oder Freiberufler ist.
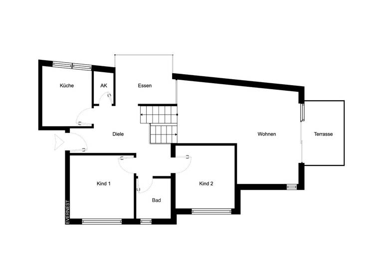
Das Erdgeschoss - Ankommen und Wohlfühlen: * Schlafen & Rückzug: Hier befinden sich zwei gut geschnittene Schlafzimmer, die Ruhe und Privatsphäre garantieren. * Küche & Dining: Die Küche bietet Platz für kulinarische Entfaltung und verfügt über einen gemütlichen, angrenzenden Essbereich für das schnelle Frühstück oder den Kaffee am Morgen. * Komfort: Ein praktisches Badezimmer auf dieser Ebene rundet das Angebot ab.
Das Untergeschoss - Das Herzstück der Wohnung: * Wohnen im großen Stil: Über eine Treppe gelangen Sie in den beeindruckend großzügigen Wohn- und Essbereich. Die offene Gestaltung lässt viel Spielraum für moderne Einrichtungskonzepte. * Privatsphäre: Ein weiteres geräumiges Schlafzimmer sowie das Hauptbadezimmer befinden sich ebenfalls auf dieser Ebene.
Die Empore: Ein besonderes Highlight! Die Galerieebene bietet sich perfekt als Home-Office, Bibliothek oder kreative Arbeitsecke an - arbeiten mit Blick in den Wohnbereich.
Genießen Sie sonnige Stunden in Ihrem eigenen Gartenanteil. Die Terrasse lädt zu Grillabenden ein und bietet passionierten Hobbygärtnern Raum zur Entfaltung.
Zustand & Potenzial: Die Wohnung ist ein Rohdiamant und wartet darauf, durch eine Renovierung in neuem Glanz zu erstrahlen. Nutzen Sie die Gelegenheit, Bodenbeläge, Wandgestaltungen und Sanitäranlagen exakt nach Ihrem persönlichen Geschmack und modernsten Standards zu gestalten.
Merkmale
Keller
Terrasse
Garten
Stellplatz
*Baujahr 1993 *ca. 95 m² Wohnfläche *Wohnen auf 2 Ebenen (EG: 2 Schlafzimmer, Badezimmer, Küche, kleiner Essbereich; UG: Wohn- und Essbereich, Schlafzimmer, Badezimmer; Empore: Arbeitsbereich) *großer Wohn- und Essbereich mit Terrasse *eigener Garten *3 Schlafzimmer *Arbeitsbereich auf Empore *Garage
Grundrisse
Grundrisse
1 / 2
Realisiere Dein Projekt
Bausubstanz und Energie
Energieausweis
G
Baujahr1993
Zustand der ImmobilieGepflegt
EnergieträgerGas
Preisdetails
Kaufpreis
289000 €289.000 €
3.042,11 €/m²
Hausgeld
276 €276 €
Provision für Käufer
3.57 inkl. MwSt. Bei Abschluss eines notariellen Kaufvertrages ist eine Käuferprovision vom Käufer in Höhe von 3.57 % inkl. MwSt. aus dem Kaufpreis fällig.
Geschätzte Gesamtkosten
323.882 €1
Kaufpreis
289.000 €
Kaufnebenkosten
34.882 €
2
Notarkosten (1,5%)
4.335 €
Grunderwerbsteuer (6,5%)
18.785 €
Provision für Käufer (3,57%)
10.317 €
Grundbucheintrag (0,5%)
1.445 €
1Der angezeigte Wert ist eine automatisch berechnete Schätzung von immowelt.
2Bei den Angaben handelt es sich um ortsübliche Werte. Individuelle Kosten können abweichen.
Lage
Berghofen, Dortmund (44269)
Der Anbieter hat die genaue Adresse nicht freigegeben
Dieser Stadtteil zeichnet sich durch eine attraktive Mischung aus naturnahem Wohnen und ausgezeichneter Infrastruktur aus. Die Lage profitiert in besonderem Maße von der direkten Nähe zu ausgedehnten Grünflächen, beispielsweise dem Aplerbecker Wald. Hier finden sich weitläufige Wege, die zu Spaziergängen, Radtouren und entspannten Stunden im Freien einladen. Die unmittelbare Umgebung ist geprägt von einer ruhigen Wohnbebauung und viel Grün, was für eine hohe Lebensqualität sorgt.
Trotz der naturnahen Lage ist die Versorgung mit allen Gütern des täglichen Bedarfs in der Aplerbecker Mark hervorragend gewährleistet. In fußläufiger oder kurzer Fahrdistanz erreichen Sie Supermärkte, Bäckereien, Apotheken, Banken sowie diverse Fachgeschäfte und Dienstleister.
Für Familien ist die Lage äußerst attraktiv: Kindergärten und Grundschulen sind gut erreichbar und tragen zur familienfreundlichen Atmosphäre bei. Auch weiterführende Schulen in den umliegenden Stadtteilen sind bequem mit dem öffentlichen Nahverkehr oder dem Auto erreichbar.
Die Verkehrsanbindung ist ausgezeichnet und ermöglicht sowohl eine schnelle Anbindung an die Dortmunder Innenstadt, als auch an überregionale Ziele. Über die nahegelegene Bundesstraße B236 gelangt man zügig zu den Autobahnen A1 und A45, was eine optimale Anbindung an das gesamte Ruhrgebiet und darüber hinaus sicherstellt. Mehrere Bushaltestellen in der Nähe bieten eine gute Anbindung an das Netz des öffentlichen Personennahverkehrs (ÖPNV) und damit an den Dortmunder Hauptbahnhof sowie andere Stadtteile.
Weitere Informationen
Stichworte
Parkhaus vorhanden, Anzahl der Schlafzimmer: 3, Anzahl der Badezimmer: 2, Anzahl Terrassen: 1