Version: 8.22.4Navigation ĂĽberspringen
1.450 €
Immowelt logo

Praxisfläche zur Miete
1450 €
Nettomiete zzgl. NK

Attraktive Gewerbeimmobilie

Diese attraktive Gewerbeimmobilie befindet sich in absoluter Bestlage direkt am Marktplatz von St. Peter in der Au und bietet ideale Voraussetzungen für einen erfolgreichen Unternehmensauftritt. Die großzügige Fläche im Erdgeschoss überzeugt durch ihre Vielseitigkeit und eignet sich perfekt für unterschiedlichste Gewerbekonzepte - von Ordinationen über Fitness- oder Gesundheitsbetriebe bis hin zu modernen Büro- oder Dienstleistungsflächen.

Dank der flexiblen Raumaufteilung lässt sich das Objekt individuell an Ihre Bedürfnisse anpassen und bietet Ihnen den Freiraum, Ihre Ideen und Visionen optimal umzusetzen. Die zentrale Lage sorgt für hohe Sichtbarkeit, gute Erreichbarkeit und ein repräsentatives Umfeld für Kunden und Mitarbeiter.

Details im Ăśberblick:

* Erdgeschosslage in zentraler Bestlage
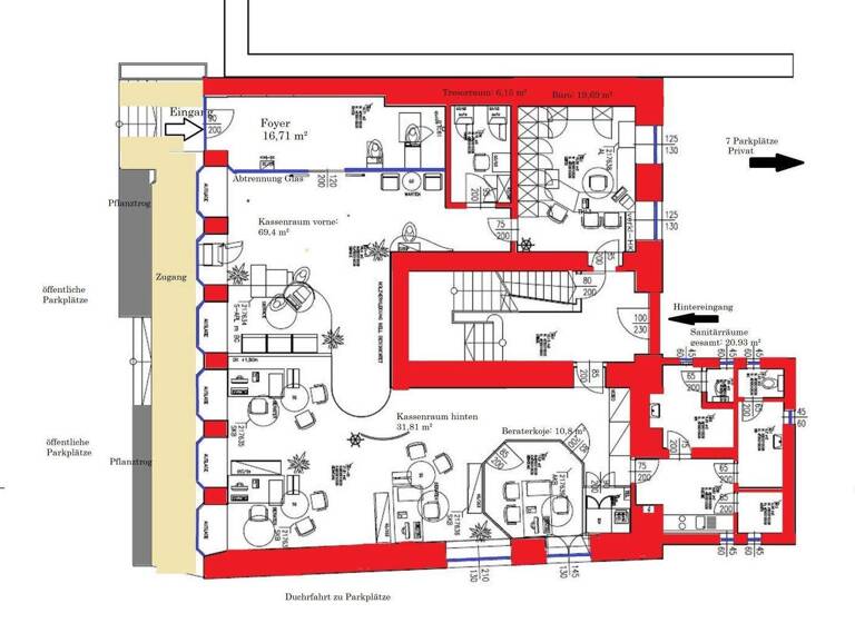
* Ca. 175 m² Nutzfläche mit vielfältigen Nutzungsmöglichkeiten
* Barrierefreier Zugang
* 7 Parkplätze im ruhigen Innenhof
* Sanitärräume vorhanden
* Pflegeleichte, geflieste Böden
* Elektrische Heizung
* Großzügige Schaufensterflächen mit optimaler Sichtbarkeit
* Mietbeginn ab Sommer 2026 möglich

Ein besonderes Plus: Auf Wunsch kann auch das gesamte Obergeschoss mit angemietet werden. Dieses umfasst eine ca. 90 m² große Wohnung sowie drei zusätzliche, derzeit leerstehende Räume - ideal für Wohnen, Erweiterungen oder ergänzende Nutzungskonzepte.

 

Infrastruktur / Entfernungen

Gesundheit
Arzt <500m
Apotheke <1.500m
Klinik <2.500m

Kinder & Schulen
Schule <500m
Kindergarten <500m

Nahversorgung
Supermarkt <500m
Bäckerei <500m

Sonstige
Bank <500m
Geldautomat <500m
Post <2.500m
Polizei <500m

Verkehr
Bus <500m
Bahnhof <2.500m
Autobahnanschluss <8.500m
Flughafen <3.000m

Angaben Entfernung Luftlinie / Quelle: OpenStreetMap

Merkmale

  • Bezug: Sommer 2026
  • 7 Stellplätze: 7 AuĂźen-Stellplätze
  • Barrierefrei

Grundrisse

Grundrisse
1 / 1

Realisiere Dein Projekt

Bausubstanz und Energie

Der Anbieter hat keine Informationen zum Energieverbrauch bereit gestellt.
  • EnergieträgerElektro
Immowelt logo

Mietkosten

Nettokaltmiete zzgl. Betriebskosten
1.450 €
Provision fĂĽr Mieter
3.480,00 € inkl. 20% USt.
Kaution
keine Angabe
Weitere Preisinformationen
7 Stellplätze
Nettokaltmiete: 1.450,00 EUR

Lage

address-icon
St. Peter in der Au-Markt (3352)

Weitere Informationen

Stichworte Nutzfläche: 175,49 m², Bundesland: Niederösterreich

Weitere Services

Lust auf eine Besichtigung?
Eine Frage zur Immobilie?
Nachricht hinzufĂĽgen
Mit der Nutzung der oben angegebenen Telefonnummer oder durch Klicken auf „Kontaktieren“ akzeptierst Du die Allgemeinen Nutzungsbedingungen, denen Du jederzeit widersprechen kannst. Weitere Informationen zum Datenschutz

Ăśber den Anbieter

LandstraĂźer HauptstraĂźe 60, 1030 WIEN
Herr Johannes WiesingerDein Kontakt
Online-ID: 2mu7k5t
Referenznummer: OBGC20251223100827635842efecf9a
s REAL Immobilienvermittlung GmbH
s REAL Immobilienvermittlung GmbH
Nachricht hinzufĂĽgen
Mit der Nutzung der oben angegebenen Telefonnummer oder durch Klicken auf „Kontaktieren“ akzeptierst Du die Allgemeinen Nutzungsbedingungen, denen Du jederzeit widersprechen kannst. Weitere Informationen zum Datenschutz
Wie zufrieden bist du mit dieser Seite (nicht mit der Immobilie selbst)?