Version: 8.26.0Navigation überspringen
1.151 €
267,7 m² Bürofläche
Immowelt logo

Bürofläche zur Miete • provisionsfrei
1.151 €
267,7 m² Bürofläche

Büros in Dresden/Cossebaude zu vermieten!

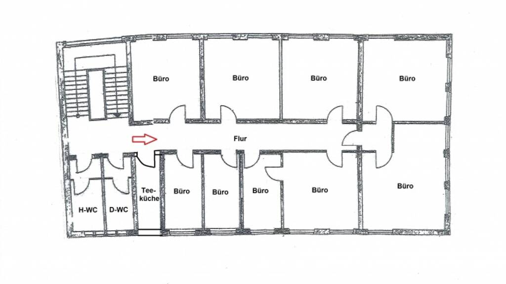
Die zur Vermietung stehende Gewerbefläche befindet sich im 1. Obergeschoss des Gebäudes A in der Breitscheidstr. 43 in Dresden/Cossebaude. Die Einheit hat eine Größe von insgesamt ca. 267,70 m².

Neben einer Teeküche und weiteren 9 geräumigen und vor allem hellen, freundlichen Büroräumen stehen 2 WCs (Damen & Herren) im Hausflur zur Verfügung. Die zahlreichen kleineren Büroräume könnten ggf. zusammengelegt werden, sodass weitere Großraumbüros entstehen. In den Büros wurde ein hochwertiger, pflegeleichter Teppich verlegt.

Für Mitarbeiter und Kunden stehen Parkplätze unmittelbar vor dem Gebäude zur Verfügung.

Merkmale

  • Bezug: sofort

Grundrisse

Verschaffe dir einen genauen Überblick über die Raumaufteilung.selection_property_house-icon

Bausubstanz und Energie

Energieausweis

Endenergieverbrauch (Wärme)

  • Baujahr1978
  • Zustand der Immobilierenoviert / saniert
  • HeizungsartZentralheizung
  • EnergieträgerÖl
Immowelt logo

Mietkosten

Warmmiete
1.740 €
Nettomiete
1.151 €
Nebenkosten
589 €
Heizkosten
in Warmmiete enthalten
Provision für Mieter
provisionsfrei
Kaution
3 Bruttowarmmieten

Lage

address-icon
Breitscheidstraße 43CossebaudeDresden / Cossebaude (01156)
Die angebotene Gewerbeeinheit befindet sich in Dresden/Cossebaude, ca. 12 km vom Herzen/Zentrum Dresdens entfernt. Cossebaude ist durch die nur knapp 1 km entfernte Autobahn A4 hervorragend in das überregionale Infrastruktursystem integriert.

Das Objekt befindet sich inmitten eines Gewerbeparks/Bürocenters in der Breitscheidstr. 43. Den naheliegenden Bahnhof Cossebaude erreichen Sie in ca. 10 Fußminuten und/oder ca. 2 Autominuten. Die Anbindung an den Öffentlichen Nahverkehr ist ebenfalls gegeben.

Auf dem Gelände sind eine Vielzahl verschiedener Gewerbebetriebe vertreten. So haben sich hier z.B. Gartenbau- und Elektroinstallationsbetriebe, sowie Ingenieure, die Siemens AG, sowie viele weitere Unternehmen erfolgreich angesiedelt - in unmittelbarer Nachbarschaft befindet sich zudem die GlaxoSmithKline - ein weltweit erfolgreiches Pharmaunternehmen.

Weitere Informationen

Sonstiges Es liegt ein Energieverbrauchsausweis vor.
Dieser ist gültig bis 26.5.2024.
Endenergieverbrauch beträgt 90.90 kwh/(m²*a).
Wesentlicher Energieträger der Heizung ist Öl.

Wir hoffen Ihnen ein interessantes Angebot unterbreitet zu haben und freuen uns auf Ihren Anruf oder Ihre E-Mail. Stichworte Gesamtfläche: 267,70 m²

Weitere Services

Lust auf eine Besichtigung?
Eine Frage zur Immobilie?
Mit einer persönlichen Nachricht hast du bessere Chancen auf eine Antwort.
Mit der Nutzung der oben angegebenen Telefonnummer oder durch Klicken auf „Kontaktieren“ akzeptierst Du die Allgemeinen Nutzungsbedingungen, denen Du jederzeit widersprechen kannst. Weitere Informationen zum Datenschutz

Über den Anbieter

Geschwister-Scholl-Str. 36, 14776 Brandenburg
partner badge
3 Jahre Partnerschaft
Frau Mareike Mechtel
Frau Mareike MechtelDein Kontakt
Online-ID: 23TZJIICCB1D
Referenznummer: mm1496
Wie zufrieden bist du mit dieser Seite (nicht mit der Immobilie selbst)?