Gewerbeflächen in ansprechendem Gewerbekomplex zu verkaufen
Gut sichtbar, direkt an der stark frequentierten östlichen Ortseingangsstraße von Naumburg steht ein denkmalgeschützter, zweietagiger Gewerbekomplex, in dem Sie noch freie Gewerbeflächen ankaufen können.
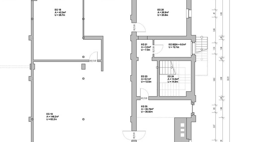
Grundriss, Ausstattung und Größe der Fläche -von ca. 270m² bis ca. 2.300m²- sind frei wählbar.
Die Außenfassade und das Dach werden vom Eigentümer denkmalgerecht saniert. Die Baukosten hierfür werden dem im Exposé genannten Ankaufspreis noch aufgeschlagen. Gern übernimmt der Eigentümer auch den Innenausbau sowie den Einbau neuer Fenster Ihren Wünschen entsprechend gegen Kostenübernahme. Auf dem Grundstück stehen Flächen zur Errichtung von Kfz-Stellplätzen zur Verfügung.
Dienstleister, Handel, Kleingewerbetreibende, Versicherungsbüros etc. können sich in diesem Gewerbekomplex ansiedeln.
Beispielhaft bieten wir Ihnen hier eine Fläche von ca. 273,50m² im Erdgeschoss des rechten Gebäudeteils an.
Merkmale
Kein Keller
Raumaufteilung flexibel
Bausubstanz und Energie
Energieausweis
Ein Energieausweis ist für diesen Gebäudetyp nicht notwendig.
Preisdetails
Kaufpreis
82000 €82.000 €
Provision für Käufer
7,14% inkl. MwSt.
Geschätzte Gesamtkosten
87.855 €1
Kaufpreis
82.000 €
Kaufnebenkosten
5.855 €
2
Provision für Käufer (7,14%)
5.855 €
1Der angezeigte Wert ist eine automatisch berechnete Schätzung von immowelt.
2Bei den Angaben handelt es sich um ortsübliche Werte. Individuelle Kosten können abweichen.
Lage
Naumburg (06618)
Der Anbieter hat die genaue Adresse nicht freigegeben
Verkehrsgünstig sehr gut gelegen, Richtung östlichem Ortsausgang von Naumburg, direkt an der B180. In nur 15min erreicht man die Autobahnauffahrt A9 Richtung Leipzig und Berlin bzw. München.
Weitere Informationen
Sonstiges
Mit diesem Exposé bieten wir Ihnen das Objekt an. Sämtliche Angaben in dieser Offerte beruhen auf Aussagen des Verkäufers. Bei aller Sorgfalt können wir keine Gewähr dafür übernehmen, dass alle Angaben richtig sind und das Objekt im Augenblick des Zugangs dieser Offerte noch verfügbar ist. Wir bitten um Verständnis, dass wir nur vollständig ausgefüllte Kontaktanfragen beantworten können.
Stichworte
Lagerfläche: 273,50 m², Nutzfläche: 273,50 m², Gesamtfläche: 273,50 m²