Version: 8.24.0Navigation überspringen
Schwabenhaus GmbH & Co. KG SchwabenhausWaldshutTiengen Silvia Busch
654.660 €
5 Zimmer  •  140 m²  •  690 m² Grundstück

Einfamilienhaus zum Kauf • provisionsfrei
654660 €
4.676 €/m²
5 Zimmer  •  140 m²  •  690 m² Grundstück

Familientraum - Glücklich leben im Eigenheim

Herzlich willkommen in Ihrem neuen Zuhause - Raum für Familie, Herz und Leben

Dieses großzügig geplante Schwabenhaus wurde mit Blick auf Familien und gemeinschaftliches Wohnen konzipiert. Es bietet nicht nur ausreichend Platz für Ihre Lieben, sondern auch eine warme, einladende Atmosphäre, in der man sich sofort zu Hause fühlt.

Im Erdgeschoss erwartet Sie ein heller, offener Wohnbereich mit großen Fenstern, die viel Tageslicht hereinlassen. Die offene Küche bildet das kommunikative Herz des Hauses - ideal für gemeinsames Kochen, Gespräche und gesellige Abende. Direkt angrenzend bietet das Esszimmer reichlich Platz für gemeinsame Mahlzeiten und Familienfeiern.

Im Obergeschoss befinden sich mehrere Schlafräume - darunter ein großzügiges Hauptschlafzimmer mit eigenem Bad und begehbarem Kleiderschrank sowie weitere Zimmer für Kinder, Gäste oder ein Homeoffice. Der Garten lädt zu Aktivitäten im Freien ein und bietet Raum für Spiel, Entspannung oder gesellige Stunden im Grünen.

Wenn Sie ein Zuhause suchen, das mehr ist als nur vier Wände - ein echtes Familienheim in einer lebendigen, herzlichen Nachbarschaft - dann könnte dieses Haus genau das Richtige für Sie sein.

Ausbaustufe und Individualisierung

Die Ausbaustufe dieses Angebots ist "Fast vollendet" - das bedeutet: viele Gewerke sind bereits fertiggestellt, gleichzeitig bleibt Ihnen Raum für individuelle Gestaltungen.
Details zu den Ausbaustufen finden Sie hier:
www.schwabenhaus.de/ausbaustufen/

Sie wünschen sich ein schlüsselfertiges Zuhause?
Sprechen Sie einfach Ihre Fachberaterin darauf an - gerne erstellen wir Ihnen ein persönliches Angebot in der Ausbaustufe "Schlüsselfertig".

Merkmale

  • 690 m² Grundstück
  • Gäste-WC
.Natürliche Materialien: Hochwertige, gesunde und natürliche Baustoffe schaffen eine warme und einladende Atmosphäre.
.Lichtdurchflutete Räume: Große Fensterflächen sorgen für eine optimale Nutzung von natürlichem Licht und schaffen eine offene, luftige Umgebung.
.Durchdachte Raumgestaltung: Die klare und funktionale Raumaufteilung ermöglicht eine flexible Nutzung und schafft ein harmonisches Gleichgewicht.
.Sicherheitssystem: Modernste Sicherheitstechnologien, einschließlich Überwachungskameras und intelligenter Türschlösser, bieten ein beruhigendes Gefühl der Sicherheit.

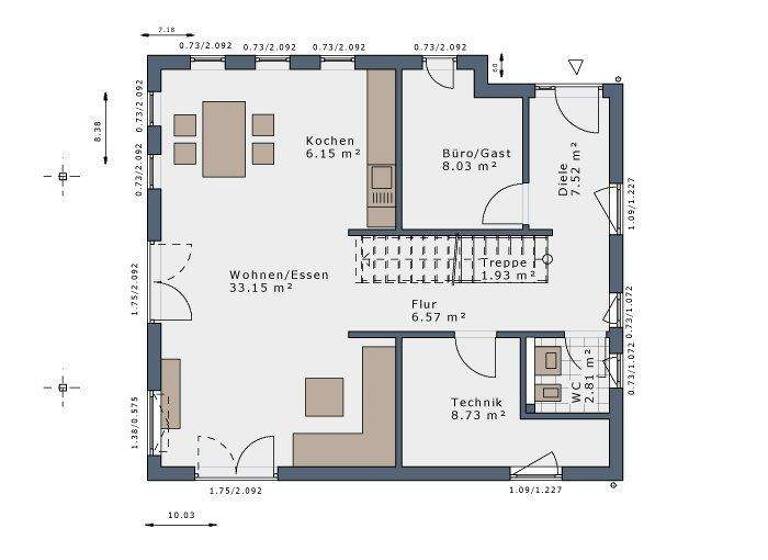
Grundrisse

Grundrisse
1 / 2

Realisiere Dein Projekt

Bausubstanz und Energie

Der Anbieter hat keine Informationen zum Energieverbrauch bereit gestellt.
  • Zustand der ImmobilieNeubau, Projektiert
  • HeizungsartFußbodenheizung

Preisdetails

Kaufpreis
654660 €
4.676,14 €/m²
Provision für Käufer
provisionsfrei
Geschätzte Gesamtkosten
700.486 €1
Kaufpreis
654.660 €
Notarkosten (1,5%)
9.820 €
Grunderwerbsteuer (5%)
32.733 €
Grundbucheintrag (0,5%)
3.273 €
1Der angezeigte Wert ist eine automatisch berechnete Schätzung von immowelt.
2Bei den Angaben handelt es sich um ortsübliche Werte. Individuelle Kosten können abweichen.

Lage

address-icon
Rümmingen (79595)
Der Anbieter hat die genaue Adresse nicht freigegeben
2 Grundstücke mit jeweils ca. 690 m² eines Davon könnte schon bald Ihnen gehören.

Ein Zuhause zu bauen bedeutet, Wurzeln zu schlagen - für heute und für die Zukunft. In Rümmingen finden Familien den idealen Ort, um genau diesen Traum Wirklichkeit werden zu lassen.

Eingebettet in die sanften Hügel des Markgräflerlands, umgeben von Weinbergen, Obstwiesen und weiter Natur, verbindet Rümmingen ländliche Ruhe mit einer hohen Lebensqualität. Als Teil des Naturparks Südschwarzwald bietet die Gemeinde ein Umfeld, in dem Kinder unbeschwert aufwachsen können und Familien Raum zum Durchatmen finden.

Trotz der idyllischen Lage profitieren Sie von einer ausgezeichneten Anbindung: Basel, Lörrach und die gesamte Dreiländerregion D/F/CH sind schnell erreichbar. Ob beruflich, kulturell oder für Freizeitaktivitäten - hier bleiben Sie flexibel und bestens vernetzt.


Für Familien besonders attraktiv: Eine Kindertagesstätte sowie eine Grundschule befinden sich in unmittelbarer Nähe der Grundstücke. Einkaufsmöglichkeiten für den täglichen Bedarf sind in den benachbarten Orten Binzen und Kandern vorhanden. Direkt vor der Haustür laden Wiesen, Rad- und Spazierwege zum Joggen, Radfahren oder zu gemeinsamen Familienausflügen ein - sogar bis nach Kandern über den gut ausgebauten Radweg.

Auch verkehrstechnisch ist Rümmingen hervorragend angebunden: Über die A98 erreichen Sie zügig Rheinfelden, Basel oder Freiburg. Ergänzt wird dies durch eine gute Busanbindung in Richtung Kandern, Lörrach und Basel.

Diese Grundstücke bieten Familien die Möglichkeit, naturnah zu wohnen, ohne auf die Vorteile urbaner Infrastruktur zu verzichten - ein Ort, an dem aus Wohnraum ein echtes Zuhause wird.

Wir freuen uns darauf, Sie auf dem Weg zu Ihrem Eigenheim begleiten zu dürfen.

Achtung Kauf und Baunebenkosten sind im Angebot nicht enthalten.

Weitere Informationen

Sonstiges Das Haus ist projektiert inkl. Grundstück. Das Grundstück wird in Kommission angeboten bzw. direkt von Dritten verkauft. Daher kann der o.g. Preis aufgrund aktueller Marktsituationen schwanken.

Die Bauabwicklung kann kurzfristig nach Grundstückserwerb begonnen werden. Bilder zeigen möglicherweise Sonderausstattungen, die auf Wunsch gegen Preiskorrektur zusätzlich angeboten werden können.

Fragen Sie nach unserem kostenlosen Beratungs-Service und erhalten Sie in einem persönlichen Gespräch kostenlos alle wichtigen Informationen zu diesem Projekt, insbesondere: Lage und Bebauungsmöglichkeiten des Baugrundstücks, Baukosten-Kalkulation, Finanzierungs- u. Förderungs-Möglichkeiten, detaillierte Architektur- u. Grundrissplanung, etc.

Wir freuen uns, Sie ausführlich beraten zu dürfen!

Anbauteile, Carport, Garage und Keller können Extras sein, die als Sonderausstattung angeboten werden. Abbildungen, Grundrisse und Flächenangaben sind beispielhaft und können Extras zeigen. Flächenangaben nach DIN 277.

Profitieren Sie jetzt von der Schwabenhaus Online Beratung und verwirklichen Sie Ihr Traumhaus https://www.schwabenhaus.de/anmeldung-hausbau-beratung-online/ Stichworte Anzahl der Schlafzimmer: 3, Anzahl der Badezimmer: 1, Anzahl der separaten WCs: 1

Weitere Services

Lust auf eine Besichtigung?
Eine Frage zur Immobilie?
Nachricht hinzufügen
Mit der Nutzung der oben angegebenen Telefonnummer oder durch Klicken auf „Kontaktieren“ akzeptierst Du die Allgemeinen Nutzungsbedingungen, denen Du jederzeit widersprechen kannst. Weitere Informationen zum Datenschutz

Über den Anbieter

Gartenstraße 10, 79761 Waldshut-Tiengen
partner badge
Partnerschaft
Peter BuschDein Kontakt
Online-ID: 2nkgj5m
Referenznummer: SH-371207
Schwabenhaus GmbH & Co. KG SchwabenhausWaldshutTiengen Silvia Busch
Schwabenhaus GmbH & Co. KG SchwabenhausWaldshutTiengen Silvia Busch
Nachricht hinzufügen
Mit der Nutzung der oben angegebenen Telefonnummer oder durch Klicken auf „Kontaktieren“ akzeptierst Du die Allgemeinen Nutzungsbedingungen, denen Du jederzeit widersprechen kannst. Weitere Informationen zum Datenschutz
Wie zufrieden bist du mit dieser Seite (nicht mit der Immobilie selbst)?