

FALC Immobilien Kehlheim
Herr Matthias Heimel
080 ···
Nr. anzeigenPreise & Kosten
Provision für Käufer
3,57% inkl. 19% MwSt vom notariellen Kaufpreis
Lage
Diese Immobilie befindet sich in einer ruhigen und familienfreundlichen Umgebung, die ideal für alle Altersgruppen ist. Die Lage bietet eine hervorragende Anbindung an den öffentlichen Nahverkehr. Die nächste Bushaltestelle ist in wenigen Schritten zu erreichen, was den täglichen Pendelverkehr erleichtert.
Für Familien...
Die Wohnung
Wohnungslage
2. Geschoss (Dachgeschoss)
Bezug
Sofort
Wohnanlage
Energie & Heizung
Warum sehe ich diese Anzeige? – Du siehst diese Anzeige basierend auf Ihrer Navigation auf unserer Website und den Suchkriterien, die du verwendet hast.
Energieausweistyp
Bedarfsausweis
Gebäudetyp
Wohngebäude
Wesentliche Energieträger
Öl
Gültigkeit
12.08.2025 bis 11.08.2035
Effizienzklasse
G
Endenergiebedarf
215,90 kWh/(m²·a)
Weitere Energiedaten
Energieträger
Öl
Heizungsart
offener Kamin, Zentralheizung
Details
Objektbeschreibung
Verlieben Sie sich in diese 3-Zimmer-Dachgeschoss-Wohnung, ideal für ein (Ehe-)Paar mit Kindern.
Trotz der Energieeffizienzklasse G bietet das Haus durch seine solide Bauweise und die gute Raumaufteilung viele Möglichkeiten zur individuellen Gestaltung. Ein ideales Zuhause für Familien, die viel Platz und Komfort...
Ausstattung
- Solides EFH mit 4 Wohnungen(jede Wohnung mit eigenem Eingang)
- Grundstück 1398 m²
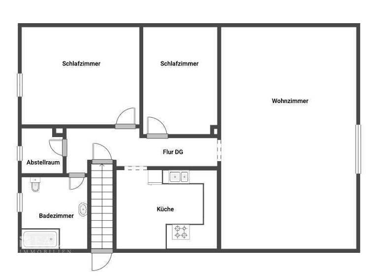
Dachgeschoss-Wohnung: ca. 120 m² - sofort bezugsfrei
3-Zimmer(2 Schlafzimmer, 1 großes Wohnzimmer), Küche mit neuwertiger EBK, Badezimmer(Badewanne, WC, WB, Fenster). Teilweise Sichtbalken. Speis. Garage.
- Wohnfläche: 120...
Preisinformation
1 Garagenstellplatz
Weitere Informationen
Sonstiges
Bei Interesse geben Sie bitte immer Ihre vollständigen Kontaktdaten(Vor- und Familien-Name, Anschrift, Telefon-Nummer-n) an und vereinbaren Sie bitte einen unverbindlichen Termin.
Die Objektbeschreibung beruht ganz oder zum Teil auf Angaben des Eigentümers. Für die Richtigkeit oder Vollständigkeit...
Dokumente
Anbieter der Immobilie
FALC Immobilien Kehlheim
Kelheimwinzerstraße 175, 93309 Kelheim

Online-ID: 2m3br5p
Referenznummer: FALC-MH-78354
Finde Angebote wie dieses
Hier geht es zu unserem Impressum, den Allgemeinen Geschäftsbedingungen, den Hinweisen zum Datenschutz und nutzungsbasierter Online-Werbung.