Version: 8.26.0Navigation überspringen
651.600 €
8 Zimmer  •  205 m²  •  622 m² Grundstück
Immowelt logo

Mehrfamilienhaus zum Kauf • provisionsfrei
651600 €
3.179 €/m²
8 Zimmer  •  205 m²  •  622 m² Grundstück

??????????? "Gemeinsam leben, individuell wohnen - Zweifamilienhäuser neu gedacht."

Erleben Sie das Beste aus beiden Welten: Gemeinsamkeit und Privatsphäre. Mit einem Zweifamilienhaus genießen Sie die Nähe zu Ihren Liebsten und gleichzeitig den Luxus eines eigenen, unabhängigen Wohnbereichs. Maßgeschneidert, stilvoll und perfekt auf Ihre Bedürfnisse abgestimmt!

Merkmale

  • 622 m² Grundstück
  • Gäste-WC
Individuell geplant und technik-fertig - Ihr Danhaus nach Maß!

Jedes unserer Fertighäuser wird individuell auf Ihr Grundstück, den Bebauungsplan und Ihre Wünsche abgestimmt. Die beliebte Danhaus-Ausbaustufe technik-fertig ist dabei die ideale Basis - mit vielen Extras inklusive:

-Massive Klinkerfassade im Standard (alternativ Putz- oder Holzfassade)
-Heizungstechnik frei wählbar, z.?B. mit Fußbodenheizung + Kühlfunktion
-Lüftungsanlage mit Wärmerückgewinnung fertig installiert
-Elektroinstallation komplett fertiggestellt
-Hochwertige Marken-Ausstattung
-3-fach-Wärmeschutzverglasung und Rollläden (auf Wunsch elektrisch)
-Estrich mit Wärmedämmung
-Sanitär-Rohinstallation vorbereitet (ohne Objekte)

Natürlich kann die Ausbaustufe individuell angepasst werden - je nach geplanter Eigenleistung.
Bauen mit Danhaus heißt: Qualität, Effizienz und nordisches Design vereint!

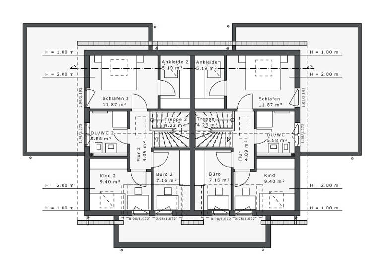
Grundrisse

Grundrisse
1 / 2

Bausubstanz und Energie

Möchtest du Details zum Energieverbrauch?info_energy_calculation-icon
  • Zustand der ImmobilieNeubau, Projektiert
  • HeizungsartFußbodenheizung
Immowelt logo

Preisdetails

Kaufpreis
651600 €
3.178,54 €/m²
Provision für Käufer
provisionsfrei
Geschätzte Gesamtkosten
697.212 €1
Kaufpreis
651.600 €
Notarkosten (1,5%)
9.774 €
Grunderwerbsteuer (5%)
32.580 €
Grundbucheintrag (0,5%)
3.258 €
1Der angezeigte Wert ist eine automatisch berechnete Schätzung von immowelt.
2Bei den Angaben handelt es sich um ortsübliche Werte. Individuelle Kosten können abweichen.

Lage

address-icon
LinzLinz am Rhein (53545)
Der Anbieter hat die genaue Adresse nicht freigegeben
Baugrundstück mit viel Potenzial für Ihr Eigenheim
Das ebene und gut zugeschnittene Grundstück befindet sich in einer gewachsenen Wohngegend und bietet ausreichend Platz für ein Einfamilien- oder Stadtvilla. Durch die vorhandene Infrastruktur ist eine reibungslose Erschließung gewährleistet.

Weitere Informationen

Sonstiges Verwirklichen Sie Ihren Traum vom eigenen Zuhause - sorgenfrei und entspannt.

Mit uns bauen Sie nicht nur ein Haus, sondern Ihr persönliches Wohlfühlparadies. Wir bieten Ihnen alles aus einer Hand: von der umfassenden Budgetplanung über die individuelle Hausplanung bis hin zur schlüsselfertigen Fertigstellung.

Unser Rundum-Sorglos-Paket:

Budgetplanung: Wir erstellen eine detaillierte Kostenaufstellung für Haus und Grundstück und finden die optimale Finanzierung für Ihr Budget.

Finanzierungsberatung: Wir präsentieren Ihnen verschiedene Finanzierungsmöglichkeiten und zeigen Ihnen, wie Sie Geld sparen und staatliche Förderungen in Anspruch nehmen können.

Grundstückssuche: Wir haben das passende Grundstück in Ihrer Wunschregion, das perfekt zu Ihren Bedürfnissen und Vorstellungen passt.

Hausplanung: Wir entwerfen gemeinsam mit Ihnen Ihr Traumhaus - ganz nach Ihren individuellen Wünschen und Anforderungen.

Bauausführung: Wir kümmern uns um die gesamte Bauphase - von der Baugenehmigung bis zur schlüsselfertigen Fertigstellung. Entspannen Sie sich und genießen Sie den Weg zu Ihrem Traumhaus! Wir kümmern uns um alles - Sie müssen sich um nichts kümmern.

Vereinbaren Sie noch heute ein kostenloses Beratungsgespräch und lassen Sie sich von uns inspirieren!

Ich zeige Ihnen wie Sie günstig zu Ihrem Traumhaus kommen und freue mich darauf mit Ihnen zusammen ihr Traumhaus zu realisieren!

Ihr Verkaufsberater Paulo Granja
+49 178 71 28 112

Anbauteile, Carport, Garage und Keller können Extras sein, die als Sonderausstattung angeboten werden. Abbildungen, Grundrisse und Flächenangaben sind beispielhaft und können Extras zeigen. Flächenangaben nach DIN 277. Stichworte Anzahl der Schlafzimmer: 4, Anzahl der Badezimmer: 2, Anzahl der separaten WCs: 1

Weitere Services

Lust auf eine Besichtigung?
Eine Frage zur Immobilie?
Nachricht hinzufügen
Mit der Nutzung der oben angegebenen Telefonnummer oder durch Klicken auf „Kontaktieren“ akzeptierst Du die Allgemeinen Nutzungsbedingungen, denen Du jederzeit widersprechen kannst. Weitere Informationen zum Datenschutz

Über den Anbieter

Porschestraße 10, 41564 Kaarst
partner badge
Partnerschaft
Herr Paulo Granja
Herr Paulo GranjaDein Kontakt
Keine Telefonnummer hinterlegt
Keine Telefonnummer hinterlegt
Online-ID: 26KSPFTBLWA3
Referenznummer: JW-DH-53498
Wie zufrieden bist du mit dieser Seite (nicht mit der Immobilie selbst)?