Version: 8.22.4Navigation ĂĽberspringen
Preis auf Anfrage
4 Zimmer  â€˘  144 m²  â€˘  500 m² GrundstĂĽck  â€˘  frei ab sofort
Immowelt logo

Villa zum Kauf - Erstbezug • provisionsfrei
4 Zimmer  â€˘  144 m²  â€˘  500 m² GrundstĂĽck  â€˘  frei ab sofort

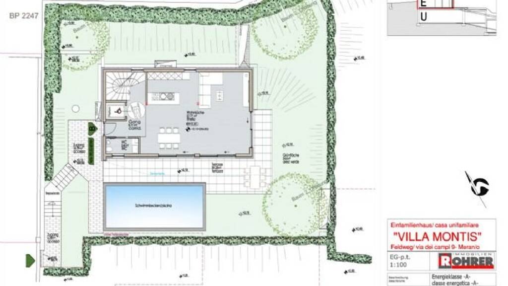
VILLA MONTIS - Luxusvilla "A" mit Schwimmbad - exklusive Lage im GrĂĽnen mit Panoramablick!

Die Interne Fertigstellung samt Materialwahl der Fliesen, Holzböden, Türen und Badeinrichtung erfolgt individuell nach Wunsch des Kunden

Der Bauträger Rohrer Immobilien garantiert eine qualitative hochwertige Bauausführung mit einheimischem Handwerker und Zulieferfirmen.

Merkmale

  • Bezug: 2024
  • 2 Geschosse
  • 500 m² GrundstĂĽck
  • Lastenaufzug
  • Keller
  • Tiefgarage
  • Bad/WC getrennt, Bidet, Gäste-WC
  • Garten

Realisiere Dein Projekt

Bausubstanz und Energie

Der Anbieter hat keine Informationen zum Energieverbrauch bereit gestellt.
  • Baujahr2024
  • Zustand der ImmobilieNeubau, Erstbezug
  • HaustypNiedrigenergiehaus
  • HeizungsartFuĂźbodenheizung
  • EnergieträgerSolar, Luft-/Wasser-Wärmepumpe
Immowelt logo

Preisdetails

Provision für Käufer
provisionsfrei

Lage

address-icon
Feldweg 9, Meran (39012)
Eines der eleganten Stadtviertel Merans nennt sich Obermais. Hier stehen - unter anderem - Villen und Schlösser in wunderschönen Parks, denn schon immer wählten wohlhabende Familien diese attraktive Gegend zu ihrem Wohnort. Obermais grenzt an die Meraner Altstadt - hier trifft man sich zum Bummeln und zum Schauen und natürlich zum Cappuccino.

Diese Gegend zog bereits Adelige wie Kaiserin Sissi oder die Herren von Tirol in vergangenen Zeiten in ihren Bann. Während erstere ihren Urlaub auf Schloss Trauttmansdorff verbrachte, ließen sich die Landherren von Tirol unter anderem auch auf dem nahen Schloss Tirol nieder.

Viele Häuser des Stadtviertels befinden sich eingebettet in viel Natur, was den Ort sehr sympathisch erscheinen lässt. Schlösser wie das bekannte Fortbildungszentrum Schloss Pienzenau, Schloss Winkel, Schloss Killenberg und Rubein geben Obermais einen sehr erhabenen Touch.

Ganz nahe liegen Schloss Trauttmansdorff und seine botanischen Gärten, das idyllisch gelegene St. Valentins-Kirchlein, Schloss Rametz und Schloss Labers. Weitere bekannte Kirchen im Ort nennen sich Heilig Geist - und Georgskirche.

Weitere Informationen

Luxusvilla "A" mit S In sonniger ruhiger Villenlage mit einem wunderschönen Traumblick auf das umliegende Meran, realisiert der Bauträger Rohrer Immobilien die zwei freistehenden autonome Luxusvillen mit Schwimmbad und eine Zweifamilienvilla mit zwei getrennten Wohneinheiten „Villa Montis“.
Energiestandart - Klima Haus A

Die Immobilien sind konventionsfrei und können auch als Feriendomizil genutzt werden.

geräumige Garagen, Sektionaltor motorisiert mit Funk-Fernbedienung

Ausstattung:
Heizung mit Luft-Wasser-Wärmepumpe - Fußbodenheizung mit Einzelraumregelung - Photovoltaikanlage - angemessene Schall- und Wärmedämmung - kontrollierter Wohnraumlüftung – ALU/ALU Fenster mit Dreifachverglasung und Insektenschutz - elektrische Rollläden und Raffstores – Alarmkontakte – Vorrichtung Klimaanlage – Videosprechanlage - Staubsaugeranlage in der Villa A+B - großzügige Bäder mit Fenster - Aufzug
Besichtigungstermine Mit Herr Plank Matthäus
Montag bis Ffreitag von 07.30 - 17.00 Uhr
oder nach Vereinbarung Stichworte TV: Sat-Anschluss, Antennenanschluss Sonstiges/Wohnen: seniorengerechtes Wohnen Sonstiges: ISDN, Keller als Wohnraum nutzbar

Weitere Services

Lust auf eine Besichtigung?
Eine Frage zur Immobilie?
Nachricht hinzufĂĽgen
Mit der Nutzung der oben angegebenen Telefonnummer oder durch Klicken auf „Kontaktieren“ akzeptierst Du die Allgemeinen Nutzungsbedingungen, denen Du jederzeit widersprechen kannst. Weitere Informationen zum Datenschutz

Ăśber den Anbieter

Maria-Trost-Str. 1/d - Via S. Maria del Conforto, 39012 MERAN - MERANO
Herr Matthäus PlankDein Kontakt

Weitere Unterlagen

Online-ID: 29cke5s
Rohrer Immobilien GmbH
Rohrer Immobilien GmbH
Nachricht hinzufĂĽgen
Mit der Nutzung der oben angegebenen Telefonnummer oder durch Klicken auf „Kontaktieren“ akzeptierst Du die Allgemeinen Nutzungsbedingungen, denen Du jederzeit widersprechen kannst. Weitere Informationen zum Datenschutz
Wie zufrieden bist du mit dieser Seite (nicht mit der Immobilie selbst)?