Version: 8.24.0Navigation überspringen
488 €
2,5 Zimmer  •  65 m²  •  frei ab sofort
Immowelt logo

Wohnung zur Miete
488 €
2,5 Zimmer  •  65 m²  •  frei ab sofort

Innen gemütlich, außen großzügig – 2,5 Zimmer mit Balkon

Objektbeschreibung Das Objekt wurde komplett renoviert und bietet daher aktuell mehrere Wohnungen im Erstbezug.
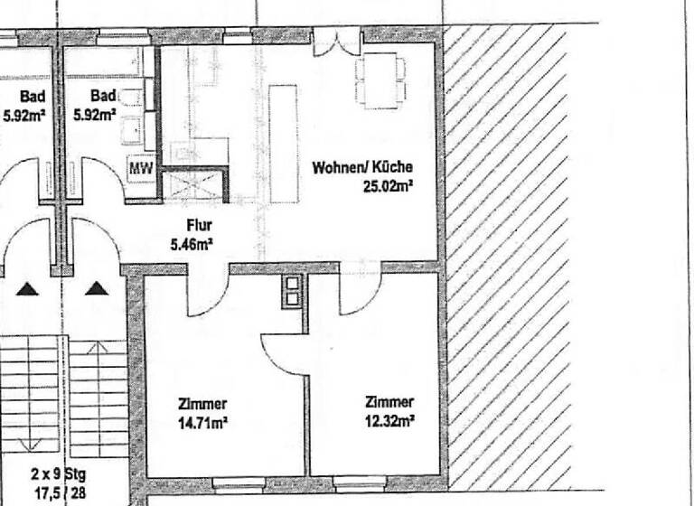
Jeder Eingang verfügt über 3 Geschosse. Raumaufteilung Vom Treppenhaus gelangen Sie in den Wohnungsflur, von dem alle Räume abgehen.
Das Badezimmer verfügt über eine Dusche und ein Fenster. Die offene Wohnküche bietet mit ca. 20 Quadratmetern viel Platz.
Hinzu kommen noch 2 Räume mit 12 und 15 Quadratmetern, sowie ein 8 qm großer Balkon mit Westausrichtung.

Merkmale

  • Bezug: ab sofort
  • offene Küche
  • Balkon
  • Badezimmer: Bad mit Dusche, Bad mit Fenster
  • Bodenbelag: Kunststoff
  • Fenster: Kunststoff

Grundrisse

Grundrisse
1 / 1

Realisiere Dein Projekt

Bausubstanz und Energie

Der Anbieter hat keine Informationen zum Energieverbrauch bereit gestellt.
  • HeizungsartZentralheizung
  • EnergieträgerSolar, Blockheizkraftwerk
Immowelt logo

Mietkosten

Warmmiete
715 €
Kaltmiete
7,50 €/m²
487,50 €
Nebenkosten
227,50 €
Kaution
2.115,50€

Lage

address-icon
Weißenfelser Straße 87Merseburg (06217)
Im Süden der Stadt Merseburg gelegen, finden Sie direkt vor der Tür die Haltestelle zur Stadtbahn. In wenigen Minuten sind Sie zudem auf Der Autobahn A38.
Hinter dem Haus liegt eine Kleingartenanlage, eine Minute Fußweg entfert zudem die Schwimmhalle Merseburg.
Eine Kindertagesstätte, sowie die Johannes-Schule Merseburg.

Weitere Informationen

Besichtigungstermine Wir empfehlen Ihnen, Ihre SCHUFA-Auskunft bereits jetzt zu beantragen, damit Sie diese rechtzeitig erhalten und mit Ihren Bewerberunterlagen einreichen können.

Besichtigungstermine sind jederzeit nach Vereinbarung möglich.

Bitte beachten Sie, dass wir bei einigen Objekten nicht auf jede Anfrage persönlich reagieren können.

Alle Angaben sind ohne Gewähr. Wir übernehmen keine Haftung für Vollständigkeit, Richtigkeit und Aktualität dieser Angaben.

Weitere Services

Lust auf eine Besichtigung?
Eine Frage zur Immobilie?
Nachricht hinzufügen
Mit der Nutzung der oben angegebenen Telefonnummer oder durch Klicken auf „Kontaktieren“ akzeptierst Du die Allgemeinen Nutzungsbedingungen, denen Du jederzeit widersprechen kannst. Weitere Informationen zum Datenschutz

Über den Anbieter

WOHNART LeipzigMaklerbüro
Hermundurenstr. 17, 04159 Leipzig
partner badgepartner badge
Partnerschaft + Diamond Partner
Frau Anja TrögerDein Kontakt
Online-ID: 2dh265z
Referenznummer: 9056_87.4
WOHNART Leipzig
Bewertung: 4,3 von 5 Sternen
Nachricht hinzufügen
Mit der Nutzung der oben angegebenen Telefonnummer oder durch Klicken auf „Kontaktieren“ akzeptierst Du die Allgemeinen Nutzungsbedingungen, denen Du jederzeit widersprechen kannst. Weitere Informationen zum Datenschutz
Wie zufrieden bist du mit dieser Seite (nicht mit der Immobilie selbst)?