Version: 8.22.4Navigation überspringen
2.104 €
3 Zimmer  •  72,3 m²  •  12. Geschoss
Immowelt logo

Wohnung zur Miete
2104.14 €
Nettokaltmiete
3 Zimmer  •  72,3 m²  •  12. Geschoss

U1 U-Bahn-Station KAGRAN I Loggia I Rooftop POOL I Fitnessraum & Sauna I VIENNA TWENTYTWO Living

Top 104 | 3 Zimmer | ca. 72m² I 12. Obergeschoss 

Top 104 ist die perfekte Wohnung für eine junge Familie oder ein Liebespaar. Sie überzeugt durch ein geräumiges Vorzimmer mit Zugang zu einem separaten WC und einem großzügigen Badezimmer, das mit Badewanne und zwei Waschbecken für zusätzlichen Komfort ausgestattet ist. Vom Vorzimmer aus gelangen Sie in einen praktischen Flur, der den Zugang zu den zwei stilvollen Schlafzimmern bietet. Weiter geht es in den lichtdurchfluteten Wohn- und Kochbereich, der durch seine offene, moderne Gestaltung begeistert. Das charmante Wohnzimmer bietet ausreichend Platz für eine hochwertige, voll ausgestattete Einbauküche, einen Esstisch für bis zu 8 Personen sowie eine gemütliche Kuschelecke. Ein weiteres Highlight ist die ca. 6 m² große Loggia, auf der Sie jeden Tag den beeindruckenden Panoramablick über die Dächer von Wien genießen können.

 

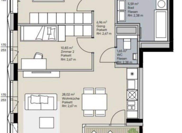
Raumaufteilung:

* Vorraum: ca. 5,34?m²
* Vorraum: ca. 6,96?m² 
* WC: ca. 1,65?m² 
* Bad: ca. 5,59?m²
* Wohnküche: ca. 28,02?m²
* Zimmer: ca. 13,94?m²
* Zimmer: ca. 10,83?m²
* Loggia: ca. 6,35?m²

Highlights: 

*
Spectacular Rooftop Pool

*
Exclusive Gym  

*
Private Wellness Area 

*
Stylish Lobby

Wohnkomplex TwentyTwo:

Top 104 befindet sich im 12. Obergeschoss des Neubauprojekts "Vienna TwentyTwo Living", das dem Objekt zahlreiche moderne Annehmlichkeiten bietet. Ein Fitnessraum, ein Rooftop Pool sowie ein Saunabereich stehen den Bewohnern zur Verfügung und bieten exklusive Möglichkeiten für Erholung und Freizeit.
Ein Kinderspielplatz, Partyräume und modern gestaltete Außenflächen runden das attraktive Gesamtangebot ab. Das Projekt wurde nachhaltig und umweltschonend errichtet, sodass die zukünftigen Bewohner die Vorteile modernen Wohnens sorgenfrei genießen können.

Mietwohnungen im 12. Stock, die verfügbar sind:

1) TOP 103: 49,68 m² Brutto Miete: EUR 1499,00 (inklusive USt., Betriebskosten und Verwaltung)

2) TOP 105: 46,93 m² Brutto Miete: EUR 1549,00 (inklusive USt., Betriebskosten und Verwaltung)

3) TOP 106: 50,56 m² Brutto Miete: EUR 1600,00 (inklusive USt., Betriebskosten und Verwaltung)

4) TOP 109: 50,56 m² Brutto Miete: EUR 1599,00 (inklusive USt., Betriebskosten und Verwaltung) 

5) TOP 110: 46,74 m² Brutto Miete: EUR 1349,00 (inklusive USt., Betriebskosten und Verwaltung)

6) TOP 112: 49,29 m² Brutto Miete: EUR 1499,00 (inklusive USt., Betriebskosten und Verwaltung)

Lage:

Für alle, die ein urbanes und modernes Leben führen möchten - mit allem Wichtigen direkt vor der Haustür - und dennoch gerne Zeit im Grünen oder am Wasser verbringen, ist diese Lage ein wahres Juwel. Das nahegelegene Donau Zentrum bietet eine Vielzahl an Einkaufs- und Unterhaltungsmöglichkeiten, darunter Kinos, Cafés und zahlreiche Restaurants. Nur einen Katzensprung entfernt liegt die Alte Donau, ideal zum Spazieren, Laufen, Radfahren oder Bootfahren - ein perfekter Ort zum Abschalten inmitten der Stadt. Sportbegeisterte kommen ebenfalls auf ihre Kosten: In der Umgebung befinden sich die Steffl Arena (Eislaufhalle) sowie mehrere Fitnessstudios. Die U1-Station Kagran, nur eine Minute zu Fuß entfernt, ermöglicht eine schnelle Verbindung ins Stadtzentrum - in nur 15 Minuten erreichen Sie den Stephansplatz.

Öffentliche Verkehrsanbindung:

- U-Bahn U1 Richtung Leopoldau / Oberlaa (1 min Gehweg)
- Straßenbahn 25, Haltestelle "Kagran" Richtung Aspern, Oberdorfstraße/Floridsdorf (3 min Gehweg)
- Straßenbahn 26, Haltestelle "Kagraner Platz" Richtung Hausfeldstraße/Strebersdorf, Edmund-Hawranek-Platz (3 min Gehweg)
- Straßenbahn 27, Haltestelle "Kagraner Platz" Richtung Aspern Nord/Strebersdorf, Edmund-Hawranek-Platz (3 min Gehweg)
- Bus 93A, Haltestelle "Kagran" Richtung Kargran/Aspernstraße (3 min Gehweg)
- Bus 22A, Haltestelle "Kagran" Richtung Kargran/Aspernstraße (3 min Gehweg) 
- nur 15 min bis zum Stadtzentrum -> U1 Richtung Oberlaa bis zum Stephansplatz 

Die Wohnung wird vorerst für 5 Jahre befristet vermietet.

Kostenübersicht:

Monatliche Gesamtmiete: EUR 2.314,55 (inklusive USt., Betriebskosten und Verwaltung)

Mietvertragserrichtungskosten: EUR 300,00 (zzgl. 20% USt.)

Kaution: EUR 6.943,65 (3 BMM)

GERNE STEHT IHNEN TEAM RINGSMUTH FÜR WEITERE FRAGEN BZW. FLEXIBEL GESTALTBARE BESICHTIGUNGSTERMINE UNTER +43 677 61585215 ZUR VERFÜGUNG.  

www.ringsmuth-immobilien.at

Irrtum und Änderungen vorbehalten!

 

 

 

Der Immobilienmakler erklärt, dass er - entgegen dem in der Immobilienwirtschaft üblichen Geschäftsgebrauch des Doppelmaklers - einseitig nur für den Vermieter tätig ist.

Infrastruktur / Entfernungen

Gesundheit
Arzt <500m
Apotheke <500m
Klinik <2.500m
Krankenhaus <3.500m

Kinder & Schulen
Schule <500m
Kindergarten <500m
Universität <1.500m
Höhere Schule <1.500m

Nahversorgung
Supermarkt <500m
Bäckerei <500m
Einkaufszentrum <500m

Sonstige
Geldautomat <500m
Bank <500m
Post <500m
Polizei <500m

Verkehr
Bus <500m
U-Bahn <500m
Straßenbahn <500m
Bahnhof <500m
Autobahnanschluss <2.500m

Angaben Entfernung Luftlinie / Quelle: OpenStreetMap

Merkmale

  • Bezug: ab sofort
  • 12. Geschoss
  • Einbauküche
  • Personenaufzug
  • Barrierefrei
  • Badewanne
  • Waschraum
  • voll klimatisiert

Grundrisse

Grundrisse
1 / 2

Realisiere Dein Projekt

Bausubstanz und Energie

Heizwärmebedarf (HWB)

B

Gesamtenergieeffizienz (fGEE)

Der Anbieter hat keine Daten zum Energieausweis hinterlegt.
  • Zustand der ImmobilieNeubau, Massivhaus
  • HeizungsartFußbodenheizung
Immowelt logo

Mietkosten

Gesamtmiete
2.314,55 €
Nettokaltmiete zzgl. Betriebskosten
29,09 €/m²
2.104,14 €
Kaution
3 Bruttomonatsmieten
Weitere Preisinformationen
Nettokaltmiete: 2.104,14 EUR

Lage

address-icon
Wien (1220)
Der Anbieter hat die genaue Adresse nicht freigegeben
Öffentliche Verbindung:
- U-Bahn U1 Richtung Leopoldau / Oberlaa (1 min Gehweg)
- Straßenbahn 25, Haltestelle "Kagran" Richtung Aspern, Oberdorfstraße/Floridsdorf (3 min Gehweg)
- Straßenbahn 26, Haltestelle "Kagraner Platz" Richtung Hausfeldstraße/Strebersdorf, Edmund-Hawranek-Platz (3 min Gehweg)
- Straßenbahn 27, Haltestelle "Kagraner Platz" Richtung Aspern Nord/Strebersdorf, Edmund-Hawranek-Platz (3 min Gehweg)
- Bus 93A, Haltestelle "Kagran" Richtung Kargran/Aspernstraße (3 min Gehweg)
- Bus 22A, Haltestelle "Kagran" Richtung Kargran/Aspernstraße (3 min Gehweg)
- nur 15 min bis zum Stadtzentrum -> U1 Richtung Oberlaa bis zum Stephansplatz

Einkaufsmöglichkeiten:
- Einkaufszentrum: Donau Zentrum (2 min Gehweg) inkl. Bipa, INTERSPAR, DM, Libro, Müller usw.

In der Nähe:
- John Reed Fitness (3 min Gehweg)
- Kino CINEPLEXX (2 min Gehweg)
- Vienna International School (3 min Gehweg)
- Kirschblütenpark (5 min Gehweg)

Weitere Informationen

Stichworte Fahrradraum, Rolladen, Nutzfläche: 78,68 m², Anzahl der Badezimmer: 1, Anzahl der separaten WCs: 1, Anzahl Loggias: 1, Balkon-Terrassen-Fläche: 6,35 m², Bundesland: Wien Wellness: Wellnessbereich

Weitere Services

Lust auf eine Besichtigung?
Eine Frage zur Immobilie?
Nachricht hinzufügen
Mit der Nutzung der oben angegebenen Telefonnummer oder durch Klicken auf „Kontaktieren“ akzeptierst Du die Allgemeinen Nutzungsbedingungen, denen Du jederzeit widersprechen kannst. Weitere Informationen zum Datenschutz

Über den Anbieter

Hackhofergasse 1, 1190 WIEN
partner badge
3 Jahre Partnerschaft
Team RingsmuthDein Kontakt
Online-ID: 2mz6q5j
Referenznummer: OBGC20251120130049766270105e75a
Ringsmuth Immobilien
Ringsmuth Immobilien
Bewertung: 5 von 5 Sternen
Nachricht hinzufügen
Mit der Nutzung der oben angegebenen Telefonnummer oder durch Klicken auf „Kontaktieren“ akzeptierst Du die Allgemeinen Nutzungsbedingungen, denen Du jederzeit widersprechen kannst. Weitere Informationen zum Datenschutz
Wie zufrieden bist du mit dieser Seite (nicht mit der Immobilie selbst)?