Version: 8.25.2Navigation überspringen
Preis auf Anfrage
Immowelt logo

Halle/Industriefläche zum Kauf • provisionsfrei

Moderne, kostengünstige Industrie- und Gewerbebauten für die Gewerbegebiete im Bodenseekreis

Bei dem genannten Objekt handelt es sich nicht um eine bestehende Immobilie, sondern um ein Beispielprojekt.

Individuelle Architektur trotz industrieller Vorfertigung und Modulbauweise, liegt dem Entwurfsprinzip der Produktions- und Lagergebäude zugrunde.
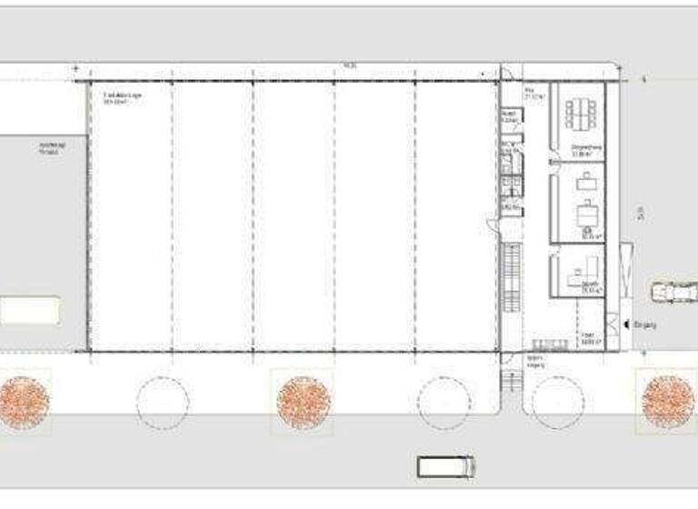
Gebäude in denen produziert, gelagert und verwaltet wird, alles unter einem Dach und mit großzügigen Zufahrtswegen erschlossen.

Die kostengünstigen Gebäude werden individuell, qualitativ hochwertig vom Architekten geplant und bis zur Fertigstellung betreut.
Individuelle Wünsche, Anforderungen und der Anspruch des Bauherrn stehen dabei im Mittelpunkt.
Die Realisierung erfolgt durch regionale Firmen mit Erfahrung im Industrie- und Gewerbebau.

Hochgedämmte Fassadenelemente und innovative Haustechnik sorgen für niedrige Betriebskosten.
In Verbindung mit einer Dreifachverglasung und kontrollierter Be- und Entlüftungsanlage mit Wärmerückgewinnung wird der KFW 40 oder Passivhaus Standard erreicht.

Moderne Stahlskelett- oder Holzskelettbauweise erlauben eine kostengünstige, wirtschaftliche Herstellung und eine flexible Nutzung der Gebäude, die an den Stirnseiten erweiterbar sind.

Die Gebäudehülle besteht aus vorgefertigten Elementen mit hinterlüfteter horizontaler Aussenwandbekleidungen aus Douglasie oder Trapezblechen.
Fensterbänder versorgen die Innenräume mit Licht und gliedern die Fassade.

Grundrisse

Grundrisse
1 / 1
Immowelt logo

Preisdetails

Provision für Käufer
provisionsfrei

Lage

address-icon
Überlingen (88662)
Der Anbieter hat die genaue Adresse nicht freigegeben

Weitere Informationen

Kontakt www.straub-architekt.de
info@straub-architekt.de

Weitere Services

Lust auf eine Besichtigung?
Eine Frage zur Immobilie?
Nachricht hinzufügen
Mit der Nutzung der oben angegebenen Telefonnummer oder durch Klicken auf „Kontaktieren“ akzeptierst Du die Allgemeinen Nutzungsbedingungen, denen Du jederzeit widersprechen kannst. Weitere Informationen zum Datenschutz

Über den Anbieter

Askaniaweg 6, 88662 Überlingen
Herr Georg StraubDein Kontakt
Online-ID: 26MSX2J46RHZ
Wie zufrieden bist du mit dieser Seite (nicht mit der Immobilie selbst)?