Sanierungsbedürftiges Einfamilienhaus mit Potenzial - Ihr Projekt in Rheinstetten-Mörsch
Willkommen in Ihrem neuen Zuhause in Rheinstetten / Mörsch! Dieses charmante Einfamilienhaus, ursprünglich 1949 erbaut, bietet eine großzügige Wohnfläche von ca. 171 m² auf einem Grundstück von ca. 419 m².
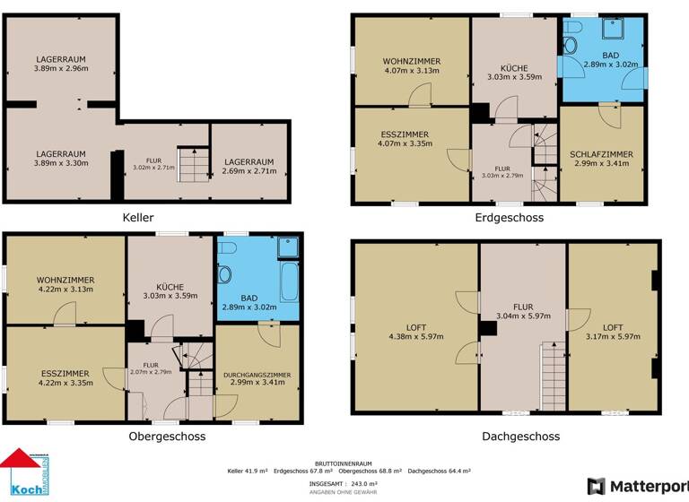
Betreten Sie das Erdgeschoss, das mit einem gemütlichen Essbereich und Wohnzimmer aufwartet, die sich durch Umbaumaßnahmen zu einem großzügigen Wohn- und Essbereich kombinieren lassen. Außerdem finden Sie hier einen Küchenraum, ein Badezimmer und ein zusätzliches Zimmer. Das Obergeschoss begeistert mit einem weiteren Küchenraum, einem Esszimmer, einem Wohnzimmer sowie einem großzügigen Durchgangszimmer und einem Badezimmer mit Badewanne und Dusche. Im Dachgeschoss befinden sich zwei geräumige Zimmer.
Obwohl das Haus über keinen Garten verfügt, bietet der Innenhof ausreichend Parkmöglichkeiten und Potenzial für die Gestaltung eines gemütlichen Freisitzes. Eine große Scheune im Außenbereich bietet zudem vielfältige Umgestaltungs- und Ausbauoptionen.
Das Haus ist teilweise unterkellert, wobei der gemauerte Keller aufgrund des Baujahres eine leichte Feuchtigkeit aufweist. Bitte beachten Sie, dass es keine zentrale Heizungsanlage gibt; wir empfehlen den Einbau einer neuen Heizung. Der Energieausweis wird derzeit erstellt.
Dieses sanierungsbedürftige Haus eignet sich hervorragend als Mehrgenerationenhaus und könnte nach passenden Umbaumaßnahmen in zwei separate Wohneinheiten unterteilt werden.
Die Immobilie ist nach dem Kauf bezugsfrei. Nutzen Sie diese einmalige Gelegenheit, dieses individuell anpassbare Haus zu Ihrem neuen Zuhause zu machen!
Merkmale
Bezug: nach Kauf bezugsfrei
419 m² Grundstück
Haustiere erlaubt
Kelleranteil
2 Stellplätze: 2 Außen-Stellplätze
- Einfamilienhaus zur Sanierung in Rheinstetten / Mörsch - Baujahr 1949, teils unterkellert mit gemauertem Keller - Grundstücksgröße: ca. 419 m², Wohnfläche: ca. 171 m² - 8 Zimmer: 5 Schlafzimmer, 2 Badezimmer - Heizung: Ofenheizung (Holz), Empfehlung für Einbau einer neuen Heizung - Energieausweis in Erstellung - Erdgeschoss: Essbereich und Wohnzimmer, Küche, Badezimmer, weiteres Zimmer - Möglichkeit zur Kombination von Wohn- und Essbereich nach Umbau - Obergeschoss: Küche, Esszimmer, Wohnzimmer, großzügiges Durchgangszimmer, Badezimmer mit Badewanne und Dusche - Dachgeschoss: 2 große Zimmer - Große Scheuer im Außenbereich bietet Umgestaltungs- und Ausbaupotenzial - Innenhof mit Parkmöglichkeiten und Freisitzoption - Kein Garten vorhanden, aber Innenhof nutzbar - Eignung als Mehrgenerationenhaus, Möglichkeit zur Aufteilung in 2 Wohneinheiten nach Umbau - Nach Kauf bezugsfrei verfügbar
Grundrisse
Grundrisse
1 / 5
Realisiere Dein Projekt
Bausubstanz und Energie
Energieausweis
H
Baujahr1946
Zustand der Immobilierenovierungsbedürftig / sanierungsbedürftig
HeizungsartOfen
EnergieträgerHolz
Preisdetails
Kaufpreis
371000 €371.000 €
2.169,59 €/m²
Provision für Käufer
2,38 % vom Kaufpreis inklusive Mwst. inkl. MwSt.
Weitere Preisinformationen
2 Stellplätze
Geschätzte Gesamtkosten
405.800 €1
Kaufpreis
371.000 €
Kaufnebenkosten
34.800 €
2
Notarkosten (1,5%)
5.565 €
Grunderwerbsteuer (5%)
18.550 €
Provision für Käufer (2,38%)
8.830 €
Grundbucheintrag (0,5%)
1.855 €
1Der angezeigte Wert ist eine automatisch berechnete Schätzung von immowelt.
2Bei den Angaben handelt es sich um ortsübliche Werte. Individuelle Kosten können abweichen.
Lage
Mörsch, Rheinstetten / Mörsch (76287)
Der Anbieter hat die genaue Adresse nicht freigegeben
Dieses charmante Einfamilienhaus befindet sich in einer herausragenden Lage im Herzen von Rheinstetten Mörsch. Die Immobilie liegt in unmittelbarer Nähe der zentral gelegenen katholischen Kirche, was ihr eine einzigartige Verbindung zur historischen und kulturellen Vergangenheit der Gemeinde verleiht.
Die Bewohner genießen eine hervorragende Anbindung an lokale Annehmlichkeiten, da Einkaufsläden bequem zu Fuß oder mit dem Fahrrad erreichbar sind. Diese strategische Lage bietet nicht nur die Bequemlichkeit des städtischen Lebens, sondern auch das ruhige und familiäre Flair einer eng verbundenen Gemeinde. Rheinstetten Mörsch stellt somit den idealen Ort für Familien dar, die nach einer harmonischen Balance zwischen städtischem Komfort und ländlichem Charme suchen.
Weitere Informationen
Sonstiges
Der Energieausweis wir gerade erstellt und Ihnen nachgereicht.
Provisionshinweis:2 % des Kaufpreises zuzüglich MwSt., fällig vom Käufer bei notariellem Kaufvertragsabschluss.
Der Immobilienmakler hat einen provisionspflichtigen Maklervertrag mit dem Verkäufer in gleicher Höhe abgeschlossen.
Koch Immobilien übernimmt keine Gewähr für die Aktualität, Vollständigkeit, Qualität und Korrektheit der uns bereitgestellten Informationen. Die Grundrisse und Zeichnungen sind nicht maßstabsgerecht. Die Unterlagen und Angaben wurden uns vom Auftraggeber überlassen.
Für Rückfragen sprechen Sie bitte direkt mit Herrn Koch unter der Tel. Nummer 015140065483 oder kontakieren Sie uns per E-Mail. Sie haben eine Immobilie zu verkaufen oder zu vermieten? Sie möchten, dass Ihre Immobilie auch professionell angeboten wird? Kein Problem sprechen Sie mit Herrn Koch unter der Tel. Nummer 015140065483 oder gehen Sie auf unsere Webseite.
Stichworte
Anzahl der Schlafzimmer: 5, Anzahl der Badezimmer: 2, Distanz zur nächsten Einkaufsmöglichkeit: 1.00, Distanz zum Flughafen: 11.44, Distanz zum Hauptbahnhof: 0.50, Distanz zum Bus: 0.70, Distanz zur nächsten Gaststätte: 0.08, Distanz zur Hauptschule: 5.84