Version: 8.26.0Navigation überspringen
Mietkosten auf Anfrage
479 m² Bürofläche  •  teilbar ab 113 m²
Immowelt logo

Büro zur Miete • provisionsfrei
Mietkosten auf Anfrage
479 m² Bürofläche  •  teilbar ab 113 m²

Zentrale Praxis- und Schulungsfläche in Duisburg!

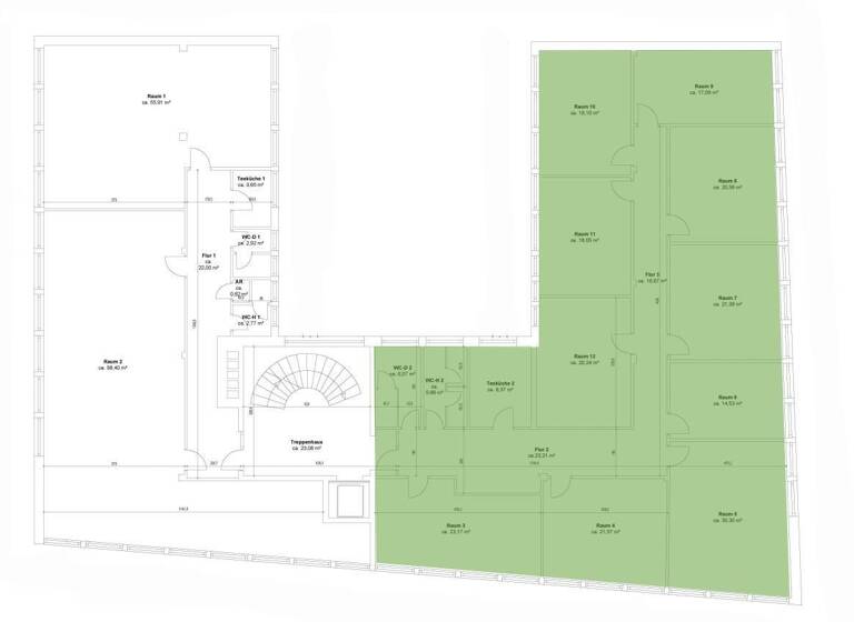
In zentraler Lage von Duisburg präsentiert sich diese gepflegte Büroimmobilie als attraktiver Standort für Unternehmen, die Wert auf eine repräsentative Adresse und eine funktionale Arbeitsumgebung legen. Zur Verfügung stehen drei Büroeinheiten; im 2. Obergeschoss mit ca. 185 m², im 3. Obergeschoss mit ca. 181 m² sowie im Dachgeschoss mit ca. 113 m². Die Flächen eignen sich sowohl für kleinere, eigenständige Nutzungseinheiten als auch für Unternehmen mit wachsendem Flächenbedarf, die mehrere Ebenen kombinieren möchten.

Die derzeitige Raumaufteilung ist überwiegend in Einzel- und Doppelbüros strukturiert und bietet somit ideale Voraussetzungen für konzentriertes Arbeiten, vertrauliche Gespräche und eine klare Organisationsstruktur. Gleichzeitig lässt sich die Raumstruktur bei Bedarf anpassen, sodass auch moderne Bürokonzepte mit offeneren Arbeitsbereichen oder kombinierten Teamzonen realisierbar sind.

Die Ausstattung der Flächen entspricht zeitgemäßen Anforderungen. Teppichboden sowie Vinyl in Holzoptik schaffen eine angenehme und zugleich pflegeleichte Arbeitsatmosphäre. Die vorhandene EDV-Verkabelung vom Vormieter ermöglicht einen schnellen Start in den neuen Geschäftsräumen; die Kabelführung erfolgt über Bodentanks und Kabelkanäle und unterstützt eine flexible Positionierung der Arbeitsplätze. Elektrisch gesteuerte außenliegende Raffstoren sorgen für effektiven Sonnenschutz und tragen zu einem angenehmen Raumklima bei. Eine optionale Kühlung bietet zusätzlichen Komfort in den Sommermonaten. Rasterdecken mit integrierten Einbauleuchten gewährleisten eine gleichmäßige, arbeitsgerechte Beleuchtung. Eine Teeküche ist bereits vorhanden und schafft praktische Aufenthaltsmöglichkeiten für Mitarbeitende. Die Beheizung erfolgt effizient über Fernwärme. Ein Personenaufzug erschließt die Etagen komfortabel und unterstreicht die Nutzerfreundlichkeit des Gebäudes.

Die innerstädtische Lage bietet eine sehr gute Infrastruktur mit vielfältigen gastronomischen Angeboten, Einkaufsmöglichkeiten und Dienstleistern im direkten Umfeld. Parkmöglichkeiten stehen in nahegelegenen Parkhäusern zur Verfügung, sodass sowohl Mitarbeitende als auch Besucher von einer komfortablen Erreichbarkeit profitieren.

Merkmale

  • Bezug: nach Vereinbarung
  • Personenaufzug
  • Bodenbelag: Kunststoff, Teppich
  • Fenster: Sonnenschutz
Bodenbelag: Teppichboden, Vinyl in Holzoptik
EDV-Verkabelung: vom Vormieter
Kabelführung: Bodentanks, Kabelkanäle
Kühlung: optional möglich
Sonnenschutz: Raffstoren außen (elektrisch)
Küche: vorhanden
Beleuchtung: Rasterdecken-Einbauleuchten
Aufzug: Personenaufzug
Heizung: Fernwärme
Barrierearm: Ja
Parkplätze: Parkhäuser im Umfeld

Grundrisse

Grundrisse
1 / 3

Bausubstanz und Energie

Möchtest du Details zum Energieverbrauch?info_energy_calculation-icon
  • Baujahr1960
  • HeizungsartZentralheizung
  • EnergieträgerFernwärme
Immowelt logo

Mietkosten

Nettomiete zzgl. Nebenkosten
nicht angegeben
Nebenkosten
4,50 €
Zusätzliche Kosten
Heizkosten
Provision für Mieter
provisionsfrei
Kaution
keine Angabe

Lage

address-icon
AltstadtDuisburg (47051)
Der Anbieter hat die genaue Adresse nicht freigegeben
Die Immobilie befindet sich in zentraler Innenstadtlage von Duisburg - direkt gegenüber dem Rathaus und nur wenige Schritte von der belebten Münzstraße sowie der Königsgalerie entfernt. Eine hervorragende Erreichbarkeit ist durch die unmittelbare Nähe zur U-Bahn-Station "Duisburg-Rathaus" gewährleistet, die sich direkt vor dem Gebäude befindet. Für Autofahrer stehen ein öffentlich zugänglicher Parkplatz sowie ein Parkhaus in direkter Umgebung zur Verfügung. Der Hauptbahnhof ist fußläufig in etwa 15 Minuten erreichbar, zudem besteht eine schnelle Anbindung an die Autobahn A40 über die nahegelegene Steinsche Gasse.

Weitere Informationen

Sonstiges GEG 2020: Ein Energieausweis liegt zurzeit nicht vor.

Dieses Angebot ist provisionsfrei für den Mieter!

Alle Informationen in diesem Exposé beruhen auf Angaben, die wir vom Vermieter erhalten haben. Für Richtigkeit und Vollständigkeit übernehmen wir keine Gewähr. Zwischenvermietung vorbehalten. Die Grundrisse müssen nicht mit der aktuellen Raumaufteilung übereinstimmen und sind unmaßstäblich. Für Flächenangaben übernehmen wir keine Gewähr. In Planunterlagen eventuell abgebildete Möblierungen sind nicht Inhalt des Mietgegenstands.

Es gelten ausschließlich unsere AGB (www.cubion.de/agb). Stichworte Sonstiges: EDV-Verkabelung, Kabelkanäle, EDV-Arbeitsplatzbeleuchtung, Getrennte Damen- und Herren-WCs

Weitere Services

Lust auf eine Besichtigung?
Eine Frage zur Immobilie?
Mit einer persönlichen Nachricht hast du bessere Chancen auf eine Antwort.
Mit der Nutzung der oben angegebenen Telefonnummer oder durch Klicken auf „Kontaktieren“ akzeptierst Du die Allgemeinen Nutzungsbedingungen, denen Du jederzeit widersprechen kannst. Weitere Informationen zum Datenschutz

Über den Anbieter

Akazienallee 65, 45478 Mülheim
partner badge
3 Jahre Partnerschaft
Herr Tiziano SannaDein Kontakt
Online-ID: 25E1BK1VNZS7
Referenznummer: 1038
Wie zufrieden bist du mit dieser Seite (nicht mit der Immobilie selbst)?