Version: 8.22.4Navigation ĂĽberspringen
15,50 €
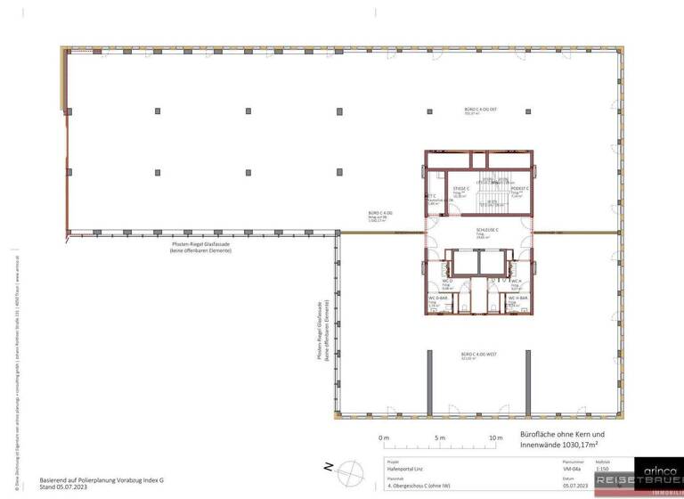
1.030,2 m² Bürofläche
Immowelt logo

Bürofläche zur Miete - Erstbezug
15,50 Euro pro Quadratmeter
1.030,2 m² Bürofläche

DAS HAFENPORTAL I BÜROFLÄCHE IM 4.OG

Die Zukunft beginnt im Hafen Linz - werden Sie Teil des Projektes! Die wirtschaftliche Spitzenlage im industriellen Herz Ă–sterreichs sowie im Zentrum des oberösterreichischen Technologie- und Innovationsclusters verleiht Ihrem Unternehmensstandort nachhaltige Stärke und höchste Attraktivität. Auf ganzen 6 Ebenen bietet das Hafenportal modernste und hochflexible Flächen fĂĽr BĂĽros und Geschäftsflächen. Dank durchdachter Architektur lassen sich individuelle Raumkonzepte problemlos realisieren - ideal fĂĽr Unternehmen mit speziellen Anforderungen an Layout und Nutzung.

DETAILS HAFENPORTAL

- insgesamt ca. 18.000 m² Bürofläche (1.OG - 6. OG)
- bereits ca. 2/3 an ein weltweit bekanntes Unternehmen (AAA Rating) vermietet 
- insgesamt ca. 923 m² Geschäftsflächen (EG)
- Raumaufteilung ist individuell teilbar
- Deckenheiz- und KĂĽhlsystem
- Personenlifte
- Fernwärme / Fernkälte
- zusätzliche Lüftung durch Bodeninduktivauslässe
- auĂźenliegende, elektrische Raffstores
- LED Grundbeleuchtung
- Boden: belagsfertiger Doppelboden
- Fenster: Kunststofffenster
- Zutrittssystem: elektronische SchlieĂźanlage
- Miete: abhängig von Lage im Objekt bzw. Ausstattung
- Befristung: nach Vereinbarung
- Tiefgaragenstellplatz: EUR 125 zzgl. EUR 25 Betriebskosten

Die Lage an der Regensburger Straße / Industriezeile überzeugt mit exzellenter Verkehrsanbindung: In wenigen Minuten erreicht man die Stadtautobahn A7 und von dort die A1. Auch mit öffentlichen Verkehrsmitteln ist der Standort optimal angebunden: Eine direkt im Gebäude gelegene Bushaltestelle verbindet das Areal in etwa 15 Minuten mit dem Linzer Hauptbahnhof.

Infrastruktur / Entfernungen

Gesundheit
Arzt <1.000m
Apotheke <750m
Klinik <1.750m
Krankenhaus <1.000m

Kinder & Schulen
Kindergarten <250m
Schule <750m
Universität <1.000m
Höhere Schule <1.750m

Nahversorgung
Supermarkt <500m
Bäckerei <1.000m
Einkaufszentrum <2.000m

Sonstige
Bank <750m
Geldautomat <750m
Post <2.000m
Polizei <750m

Verkehr
Bus <250m
StraĂźenbahn <2.000m
Bahnhof <1.250m
Autobahnanschluss <1.000m
Flughafen <2.250m

Angaben Entfernung Luftlinie / Quelle: OpenStreetMap

Merkmale

  • Bezug: sofort
  • Personenaufzug

Grundrisse

Grundrisse
1 / 2

Realisiere Dein Projekt

Bausubstanz und Energie

Heizwärmebedarf (HWB)

B

Gesamtenergieeffizienz (fGEE)

A
  • Baujahr2024
  • Zustand der ImmobilieNeubau, Erstbezug
  • HeizungsartZentralheizung
  • EnergieträgerFernwärme
Immowelt logo

Mietkosten

Nettokaltmiete
15,50 €/m²
16.826 €
Betriebskosten
3.149,85 €
Provision fĂĽr Mieter
3 Bruttomonatsmieten zzgl. 20% USt.
Kaution
3 Bruttomonatsmieten
Weitere Preisinformationen
Nettokaltmiete: 16.826,00 EUR

Lage

address-icon
Regensburger Straße, Lustenau, Linz (4020)

Weitere Informationen

Stichworte Nutzfläche: 1.085,74 m², Bundesland: Oberösterreich, 6 Etagen

Weitere Services

Lust auf eine Besichtigung?
Eine Frage zur Immobilie?
Nachricht hinzufĂĽgen
Mit der Nutzung der oben angegebenen Telefonnummer oder durch Klicken auf „Kontaktieren“ akzeptierst Du die Allgemeinen Nutzungsbedingungen, denen Du jederzeit widersprechen kannst. Weitere Informationen zum Datenschutz

Ăśber den Anbieter

Hirschgasse 3, 4020 LINZ
partner badge
6 Jahre Partnerschaft
Herr Fritz ReisetbauerDein Kontakt

Weitere Unterlagen

Online-ID: 2ne4754
Referenznummer: OBGC2026011511292403329b5395444
Reisetbauer Immobilien GmbH
Reisetbauer Immobilien GmbH
Nachricht hinzufĂĽgen
Mit der Nutzung der oben angegebenen Telefonnummer oder durch Klicken auf „Kontaktieren“ akzeptierst Du die Allgemeinen Nutzungsbedingungen, denen Du jederzeit widersprechen kannst. Weitere Informationen zum Datenschutz
Wie zufrieden bist du mit dieser Seite (nicht mit der Immobilie selbst)?