Version: 8.24.0Navigation überspringen
195.000 €
3 Zimmer  •  62 m²  •  frei ab sofort
Immowelt logo

Wohnung zum Kauf
195000 €
3.145 €/m²
3 Zimmer  •  62 m²  •  frei ab sofort

Modernes Apartment in zentraler, ruhiger Lage mit großer Dachterrasse und Ausbauoption / TI DA 1035

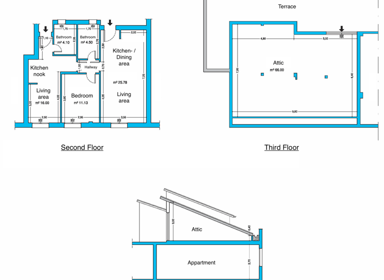
Dieses moderne Apartment mit ca. 62 m² Wohnfläche befindet sich in einer zentralen, zugleich ruhigen Lage von Dolceacqua, die bequem mit dem Auto erreichbar ist. Die Wohnung liegt im zweiten Obergeschoss und bietet einen schönen Blick auf den Fluss. Zwei separate Eingänge ermöglichen flexible Nutzungsmöglichkeiten, etwa als großzügige Einheit mit separatem Bereich oder mit Potenzial zur Vermietung eines Teils der Immobilie.

Die Haupteinheit überzeugt mit einem hellen, offenen Wohnbereich, der eine moderne Küche mit Frühstückstresen, einen Essbereich sowie eine gemütliche Sitzecke umfasst. Ein geräumiges Schlafzimmer und ein Badezimmer mit Badewanne komplettieren das Raumangebot.

Über einen kleinen Flur gelangt man zur zweiten Einheit, die ein weiteres Wohn-/Schlafzimmer, eine Nische mit allen Anschlüssen für eine zusätzliche Küchenzeile sowie ein Duschbad umfasst. Diese Wohneinheit ist bei Bedarf separat über den zweiten Eingang zugänglich.

Das darüber liegende, zugehörige Dachgeschoss mit ca. 66 m² bietet hervorragendes Ausbaupotential – beispielsweise zur Erweiterung der Wohnfläche oder als Sommerküche. Eine Verbindung zum Apartment im zweiten Obergeschoss kann durch den Einbau einer Treppe problemlos hergestellt werden. Vom Dachgeschoss gelangt man direkt auf die ca. 55 m² große Dachterrasse, die zum Verweilen im Freien einlädt und einen reizvollen Ausblick auf den Ort und die umliegende Natur bietet. Derzeit sind Dachgeschoss und Terrasse über das gemeinschaftliche Treppenhaus zugänglich.

Die Wohnung befindet sich in gepflegtem Zustand und ist sofort bezugsfertig. Für wohlige Wärme sorgt eine moderne Gaszentralheizung. Zur Ausstattung gehören unter anderem doppelt verglaste PVC-Fenster und Aluminiumläden. Ein privater, offener Parkplatz, erreichbar über ein elektronisch gesteuertes Eingangstor, rundet das Angebot ab.

Dolceacqua besticht durch seine malerische Kulisse, eine lebendige Gemeinschaft und eine ausgezeichnete Infrastruktur. Restaurants, Geschäfte, Banken, Schulen, Postamt sowie medizinische Versorgung sind fußläufig erreichbar. Die sanfte Hügellandschaft mit Weinbergen und Wanderwegen macht die Umgebung zum Paradies für Naturfreunde, Wanderer und Radfahrer.

Die ligurische Küste mit Bordighera und Ventimiglia ist in etwa 15 Minuten mit dem Auto erreichbar, Sanremo in ca. 35 Minuten und Monaco in rund 45 Minuten. Der internationale Flughafen Nizza ist in etwa einer Stunde bequem erreichbar.

Merkmale

  • Außen-Stellplatz
  • Bidet
  • Terrasse
  • Bergblick, Fernblick
  • teilweise möbliert
  • Badezimmer: Badewanne, Bad mit Fenster
  • Bodenbelag: Fliesen

Grundrisse

Grundrisse
1 / 1

Realisiere Dein Projekt

Bausubstanz und Energie

Der Anbieter hat keine Informationen zum Energieverbrauch bereit gestellt.
  • Zustand der ImmobilieGepflegt
  • HeizungsartZentralheizung
  • EnergieträgerGas
Immowelt logo

Preisdetails

Kaufpreis
195000 €
3.145,16 €/m²
Provision für Käufer
Die Provision, zahlbar vom Käufer, beträgt 3,66% des Kaufpreises inklusive MwSt.

Lage

address-icon
Via RomaDolceacqua (18035)

Weitere Informationen

Stichworte Versorgung: Städtische Wasserversorgung, Städtische Stromversorgung

Weitere Services

Lust auf eine Besichtigung?
Eine Frage zur Immobilie?
Nachricht hinzufügen
Mit der Nutzung der oben angegebenen Telefonnummer oder durch Klicken auf „Kontaktieren“ akzeptierst Du die Allgemeinen Nutzungsbedingungen, denen Du jederzeit widersprechen kannst. Weitere Informationen zum Datenschutz

Über den Anbieter

Lindenallee 25, 20259 Hamburg
partner badge
Partnerschaft
Frau Peggy PetersDein Kontakt
Online-ID: 2lffs56
Referenznummer: TI DA 1035
Immobilienpartner TERRA ITALIA  UG (haftungsbeschränkt)
Immobilienpartner TERRA ITALIA UG (haftungsbeschränkt)
Bewertung: 5 von 5 Sternen
Nachricht hinzufügen
Mit der Nutzung der oben angegebenen Telefonnummer oder durch Klicken auf „Kontaktieren“ akzeptierst Du die Allgemeinen Nutzungsbedingungen, denen Du jederzeit widersprechen kannst. Weitere Informationen zum Datenschutz
Wie zufrieden bist du mit dieser Seite (nicht mit der Immobilie selbst)?