Wohnen mit Wintergarten, Wellnessbad und traumhaftem Gartenblick
Diese gepflegte und laufend instand gehaltene Immobilie aus dem Baujahr 1999 präsentiert sich in einem hervorragend guten Zustand und überzeugt mit einer durchdachten Aufteilung, großzügigen Raumverhältnissen und einem wohnlichen Gesamtbild. Auf ca. 187 m² Wohnfläche und einem ca. 520 m² großen Grundstück erwartet Sie ein Haus mit viel Licht, angenehmer Großzügigkeit und vielseitigen Nutzungsmöglichkeiten - ideal für Familien, Mehrgenerationenkonzepte oder das Arbeiten und Wohnen unter einem Dach.
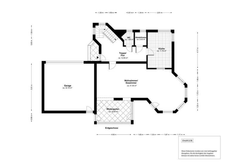
Bereits beim Betreten vermittelt der kürzlich erneuerte Eingangsbereich einen einladenden und gepflegten ersten Eindruck. Im Erdgeschoss bildet der außergewöhnlich große Wohn- und Essbereich das Herzstück des Hauses. Die offene, weitläufige Raumwirkung wird durch zahlreiche Fensterflächen und den direkt angeschlossenen Wintergarten zusätzlich unterstrichen. Dadurch entsteht ein besonders heller und freundlicher Lebensmittelpunkt mit fließendem Übergang zwischen Innen- und Außenbereich. Ein echtes Highlight ist der direkte Blick in den Garten auf den wunderschön modellierten Teich mit Fischbesatz, der dem Außenbereich eine ganz besondere Atmosphäre verleiht. Ergänzt wird diese Ebene durch eine separate Küche, ein modernisiertes Gäste-WC, einen praktischen Abstellraum sowie die Terrasse und den direkten Zugang in den Garten.
Im Dachgeschoss setzt sich der großzügige Charakter des Hauses fort. Hier befindet sich ein großes Schlafzimmer sowie ein beeindruckendes Badezimmer mit Wellnesscharakter. Dieses bietet viel Platz und Komfort mit Sauna, abgeschlossener Dusche, Badewanne und einem zusätzlich separierten WC. Ein Balkon ergänzt diese Etage und schafft einen angenehmen Rückzugsort mit schönem Ausblick. Auch der Heizungsraum ist auf dieser Ebene untergebracht.
Besonders hervorzuheben ist der Kellerbereich, der weit mehr als klassische Nutzfläche bietet. Durch den vorhandenen zweiten Eingang sowie die Ausstattung mit Küche und Sanitärbereich eignet sich diese Ebene hervorragend für die Nutzung als Einliegerwohnung, für erwachsene Kinder, Gäste, Homeoffice oder einen separaten Arbeits- und Lebensbereich. Neben einem Büro stehen hier ein sehr großes, vielseitig nutzbares Zimmer, eine weitere Küche sowie ein großzügiger Abstellraum zur Verfügung. Die vorhandene Raumstruktur eröffnet hier zahlreiche Nutzungsperspektiven.
Das Raumangebot umfasst insgesamt 4 Zimmer, von denen sich 3 ideal als Schlafzimmer nutzen lassen. Hinzu kommen die großzügigen Nebenflächen, die Garage sowie zwei weitere freie Stellplätze direkt am Haus. Die in den letzten Jahren vorgenommenen Erneuerungen - unter anderem das Gäste-WC im Erdgeschoss, die Hebepumpe und der Eingangsbereich - unterstreichen den sehr gepflegten Gesamtzustand der Immobilie.
Insgesamt handelt es sich um ein lichtdurchflutetes, äußerst gepflegtes Haus mit besonderem Wohnwert, viel Platz und einer seltenen Kombination aus Großzügigkeit, Wellness, flexibhem Untergeschoss und liebevoll gestaltetem Außenbereich. Eine Immobilie, die sowohl durch ihre Substanz als auch durch ihre Atmosphäre überzeugt.