Version: 8.22.6Navigation überspringen
385.000 €
2 Zimmer  •  66,4 m²
Immowelt logo

Wohnung zum Kauf
385000 €
5.799 €/m²
2 Zimmer  •  66,4 m²

Moderne 2-Zimmer Altbauwohnung in Top Lage!

Lage:
Top Lage mit Nähe zur Innnenstadt und Donaukanal sowie Prater-Auen, alles fußläufig erreichbar.Das Haus bietet durch die direkt gegenüberliegende U3-Station "Schlachthausgasse" sowie durch die Straßenbahnlinie 18, mit welcher Sie einfach und schnell direkt am Hauptbahnhof gelangen, und die Buslinien 77A und 80A eine optimale öffentliche Verkehrsanbindung. Die beliebte Landstraße Hauptstraße mit zahlreichen Lokalen und Einkaufsmöglichkeiten ist ebenfalls in unmittelbarer Nähe. Sie finden alle wichtigen Einrichtungen wie Ärzte, Apotheken, Schulen, Kindergärten und Universitäten in der Umgebung. Zahlreiche Einkaufsmöglichkeiten, Supermärkte, Bäckereien und ein Einkaufszentrum sind ebenfalls fußläufig erreichbar.


Objekt:
Diese 2 Zimmerwohnung befindet sich im 2.Obergeschoss eines vierstöckigen Zinshauses. Es handelt sich um ein 1905 errichtetes Eckhaus mit glatter Fassade. Das Stiegenhaus sowie die Fassade werden gegenständlich saniert. Der Eingangsbereich des Hauses wird mit Altwiener Fliesen und charakteristischen Lustern geschmückt. Die Wohnung wird mit einer Gastherme beheizt.


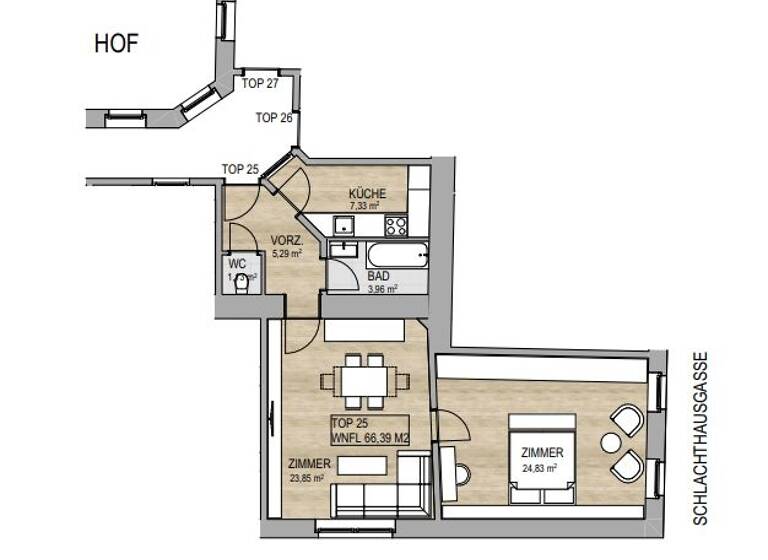
Die Wohnung verfügt über 67m² und teilt sich wie folgt auf:


- Vorraum
- Wohnzimmer
- Schlafzimmer
- Badezimmer
- Küche
- WC


Die lichtdurchflutete Wohnung überzeugt durch Altbau-Charakter in Kombination mit modernen Elementen. Durch moderne Fliesen und einer neuen Küchenzeile ist die geräumige Küche eines der Highlights der Wohnung. Die beiden Zimmer bieten über 3 Meter Raumhöhe und knapp 25 m² Fläche. Das Badezimmer ist mit Badewanne, Dusche, Waschmaschinenanschluss und modernen Fliesen ausgestattet.



Ausstattung:
- Bad mit Wanne
- Einbauküche
- Fliesenboden & Parkettboden
- Gas- Etagenheizung
- Lift

Merkmale

  • Bezug: sofort
  • Personenaufzug
  • Kelleranteil
  • Barrierefrei

Grundrisse

Grundrisse
1 / 2

Realisiere Dein Projekt

Bausubstanz und Energie

Heizwärmebedarf (HWB)

D

Gesamtenergieeffizienz (fGEE)

D
  • Baujahr1905
  • Zustand der ImmobilieAltbau (bis 1945)
  • HeizungsartEtagenheizung
  • EnergieträgerGas
Immowelt logo

Preisdetails

Kaufpreis
385000 €
5.799,07 €/m²
Provision für Käufer
3%

Lage

address-icon
Wien (1030)
Der Anbieter hat die genaue Adresse nicht freigegeben

Weitere Informationen

Stichworte Anzahl der Badezimmer: 1, Anzahl der separaten WCs: 1

Weitere Services

Lust auf eine Besichtigung?
Eine Frage zur Immobilie?
Nachricht hinzufügen
Mit der Nutzung der oben angegebenen Telefonnummer oder durch Klicken auf „Kontaktieren“ akzeptierst Du die Allgemeinen Nutzungsbedingungen, denen Du jederzeit widersprechen kannst. Weitere Informationen zum Datenschutz

Über den Anbieter

Standorte in: Wien, NÖ, OÖ; Szg, Stk, Tirol & Kärnten, 1150 WIEN
partner badge
Partnerschaft
Frau Monika RienerDein Kontakt
Online-ID: 2kknx5k
Referenznummer: 141/83077
Rustler Immobilientreuhand GmbH
Rustler Immobilientreuhand GmbH
Bewertung: 4,4 von 5 Sternen
Nachricht hinzufügen
Mit der Nutzung der oben angegebenen Telefonnummer oder durch Klicken auf „Kontaktieren“ akzeptierst Du die Allgemeinen Nutzungsbedingungen, denen Du jederzeit widersprechen kannst. Weitere Informationen zum Datenschutz
Wie zufrieden bist du mit dieser Seite (nicht mit der Immobilie selbst)?