Version: 8.26.0Navigation überspringen
1.450.000 €
4 Zimmer  •  196 m²  •  13.030 m² Grundstück
Immowelt logo

Haus zum Kauf
1450000 €
7.398 €/m²
4 Zimmer  •  196 m²  •  13.030 m² Grundstück

Dungensesteeg 10 5482 ZT SCHIJNDEL

a beautiful location for horse lovers!
discover this unique property that offers plenty of opportunities for hobby and (semi)professional horse keeping at home. in addition to the spacious, lifetime-proof, detached house, there is a special outdoor favorite: a detached horse stable, finished with an eye for detail and quality.
high-quality materials such as stainless steel accents and baked clinkers give the whole a unique look. the stable has six horse stalls with a functional washing area.
furthermore, the plot is equipped with a spacious outdoor arena with an ebb and flow floor and carefully landscaped paddocks - perfect for the serious horse lover! contact us quickly for a viewing and experience
for yourself the unique atmosphere and all the possibilities this property has to offer!

residence
ground floor
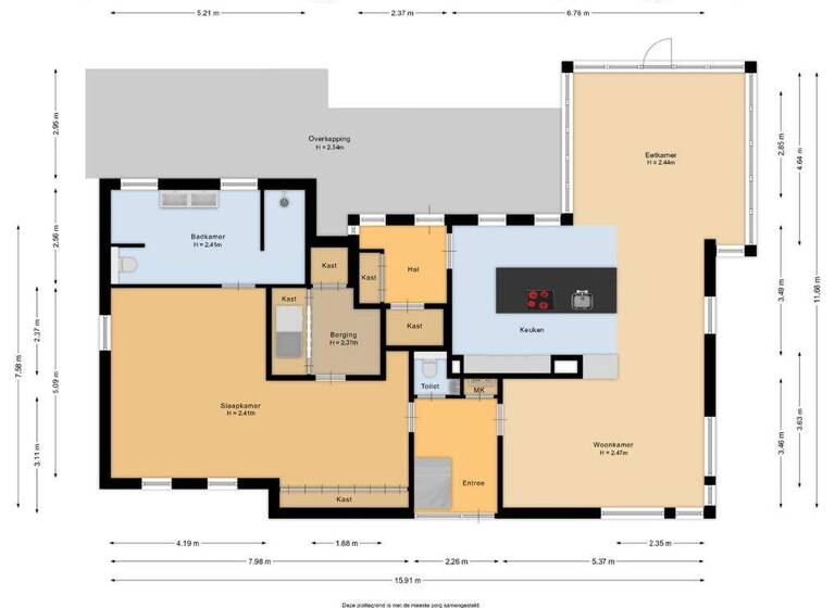
the spacious entrance hall provides access to the living room, bedroom, toilet, and meter cupboard. the generous living room has a tiled floor, stucco walls, and a stucco ceiling. the space is divided into a sitting area and a dining area. the spacious living room has tiled floors, stucco walls, and a stucco ceiling. the space is divided into a sitting area and a dining area. the cozy sitting area, with an attractive gas fireplace, invites you to relax and enjoy cozy evenings. the dining area benefits from an abundance of natural light and a beautiful view of the horse stable.
the kitchen is located in the middle. the kitchen with sink/cooking island and an appliance wall is equipped with a dishwasher, combi-oven/microwave, freezer, and refrigerator. the kitchen has plenty of storage space. the spacious bedroom with en-suite bathroom has beautiful herringbone pvc flooring, sleek stucco walls, and a stucco ceiling with recessed lighting. the generous size of the room offers you plenty of possibilities. thanks to the built-in closets, there is ample storage space-a perfect solution for all your clothes and accessories. there is also air conditioning. the bedroom provides access to the en-suite bathroom. this attractive bathroom is fully tiled and equipped with a very spacious walk-in shower, a double sink with cabinet, and a floating toilet. the spacious walk-in shower with its sun shower and infrared function offers a true wellness experience, ideal for unwinding after a long day. in short, a wonderful space to relax. the laundry room is also accessible from the bedroom. this practical space is furnished with custom-made cabinets, including connections for washing equipment and mechanical extraction, offering an efficient and organized solution-with the added advantage that the equipment is placed at a height. a rear porch with storage and built-in cabinets provides access to the canopy and the yard. here too, connections for washing appliances are available. first floor the landing provides access to two spacious bedrooms and a bathroom. both bedrooms have laminate flooring, stucco walls, and a paneled ceiling. sliding wardrobes have been created under the sloping roof, providing plenty of storage space. the bathroom is fully tiled and equipped with a walk-in shower, a sink with cabinet, and a floating toilet. a dormer window provides natural ventilation and light. a hatch provides access to the storage attic
where the air conditioning unit is located.


garden
discover an oasis of peace and privacy: the entire house is surrounded by an outdoor area with a lawn and paving stones. the spacious covered terrace at the rear of the house is the ideal place
to relax after a long day, enjoy a delicious cup of coffee, or spend quality time with family and friends. here, you will not only experience absolute peace and privacy, but also a beautiful view that completes the rural atmosphere.

horse stable
discover this beautiful, detached horse stable; a true paradise for equestrian enthusiasts. the stable is built in a traditional style with brick facades, some of which are clapboard, and is finished with a roof featuring sandwich panels in an authentic roof tile pattern. the whole is enclosed by french doors. the aisle is equipped with baked clinkers. the six horse stalls, each with a rubber floor and partly occupied and partly rubber walls. the special stainless steel revolving doors with bamboo finish and the separate outside hatch per stall contribute to the modern look and functionality. the tack room is finished with stucco walls, a wooden beam ceiling, and a concrete floor. this room is equipped with connections for washing equipment, an irrigation pump, a fuse box, and the power supply for the pasture. for extra comfort, the stable has a toilet room, which is equipped with a wall-mounted toilet, a urinal, and a sink.
the washing area, with a rubber floor and walls, is equipped with hot and cold water, so your horses can always enjoy optimal care. finally, the separate storage room, with a concrete floor, solid walls, and an insulated roof, with french doors and a wicket door, offers the perfect place to safely store supplies and materials.
this horse stable combines functionality and comfort with a well-thought-out layout and quality finish -
the ideal investment for serious horse lovers who appreciate attention to detail and excellent facilities.
welcome to your new equestrian paradise!

other facilities
the outdoor arena measures approximately 25 m x 50 m and has an ebb and flow floor. the pasture is divided into five paddocks. these paddocks are equipped with automatic drinking troughs. the fence is made of wood and is extra high.
the yard can be closed off with an automatic gate.

special features
- the entire property is connected to the sewer system, fiber optics, and gas via a propane tank.
- the house is fully insulated.
- the ground floor is largely equipped with underfloor heating.
- the property is equipped with an alarm system connected to a monitoring station.
- the stable is fully insulated.
- the entire stable (including the stalls) is equipped with camera surveillance.
- there is a sprinkler pit for the ebb and flow soil of the outdoor arena.
- the propane tank is filled automatically.
- quiet location with a beautiful unobstructed view, yet close to the village with all daily amenities.
- riding opportunities in the nearby forest.
- the cities of 's-hertogenbosch and eindhoven are easily accessible via various roads in the vicinity.

Merkmale

  • 13.030 m² Grundstück

Grundrisse

Grundrisse
1 / 3

Virtueller Rundgang

Video

Bausubstanz und Energie

Möchtest du Details zum Energieverbrauch?info_energy_calculation-icon
  • Baujahr1991
  • Zustand der ImmobilieAltbau (bis 1945)
Immowelt logo

Preisdetails

Kaufpreis
1450000 €
7.397,96 €/m²
Provision für Käufer
Bitte beachte, das Angebot kann bei Vertragsabschluss die Zahlung einer Provision beinhalten. Weitere Informationen erhältst Du vom Anbieter.

Lage

address-icon
dungensesteeg 10schijndel (5482 ZT)

Weitere Informationen

Stichworte Lagerfläche: 228,00 m², Anzahl der Schlafzimmer: 3, Anzahl der Badezimmer: 2, Kubatur: 705,00 m³, Bundesland: noord-brabant, 3 Etagen

Weitere Services

Lust auf eine Besichtigung?
Eine Frage zur Immobilie?
Nachricht hinzufügen
Mit der Nutzung der oben angegebenen Telefonnummer oder durch Klicken auf „Kontaktieren“ akzeptierst Du die Allgemeinen Nutzungsbedingungen, denen Du jederzeit widersprechen kannst. Weitere Informationen zum Datenschutz

Über den Anbieter

Gustav Mahlerplein 28, 1082MA Amsterdam
partner badge
Partnerschaft
Chantal CunninghamDein Kontakt
Online-ID: 253ZD29SERP5
Referenznummer: 46801
Wie zufrieden bist du mit dieser Seite (nicht mit der Immobilie selbst)?