Version: 8.25.1Navigation überspringen
11,50 €
212 m² Bürofläche
Immowelt logo

Bürofläche zur Miete
11,50 €
/m²
212 m² Bürofläche

Praktisches Dachgeschoßbüro nahe Hauptbahnhof zu mieten

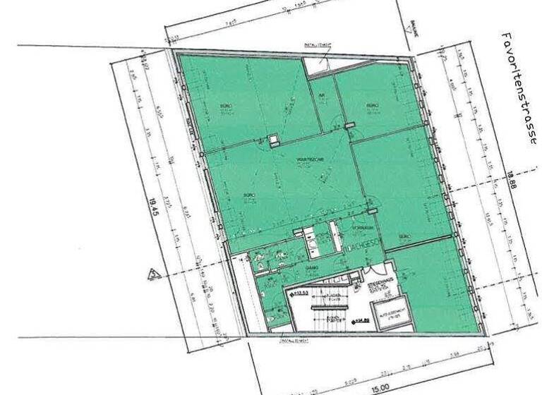
In die Vermarktung gelangt eine moderne Bürofläche gegenüber des Einkaufszentrums "Columbus Center", nur 5 Gehminuten vom Wiener Hauptbahnhof entfernt. Das Büro befindet sich im Dachgeschoss (5. OG) des Hauses und bietet einen Ausblick auf die belebte Fußgängerzone der Favoritenstraße. Die Fläche misst ca. 212m² und besticht durch ihre praktische Raumaufteilung. 

Die Vielzahl an Fenstern sowie die nachgerüstete Klimaanlage schaffen eine helle und angenehme Arbeitsatmosphäre. Kombiniert mit der hochmodernen Ausstattung sowie der durchdachten Raumaufteilung bietet das Objekt ideale Voraussetzungen für Ihr Unternehmen.

Die auf den Fotos erkennbare Möblierung steht im Eigentum des Vormieters und kann nach Rücksprache abgelöst werden. Diese beinhaltet u.A. hochwertige Maßmöbel in Tischlerqualität, wie beispielsweise maßgefertigte Telefonboxen inkl. Multimedia-Anschluss.

Bei Bedarf besteht die Möglichkeit, einen zusätzlichen Lagerraum mit ca. 30m² im Dachgeschoß anzumieten.

Merkmale

  • 5. Geschoss
  • Personenaufzug
  • voll klimatisiert
- Klimaanlage
- Lift
- Teppichboden
- EDV-Verkabelung
- Teeküche
- Arbeitsplatzgerechte Beleuchtung (teilweise LED)
- Getrennte Sanitäranlagen 
- hauseigene Tiefgarage
- Möblierung nach Rücksprache mit dem Vormieter gegen Ablöse verfügbar

Grundrisse

Grundrisse
1 / 1

Realisiere Dein Projekt

Bausubstanz und Energie

Möchtest du Details zum Energieverbrauch?info_energy_calculation-icon
Immowelt logo

Mietkosten

Gesamtmiete
2.719,96 €
Nettokaltmiete zzgl. Betriebskosten
11,50 €/m²
2.014 €
Provision für Mieter
Bitte beachte, das Angebot kann bei Vertragsabschluss die Zahlung einer Provision beinhalten. Weitere Informationen erhältst Du vom Anbieter.
Kaution
keine Angabe

Lage

address-icon
Wien (1100)
Der Anbieter hat die genaue Adresse nicht freigegeben
Die zentrale Lage garantiert rasche Erreichbarkeit - sowohl über den Individualverkehr, als auch über den ÖPNV. Die Einfahrt der hauseigenen Garage befindet sich auf der Laxenburger Straße, darüber hinaus stehen am nahegelegenen Hauptbahnhof weitere Stellplätze zur separaten Anmietung zur Verfügung.

Direkt an der Fußgängerzone Favoritenstraße sowie dem Columbus Center gelegen, bietet der Standort ausgezeichnete Nahversorgung. Sämtliche Geschäfte des täglichen Bedarfs, Apotheken und Arztpraxen sowie eine lebendige Gastronomieszene befinden sich in unmittelbarer Umgebung.

Weitere Informationen

Sonstiges Hinweis gemäß Energieausweisvorlagegesetz: Ein Energieausweis wurde vom Eigentümer bzw. Verkäufer, nach unserer Aufklärung über die ab 1.12.2012 geltende generelle Vorlagepflicht, sowie Aufforderung zu seiner Erstellung noch nicht vorgelegt. Daher gilt zumindest eine dem Alter und der Art des Gebäudes entsprechende Gesamtenergieeffizienz als vereinbart. Wir übernehmen keinerlei Gewähr oder Haftung für die tatsächliche Energieeffizienz der angebotenen Immobilie.

Wir weisen darauf hin, dass zwischen dem Vermittler und dem Auftraggeber ein wirtschaftliches Naheverhältnis besteht. Der Vermittler ist als Doppelmakler tätig. Stichworte Duplex-Stellplatz vorhanden, Nutzfläche: 211,97 m², Bundesland: Wien Sonstiges: EDV-Verkabelung, Kabelkanäle

Weitere Services

Lust auf eine Besichtigung?
Eine Frage zur Immobilie?
Nachricht hinzufügen
Mit der Nutzung der oben angegebenen Telefonnummer oder durch Klicken auf „Kontaktieren“ akzeptierst Du die Allgemeinen Nutzungsbedingungen, denen Du jederzeit widersprechen kannst. Weitere Informationen zum Datenschutz

Über den Anbieter

Prinz-Eugen-Strasse 8-10, 1040 WIEN
partner badge
Partnerschaft
Herr Raphael Tillmann
Herr Raphael TillmannDein Kontakt
Online-ID: 265D3HIHU7YY
Referenznummer: 35429/1
EHL Gewerbeimmobilien GmbH
title
EHL Gewerbeimmobilien GmbH
Nachricht hinzufügen
Mit der Nutzung der oben angegebenen Telefonnummer oder durch Klicken auf „Kontaktieren“ akzeptierst Du die Allgemeinen Nutzungsbedingungen, denen Du jederzeit widersprechen kannst. Weitere Informationen zum Datenschutz
Wie zufrieden bist du mit dieser Seite (nicht mit der Immobilie selbst)?