

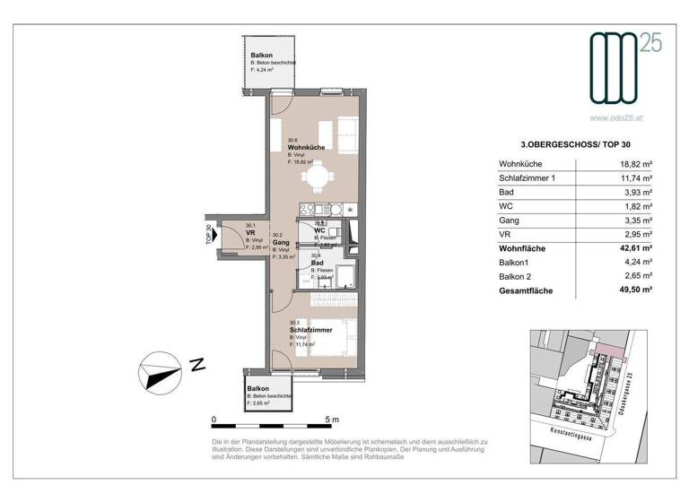
Wohnung zur Miete - Erstbezug783 €2 Zimmer • 42,6 m² • 3. Geschoss • frei ab 01.07.2026
783 €
2 Zimmer • 42,6 m² • 3. Geschoss • frei ab 01.07.2026
ODO25 | 2 Zimmer | Balkon | Mietbeginn ab 01.07.2026
Merkmale
- frei ab 01.07.2026
- 3. Geschoss
- Einbauküche
- Personenaufzug
- 19 Stellplätze: 19 Tiefgaragenstellplätze
- Balkon
- Bad mit Dusche
- voll klimatisiert
Grundrisse
Grundrisse
1 / 1
Virtueller Rundgang
Realisiere Dein Projekt
Bausubstanz und Energie
Heizwärmebedarf (HWB)
B
Gesamtenergieeffizienz (fGEE)
A+
- Baujahr2026
- Zustand der ImmobilieErstbezug
- EnergieträgerErdwärme
Mietkosten
Gesamtmiete
960,01 €
Nettokaltmiete
20,22 €/m²
783,25 €
Betriebskosten
89,48 €
Umsatzsteuer
87,28 €
Nicht in Gesamtmiete enthalten
Miete pro Stellplatz
110 €
Kaution
2881 €
Weitere Preisinformationen
19 Tiefgaragenstellplätze, Miete je: 110,00 EUR
Nettokaltmiete: 783,25 EUR
Nettokaltmiete: 783,25 EUR
Lage

Odoakergasse 25, Wien (1160)
Weitere Informationen
Weitere Services
Lust auf eine Besichtigung?
Eine Frage zur Immobilie?
Über den Anbieter
OPTIN Immobilien GmbHMaklerbüro
Goldschmiedgasse 2, 1010 Wien
6 Jahre Partnerschaft
Firma Team odo25Dein Kontakt
Online-ID: 2nyn454
Referenznummer: 2025-25-30
OPTIN Immobilien GmbH
Bewertung: 3,8 von 5 Sternen
Wie zufrieden bist du mit dieser Seite (nicht mit der Immobilie selbst)?

