Version: 8.22.4Navigation überspringen
R. Götze GmbH RE/MAX Immowest
Preis auf Anfrage
164 m² Bürofläche

Praxis zum Kauf
164 m² Bürofläche

Ihre neue Praxis im Herzen von Bregenz - beste Lage, sofort nutzbar

+ Gute Erreichbarkeit für Patienten - kurze Wege, öffentliche Verkehrsmittel
+ Apotheken, Fachärzte und Krankenhaus in der Nähe
+ Vorhandene Untersuchungsgeräte ermöglichen sofortigen Praxisbetrieb (Preis auf Anfrage)
+ Zentrale Praxisfläche bietet eine stabile Basis für Ihren Geschäftserfolg
+ Restaurants, Cafés, Einkaufsmöglichkeiten und Dienstleister fußläufig erreichbar
+ Energieausweis in Arbeit


Zum Verkauf steht eine funktionale Praxisfläche in zentraler Lage von Bregenz. Das Gebäude wurde 1955 errichtet und überzeugt durch seine solide Bauweise und starker Frequenz.

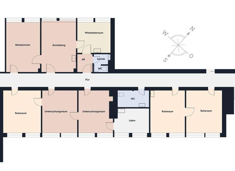
Die Immobilie bietet mit einer Nutzfläche von ca. 156 m² ausreichend Platz für eine Arztpraxis, Ärztehaus oder therapeutische Einrichtungen. Die Raumaufteilung ermöglicht eine flexible Gestaltung - ideal für Wartebereiche, Behandlungsräume und Büroräumlichkeiten.

Alle vorhandenen Untersuchungsgeräte können übernommen werden, was einen sofortigen und reibungslosen Start der Praxis ermöglicht.

Die zentrale Lage sorgt für eine sehr gute Erreichbarkeit sowohl mit öffentlichen Verkehrsmitteln als auch mit dem Auto. Parkmöglichkeiten sowie Einkaufsmöglichkeiten und weitere Einrichtungen des täglichen Bedarfs sind in unmittelbarer Nähe vorhanden.
Eine direkte Zufahrt für Einsatzfahrzeuge ist ebenfalls gegeben. Durch die zwei vorhanden Personenaufzüge im Gebäude ist ein erleichteter Zugang möglich.

Diese Liegenschaft bietet eine solide Basis für Ärztinnen und Ärzte, die eine eigene Praxis in Bregenz eröffnen oder bestehende Räumlichkeiten erweitern möchten.

Merkmale

  • 2. Geschoss
  • Personenaufzug

Grundrisse

Grundrisse
1 / 1

Realisiere Dein Projekt

Bausubstanz und Energie

Der Anbieter hat keine Informationen zum Energieverbrauch bereit gestellt.
  • Baujahr1955
  • EnergieträgerÖl

Preisdetails

Provision für Käufer
3% zzgl. MwSt.
Weitere Preisinformationen

Auf Anfrage

Lage

address-icon
Jahnstraße 20Bregenz (6900)

Weitere Informationen

Sonstiges - 3,5% Grunderwerbsteuer
- 1,1% Grundbuchseintragung
- 3,0% Vermittlungsprovision zzgl. 20% MwSt.
- Vertragserrichtungskosten
- Beglaubigungskosten + Barauslagen Stichworte Nutzfläche: 164,00 m², Bundesland: Vorarlberg

Weitere Services

Lust auf eine Besichtigung?
Eine Frage zur Immobilie?
Nachricht hinzufügen
Mit der Nutzung der oben angegebenen Telefonnummer oder durch Klicken auf „Kontaktieren“ akzeptierst Du die Allgemeinen Nutzungsbedingungen, denen Du jederzeit widersprechen kannst. Weitere Informationen zum Datenschutz

Über den Anbieter

Bundesstraße 87, 6923 Lauterach
partner badge
10 Jahre Partnerschaft
Herr Julian HefelDein Kontakt
Online-ID: 2mdyb53
Referenznummer: 6236
R. Götze GmbH RE/MAX Immowest
R. Götze GmbH RE/MAX Immowest
Bewertung: 4,3 von 5 Sternen
Nachricht hinzufügen
Mit der Nutzung der oben angegebenen Telefonnummer oder durch Klicken auf „Kontaktieren“ akzeptierst Du die Allgemeinen Nutzungsbedingungen, denen Du jederzeit widersprechen kannst. Weitere Informationen zum Datenschutz
Wie zufrieden bist du mit dieser Seite (nicht mit der Immobilie selbst)?