

Bürofläche zur Miete3950 €Nettomiete zzgl. NK13 Zimmer • 370 m² Bürofläche
3950 €
Nettomiete zzgl. NK
13 Zimmer • 370 m² Bürofläche
Klimatisiertes 370 m² Büro auf einer Ebene am Linzer Winterhafen!
Merkmale
- Bezug: sofort
- TeekĂĽche
- Personenaufzug
- Terrasse
- Raumaufteilung flexibel
- voll klimatisiert
- Bodenbelag: Parkett, Teppich
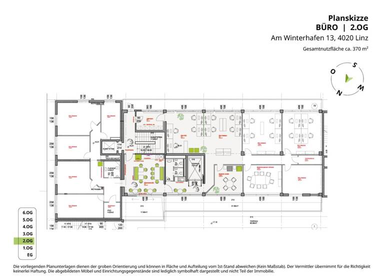
Grundrisse
Grundrisse
1 / 1
Realisiere Dein Projekt
Bausubstanz und Energie
Heizwärmebedarf (HWB)
B
Gesamtenergieeffizienz (fGEE)
- Baujahrca. 1991
- Zustand der ImmobilieGepflegt
- HeizungsartZentralheizung
- EnergieträgerFernwärme
Mietkosten
Gesamtmiete
5.619,36 €
Nettokaltmiete
3.950 €
Betriebskosten
1.160,66 €
Provision fĂĽr Mieter
Bitte beachte, das Angebot kann bei Vertragsabschluss die Zahlung einer Provision beinhalten. Weitere Informationen erhältst Du vom Anbieter.
Kaution
20000 €
Weitere Preisinformationen
Nettokaltmiete: 3.950,00 EUR
Lage

Am Winterhafen 13, Lustenau, Linz (4020)
Weitere Informationen
Weitere Services
Lust auf eine Besichtigung?
Eine Frage zur Immobilie?
Ăśber den Anbieter
Projektas - Feistritzer Hinz GmbH & Co OGMaklerbĂĽro
Promenade 9, 4020 LINZ
10 Jahre Partnerschaft

Herr Claudio FeistritzerDein Kontakt
Weitere Unterlagen
Online-ID: 2l8ba5f
Referenznummer: 2713/8184


Projektas - Feistritzer Hinz GmbH & Co OG
Bewertung: 4,8 von 5 Sternen
Wie zufrieden bist du mit dieser Seite (nicht mit der Immobilie selbst)?

