Version: 8.24.0Navigation überspringen
349.000 €
4 Zimmer  •  105 m²
Immowelt logo

Wohnung zum Kauf
349000 €
3.324 €/m²
4 Zimmer  •  105 m²

Uns gibt es im Doppelpack! Tolle Wohnung mit zusätzlicher Gewerbeeinheit!

Wohnen und Arbeiten unter einem Dach - mit klarer Trennung und direkter Verbindung
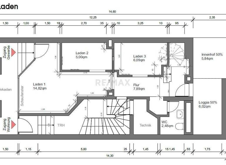
Die Einheit bietet im Obergeschoss ca. 57?m² Wohnfläche, die durch eine interne Wendeltreppe mit der ca. 48?m² großen Gewerbefläche im Erdgeschoss verbunden ist.
Ideal für Freiberufler, Selbstständige oder Kleinunternehmer, die Wohnen und Arbeiten kombinieren möchten - funktional, kompakt und dennoch räumlich klar getrennt.

Inmitten der Esslinger Altstadt, eine super 2-Zimmer-Wohnung mit Balkon und einer kleinen Gewerbeeinheit darunter aus dem Jahr 1915. Eingebettet in ein gepflegtes Mehrfamilienhaus, eine besondere Gelegenheit unter einem Dach.

Die Wohnung im Obergeschoss punktet mit klarer Raumaufteilung, einem gemütlichen Balkon und einer modernen Einbauküche ideal für Eigennutzer oder zur Vermietung. (aktuell Vermietet) Die Gewerbeeinheit im Erdgeschoss ergänzt das Angebot perfekt ob als kleines Büro, Laden oder Atelier: Die Nutzungsmöglichkeiten sind vielfältig. Beide Einheiten sind nachträglich baulich getrennt worden können jedoch mit geringem aufwand wieder zusammengelegt werden, somit bietet das Objekt maximale Flexibilität.

Sie möchten wohnen, arbeiten oder klug investieren? Dieses Objekt bietet Ihnen die passende Lösung. Jetzt Exposé anfordern und mehr erfahren!

Energieausweis nicht notwendig!

Ein ausführliches Exposé erhalten Sie nach vollständiger Anfrage!

Merkmale

  • Einbauküche
  • Kelleranteil
  • Gäste-WC
  • Balkon
  • Terrasse
- Fenster 2011
- Dach gedämmt
- Gewerbeeinheit mit großem Keller
- Bad in der Wohnung, Boden, Duschwanne und die Leitungen unter dem Putz, 2010 neu renoviert
- Marmorboden im Wohnzimmer der Wohnung

Grundrisse

Grundrisse
1 / 2

Realisiere Dein Projekt

Bausubstanz und Energie

Energieausweis

H
  • Baujahr1915
  • Zustand der ImmobilieGepflegt
  • EnergieträgerGas
Immowelt logo

Preisdetails

Kaufpreis
349000 €
3.323,81 €/m²
Provision für Käufer
4,76 % inkl. MwSt.
Weitere Preisinformationen

349.000 EUR
Geschätzte Gesamtkosten
385.889 €1
Kaufpreis
349.000 €
Notarkosten (1,5%)
5.235 €
Grunderwerbsteuer (5%)
17.450 €
Provision für Käufer (3,57%)
12.459 €
Grundbucheintrag (0,5%)
1.745 €
1Der angezeigte Wert ist eine automatisch berechnete Schätzung von immowelt.
2Bei den Angaben handelt es sich um ortsübliche Werte. Individuelle Kosten können abweichen.

Lage

address-icon
StadtmitteEsslingen am Neckar (73728)
Der Anbieter hat die genaue Adresse nicht freigegeben
Die Immobilie befindet sich in absolut zentraler Innenstadtlage von Esslingen am Neckar direkt am Roßmarkt, einem historischen Platz mit urbanem Flair. Die Lage überzeugt durch ihre ausgezeichnete Infrastruktur, kurze Wege und ein hohes Maß an Lebensqualität.

Sämtliche Einrichtungen des täglichen Bedarfs wie Supermärkte, Bäckereien, Apotheken, Cafés und Restaurants befinden sich in unmittelbarer Umgebung und sind bequem zu Fuß erreichbar. Der nahegelegene Wochenmarkt auf dem Marktplatz bietet zusätzlich eine große Auswahl an frischen, regionalen Produkten.

Für Familien besonders attraktiv: Der nächste Kindergarten ist nur etwa 450?Meter entfernt, die Grundschule rund 600?Meter. Weiterführende Schulen wie das Schelztor-Gymnasium sind ebenfalls in weniger als 15 Gehminuten erreichbar. Auch die Hochschule Esslingen (Campus Stadtmitte) liegt in unmittelbarer Nähe - ideal für Studierende oder Mitarbeitende im Bildungsbereich.

Der Bahnhof Esslingen ist in wenigen Minuten fußläufig erreichbar und ermöglicht eine schnelle Anbindung nach Stuttgart und in die umliegenden Städte. Durch die Nähe zur B10 sowie zur B313 ist auch die Verkehrsanbindung mit dem Auto hervorragend.

Der Standort bietet die perfekte Kombination aus urbanem Leben, hervorragender Infrastruktur und kurzen Wegen - und das mitten in einer der schönsten Altstädte Baden-Württembergs.

Weitere Informationen

Sonstiges Folgende Kosten sind im Kaufpreis nicht enthalten und vom Käufer zusätzlich zu entrichten: Notar- und Grundbuchkosten (ca. 2 %), Grunderwerbsteuer (5 %), und die mit der Finanzierung entstehenden Kosten. 4,76 % Maklerprovision inkl. gesetzlicher MwSt.. Ab dem Zeitpunkt der Übergabe hat der Käufer die Grundsteuer zu tragen.
Irrtümer vorbehalten. Die Objektdaten beruhen auf Angaben und Unterlagen, die uns vom Veräußerer zur Verfügung gestellt wurden. Für inhaltliche Richtigkeit und Vollständigkeit übernehmen wir keine Haftung. Eine Weitergabe an Dritte ist nicht gestattet.

---
Verpassen Sie keine Immobilie mehr!
Unser komplettes Immobilienangebot finden Sie immer zuerst auf www.remax.de
Gerne helfen wir Ihnen auch beim Verkauf oder der Vermietung Ihrer Immobilie.
Karriere bei REMAX?
Infos: www.remax.de/karriere Stichworte Nutzfläche: 7,00 m², Grundstücksfläche: 93,00 m², Anzahl der Schlafzimmer: 1, Anzahl der Badezimmer: 1, Anzahl Balkone: 1, Anzahl Terrassen: 1, Balkon-Terrassen-Fläche: 5,00 m², Bundesland: Baden-Württemberg, 1 Etagen, Distanz zum Kindergarten: 0.40, Distanz zur Grundschule: 0.60, Distanz zur Realschule: 1.20, Distanz zum Gymnasium: 1.20

Weitere Services

Lust auf eine Besichtigung?
Eine Frage zur Immobilie?
Nachricht hinzufügen
Mit der Nutzung der oben angegebenen Telefonnummer oder durch Klicken auf „Kontaktieren“ akzeptierst Du die Allgemeinen Nutzungsbedingungen, denen Du jederzeit widersprechen kannst. Weitere Informationen zum Datenschutz

Über den Anbieter

Stuttgarter Str. 27, 73054 Eislingen
partner badge
10 Jahre Partnerschaft
Herr Timo Seidel
Herr Timo SeidelDein Kontakt
Online-ID: 2mf255h
Referenznummer: 1148-1097-TS
RE/MAX Wohnerlebnis Eislingen
title
RE/MAX Wohnerlebnis Eislingen
Bewertung: 4,7 von 5 Sternen
Nachricht hinzufügen
Mit der Nutzung der oben angegebenen Telefonnummer oder durch Klicken auf „Kontaktieren“ akzeptierst Du die Allgemeinen Nutzungsbedingungen, denen Du jederzeit widersprechen kannst. Weitere Informationen zum Datenschutz
Wie zufrieden bist du mit dieser Seite (nicht mit der Immobilie selbst)?