

Penthouse zum Kauf • provisionsfrei352000 €6.050 €/m²2 Zimmer • 58,2 m² • 3. Geschoss
352000 €
6.050 €/m²
2 Zimmer • 58,2 m² • 3. Geschoss
Neubau! 2-Zimmer-Penthouse mit Dachterrasse und TG
Merkmale
- Bezug: 2026
- 3. Geschoss
- Personenaufzug
- Stellplatz
- Garten
- Terrasse
- Bergblick, Fernblick
- Badewanne
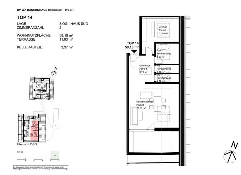
Grundrisse
Grundrisse
1 / 1
Realisiere Dein Projekt
Bausubstanz und Energie
Der Anbieter hat keine Informationen zum Energieverbrauch bereit gestellt.
- Baujahr2026
- Zustand der ImmobilieNeubau
- HeizungsartFuĂźbodenheizung
- EnergieträgerLuft-/Wasser-Wärmepumpe
Preisdetails
Kaufpreis
352000 €
6.050,19 €/m²
Preis pro Stellplatz
28000 €
Provision für Käufer
provisionsfrei
Lage

Weer (6116)
Der Anbieter hat die genaue Adresse nicht freigegeben
Weitere Informationen
Weitere Services
Lust auf eine Besichtigung?
Eine Frage zur Immobilie?
Ăśber den Anbieter
Al Alpenraum Immobilien GmbHMaklerbĂĽro
Weingarten 16, 6122 FRITZENS

Herr Dipl. Ing. (FH) Alexander SchärmerDein Kontakt
Online-ID: 2mdcs5h
Referenznummer: W_T14


Al Alpenraum Immobilien GmbH
Wie zufrieden bist du mit dieser Seite (nicht mit der Immobilie selbst)?

