Version: 8.26.0Navigation überspringen
Garant Immobilien GmbH Büro Bad Reichenhall
298.000 €
1.363 m² Grundstück

Land-/Forstwirtschaft zum Kauf
298000 €
1.363 m² Grundstück

Vielfältig nutzbare Gewerbeeinheit, auch für Wohnzwecke

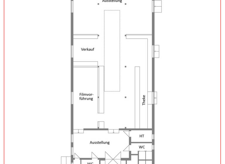
Angeboten wird hier eine ca. 430 qm große Gewerbehalle/Verkaufsfläche, die ursprünglich als Verkaufsfläche diente. Das Gewerbeobjekt steht in einem Mischgebiet in zentraler Lage von Spiegelau. Das Gebäude kann vielfältig genutzt werden. Hier kann sich neues Gewerbe ansiedeln, aber auch Wohnraum geschaffen werden.

Das Gebäude verfügt über neuwertige Kundentoiletten sowie über abgeteilte Büroflächen. Der größte Teil der Nutzfläche ist nicht unterteilt und bietet somit die Möglichkeit der individuellen Gestaltung. Geheizt wird mit einer Gasheizung.

Im Erdgeschoss bietet das Gebäude auf insgesamt ca. 260 qm mehrere Nebenräume und eine große Ladenfläche.
Eine aus einer Holzkonstruktion gebaute Galerie (im ursprünglichen Bauplan wurde hier eine ca. 60 qm große Wohnung vorgesehen), bildet eine zweite Ebene, die ebenfalls vielseitig genutzt aber auch entfernt werden kann.

Mögliche Nutzungsmöglichkeiten wären denkbar:
- Getränkemarkt
- Galerie/Ausstellungsfläche
- Wohneinheiten
- Einzelhandel
- Handwerksbetrieb
und vieles mehr!

Parkplätze befinden sich auf jeder Seite des Objekts.



Weitere Angebote unter www.GARANT-IMMO.de

Merkmale

  • Bezug: sofort
  • 1.363 m² Grundstück
  • Bodenbelag: Fliesen
- große Verkaufsfläche
- Nebenräume
- sanitäre Anlagen
- Parkplätze
- Gasheizung


Grundrisse

Grundrisse
1 / 2

Bausubstanz und Energie

  • Baujahr1960
  • Zustand der ImmobilieGepflegt
MediumRectangleTop

Preisdetails

Kaufpreis
298000 €
Provision für Käufer
3,57 % (inkl. MwSt.) inkl. MwSt.
Die Maklercourtage für den Käufer beträgt 3 % aus dem Kaufpreis zuzüglich der gesetzlichen MwSt., somit gesamt 3,57 %.
Geschätzte Gesamtkosten
308.639 €1
Kaufpreis
298.000 €
Provision für Käufer (3,57%)
10.639 €
1Der angezeigte Wert ist eine automatisch berechnete Schätzung von immowelt.
2Bei den Angaben handelt es sich um ortsübliche Werte. Individuelle Kosten können abweichen.

Lage

address-icon
PronfeldenSpiegelau (94518)
Der Anbieter hat die genaue Adresse nicht freigegeben
Die Gewerbeeinheit befindet sich auf einer gut frequentierten Straße, die Frauenau mit Grafenau verbindet. Spiegelau gehört zum Landkreis Freyung-Grafenau und ist ein anerkannter Erholungsort. Dort befindet sich die berühmte Glasstraße die von Neustadt an der Waldnaab über Spiegelau bis nach Passau führt.

Weitere Informationen

Stichworte Gesamtfläche: 430,00 m², 2 Etagen

Weitere Services

Lust auf eine Besichtigung?
Eine Frage zur Immobilie?
Nachricht hinzufügen
Mit der Nutzung der oben angegebenen Telefonnummer oder durch Klicken auf „Kontaktieren“ akzeptierst Du die Allgemeinen Nutzungsbedingungen, denen Du jederzeit widersprechen kannst. Weitere Informationen zum Datenschutz

Über den Anbieter

Kaiserplatz 1, 83435 Bad Reichenhall
Frau Susanne Heber
Frau Susanne HeberDein Kontakt
Online-ID: 25HKMNBWLIHP
Referenznummer: 622.009
MediumRectangleTop
Wie zufrieden bist du mit dieser Seite (nicht mit der Immobilie selbst)?