Version: 8.25.1Navigation überspringen
ohne-makler.net - Immobilien selbst vermarkten
1.815 €
5 Zimmer  •  165,3 m²  •  2. Geschoss

Wohnung zur Miete
1.815 €
5 Zimmer  •  165,3 m²  •  2. Geschoss

Großzügige 5-Zimmer Wohnung incl. kompl. neuer Einbauküche

äußerst großzügige Altbauwohnung (Erstbezug nach Sanierung ab sofort) in Uffenheim, auf Wunsch mit eigenem PKW-Stellplatz auf dem Gelände

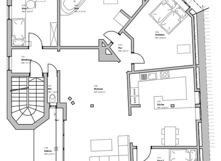
Die Wohnung befindet sich im Dachgeschoss (2. OG) eines historischen zentralen Mehrfamilienhauses.
Die Räume, offener und durch großzügige Fenstergestaltung lichtdurchfluteter Wohnbereich für Küche (voll ausgestattete Einbauküche mit Herd, Backofen, Cerankochfeld, Dunstabzug, Spülmaschine und Side-by-Side Kühlschrank)/Essen/Wohnen, 3 Schlafzimmer, 1 Büro/Kinderzimmer, Bad mit Dusche und Badewanne, ein zusätzliches WC und ein geräumiger Dachboden als Abstellmöglichkeit.
Zur Wohnung gehört ein großer Balkon mit Zugang über das geräumige Wohnzimmer. Ein Stellplatz kann dazu gemietet werden.
Das geräumige Bad und auch die komplette voll ausgestattete Küche wurden neu saniert.
Die Wohnung ist mit einer Fußbodenheizung ausgestattet.
Die Heiz- und Betriebskosten (Nebenkosten) haben wir im ersten Jahr auf 450 € pro Monat geschätzt, diese sind jedoch erfahrungsgemäß stark vom Verbrauchsverhalten und der Anzahl der Mieter abhängig. Sie werden jährlich abgerechnet und in der Höhe dem tatsächlichen Verbrauch angepasst.
Die Kaution beträgt die dreifache Kaltmiete.
Insgesamt stehen den zukünftigen Mietern hier nahezu 200 m² tatsächliche Gesamtfläche (incl. Balkon und Dachboden) zur Verfügung.

Merkmale

  • Bezug: sofort
  • Dachgeschoss, 2. Geschoss
  • Einbauküche
  • Badezimmer: Badewanne, Bad mit Dusche
  • Bodenbelag: Fliesen, Laminat
  • Balkon
  • Außen-Stellplatz
Balkon, Dachterrasse, Vollbad, Duschbad, Einbauküche, Gäste-WC, Laminat, Fliesen

Bemerkungen:
Die komplette Wohnung ist bereits vollständig mit LED Beleuchtung, Raumthermometern und Hygrometern ausgestattet - auch eine Video-Türklingel fehlt nicht.

Grundrisse

Grundrisse
1 / 2

Realisiere Dein Projekt

Bausubstanz und Energie

Energieausweis

Ein Energieausweis ist für diesen Gebäudetyp nicht notwendig.
  • Baujahr1890
  • Zustand der Immobilierenoviert / saniert
  • HeizungsartFußbodenheizung
  • EnergieträgerGas
MediumRectangleTop

Mietkosten

Warmmiete
2.265 €
Kaltmiete
10,98 €/m²
1.815 €
Nebenkosten
200 €
Zusätzliche Kosten
Heizkosten
250 €
Miete pro Stellplatz
30 €
Kaution
5445 €
Weitere Preisinformationen
1 Stellplatz, Miete: 30,00 EUR
Nettokaltmiete: 1.815,00 EUR

Lage

address-icon
Uffenheim (97215)
Der Anbieter hat die genaue Adresse nicht freigegeben
Das Gebäude liegt zentral in der Stadtmitte. Einkaufsmärkte, Innenstadt, Kindergarten, Arztpraxen und auch das örtliche Krankenhaus sowie Behörden sind zu Fuß erreichbar. Schulen, Bahnhof, und Autobahnanschlüsse fehlen in Uffenheim ebenfalls nicht.
Infrastruktur (im Umkreis von 5 km):
Apotheke, Lebensmittel-Discount, Allgemeinmediziner, Kindergarten, Grundschule, Hauptschule, Realschule, Gymnasium, Gesamtschule, Öffentliche Verkehrsmittel

Weitere Informationen

Sonstiges Heizungsart: Fußbodenheizung
Energieträger: Gas

Fotos können den Charakter einer Wohnung nie erfassen. Lassen Sie sich deshalb durch eine Besichtigung überzeugen! Nehmen Sie dafür via e-Mail-Bewerbung Kontakt zu uns auf.
Stellen Sie sich darin kurz vor und geben Sie unbedingt an:
- Vorname Name
- derzeitiger Wohnort
- Beruf(e) der erwachsenen Mieter und Mieterinnen
- Anzahl und Alter der einziehenden Personen
- mögliche Besichtigungstermine
- Mieterselbstauskunft
- Vorvermieterzeugnisse sind nicht von Nachteil, jedoch keine Bedingung
Prüfen Sie bitte vor dem Absenden Ihrer Bewerbung, ob die Kriterien der Vermietung für Sie passen. Sie sind nicht verhandelbar.

Energieausweis ist für dieses Gebäude aufgrund des Baujahres nicht anwendbar.

Anfragen mit unvollständigen Angaben oder Vermittlungsangebote von Maklern und Weitervermietern beantworten wir nicht.
Hinweis: Das Jobcenter des Landkreises NEA übernimmt die Kosten für Unterkunft und Heizung gemäß § 22 SGB II für diese Wohnung erwartungsgemäß **NICHT**! Wir bitten auch von Rückfragen diesbezüglich abzusehen - es wird **NICHT** übernommen.

Makleranfragen nicht erwünscht. Nach § 7 UWG sind unaufgeforderte Kontaktaufnahmen durch Makler ohne ausdrückliche Einwilligung des Empfängers verboten!

ohne-makler (OM) ist weder Anbieter noch Vermittler der Immobilie. OM betreibt eine Plattform für Immobilieneigentümer, die unter anderem die gleichzeitige Veröffentlichung einzelner Inserate auf mehreren Immobilienportalen ermöglicht. Die Inhalte dieser Inserate werden ausschließlich von Dritten verantwortet. Für die Richtigkeit, Vollständigkeit oder Rechtmäßigkeit der Angaben übernimmt OM keine Haftung. Hinweise auf mögliche Rechtsverstöße können jederzeit gemeldet werden und werden nach Prüfung umgehend bearbeitet. Stichworte Stellplatz vorhanden, Nutzfläche: 28,85 m², Anzahl der Schlafzimmer: 3, Anzahl der Badezimmer: 1, Anzahl der separaten WCs: 1, Anzahl Balkone: 2, Bundesland: Bayern, 2 Etagen

Weitere Services

Lust auf eine Besichtigung?
Eine Frage zur Immobilie?
Mit einer persönlichen Nachricht hast du bessere Chancen auf eine Antwort.
Mit der Nutzung der oben angegebenen Telefonnummer oder durch Klicken auf „Kontaktieren“ akzeptierst Du die Allgemeinen Nutzungsbedingungen, denen Du jederzeit widersprechen kannst. Weitere Informationen zum Datenschutz

Über den Anbieter

Humboldtstr. 25 A, 21509 Glinde
partner badge
Partnerschaft
Privat von Rouven Andreas CserDein Kontakt
Keine Telefonnummer hinterlegt
Keine Telefonnummer hinterlegt
Online-ID: 26FUCGKWVQ3U
Referenznummer: 439367
ohne-makler.net - Immobilien selbst vermarkten
ohne-makler.net - Immobilien selbst vermarkten
Mit einer persönlichen Nachricht hast du bessere Chancen auf eine Antwort.
Mit der Nutzung der oben angegebenen Telefonnummer oder durch Klicken auf „Kontaktieren“ akzeptierst Du die Allgemeinen Nutzungsbedingungen, denen Du jederzeit widersprechen kannst. Weitere Informationen zum Datenschutz
MediumRectangleTop
MediumRectangleBottom
MediumRectangleTop
Wie zufrieden bist du mit dieser Seite (nicht mit der Immobilie selbst)?