HOM12 - Kernsanierte Büroflächen I Erstbezug ab 250 m²
HOM12 bietet zahlreiche Besonderheiten, die es zu einer ausgezeichneten Wahl machen. Moderne Räumlichkeiten verfügen über großzügige Fensterflächen, die eine optimale Belichtung durch natürliches Tageslicht gewährleisten. Diese Fenster schaffen eine einladende, helle Arbeitsatmosphäre und bieten gleichzeitig einen Ausblick auf den umliegenden Garten.
Der Garten erstreckt sich über eine Fläche von 700 m² und steht allen Nutzern zur gemeinsamen Nutzung zur Verfügung. Zusätzlich haben sechs von zehn Mietbereichen direkten Zugang zu Freiflächen wie Loggien, Dachterrassen oder dem Garten. Diese Bereiche bieten die Möglichkeit für Pausen oder auch das Arbeiten im Freien.
Merkmale
Bezug: kurzfristig
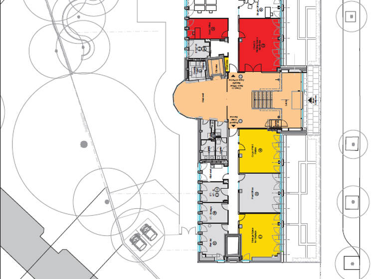
1. Geschoss
Barrierefrei
Personenaufzug
11 Stellplätze: 2 Außen-Stellplätze
Das Objekt verfügt über eine zeitgemäße und hochwertige Ausstattung, wie z.B. Pakettboden und Rasterdecke. Im gesamten Objekt wurden die Fenster, Türen, elektrisch außenliegende Sonnenschutzjalousien sowie die Sanitäranlagen komplett saniert bzw. erneuert. Ebenso wurde die Fassadenkonstruktion überarbeitet / renoviert.
Grundrisse
Grundrisse
1 / 4
Realisiere Dein Projekt
Bausubstanz und Energie
Möchtest du Details zum Energieverbrauch?
Baujahr1958
Zustand der ImmobilieMassivhaus, renoviert / saniert
HeizungsartZentralheizung
EnergieträgerGas
Mietkosten
Monatliche Miete
23,50 €/m²
Provision für Mieter
Provisionspflichtig für den Mieter ! zzgl. MwSt.
Kaution
keine Angabe
Weitere Preisinformationen
2 Stellplätze
Lage
Golzheim, Düsseldorf (40474)
Der Anbieter hat die genaue Adresse nicht freigegeben
Die Immobilie liegt an der reizvollen Rheinfront im begehrten Stadtteil Düsseldorf-Golzheim, in unmittelbarer Nähe zur Cecilienallee und dem renommierten Bürostandort Kennedydamm. Dieser Bezirk ist bekannt für seine Ansiedlung von Modeunternehmen sowie Beratungsfirmen und bietet eine florierende Geschäftsumgebung.
Weitere Informationen
Sonstiges
Durch den Rheinufertunnel gelangt man kurzfristig zum Düsseldorfer Medienhafen und zu den im Süden gelegenen Autobahnanschlüssen der A 46 Richtung Neuss / Wuppertal und A 59 Richtung Leverkusen / Köln. Den linksrheinischen Bereich und das Seestern-Gebiet erreicht man zügig über die nahegelegene Oberkasseler Brücke. Die schnelle Anbindung an den Flughafen Düsseldorfer International sowie das Messegelände und die damit verbundene Autobahnanbindung an die A 52 in Richtung Essen unterstreicht nochmals den absolut verkehrsgünstigen Standort.
Eine U-Bahnhaltestelle der Linien U78 und U79 befindet sich auf der nahegelegenen Kaiserswerther Straße. Die Bushaltestellen der Linien 729, 756 und 758 sind auf der nahgelegenen Theodor-Heuss-Brücke und ergänzen die gute sehr gute Verkehrsanbindung. In die City mit ihren Einkaufsbereichen Kö und Schadowstraße gelangt man sowohl mit PKW, als auch mit öffentlichen Verkehrsmitteln in weniger als 7 Minuten.
Stichworte
Gesamtfläche: 324,00 m², Sonstige Fläche: 49,00 m², Kellerfläche: 24,00 m², Bundesland: Nordrhein-Westfalen, 3 Etagen