

Specht Immobilien
Herr Matthias Specht
017 ···
Nr. anzeigenPreise & Kosten
Provision für Käufer
4,76%
Lage
Diese charmante Erdgeschosswohnung befindet sich in einer der gefragtesten Gegenden von Halle, im idyllischen Stadtteil Landrain. Die Lage bietet eine hervorragende Anbindung an die öffentlichen Verkehrsmittel, da Straßenbahn und Bus direkt vor der Haustür halten. Für den täglichen Bedarf sind Einkaufsmöglichkeiten bequem in...
Die Wohnung
Wohnungslage
Erdgeschoss
Derzeitige Nutzung
vermietet
Wohnanlage
Energie & Heizung
Warum sehe ich diese Anzeige? – Du siehst diese Anzeige basierend auf Ihrer Navigation auf unserer Website und den Suchkriterien, die du verwendet hast.
Energieausweistyp
Bedarfsausweis
Gebäudetyp
Wohngebäude
Baujahr laut Energieausweis
1963
Effizienzklasse
E
Endenergiebedarf
139,80 kWh/(m²·a)
Weitere Energiedaten
Energieträger
Gas
Heizungsart
Etagenheizung
Details
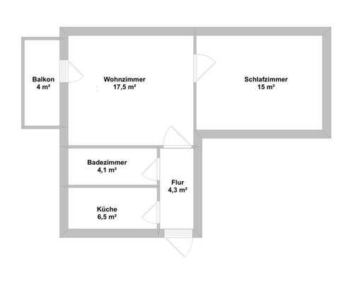
Objektbeschreibung
Willkommen zu einer attraktiven Investitionsgelegenheit in Halle! Diese gepflegte Wohnung im Hochparterre eines charmanten Mehrfamilienhauses aus dem Jahr 1963 bietet auf ca. 52 m² Wohnfläche eine solide Anlagemöglichkeit. Die Immobilie befindet sich in einem einladenden Zustand und wird kontinuierlich gepflegt.
Mit...
Ausstattung
- Gemütlicher Balkon für entspannte Stunden im Freien
- Praktischer Kellerraum für zusätzlichen Stauraum
- Moderne Etagenheizung mit effizienter Gasbefeuerung
- Stilvolle Parkettböden in Wohn- und Schlafzimmer
- Komfortables Badezimmer ausgestattet mit einer Badewanne
- Rollläden
- Gute Raumaufteilung
Weitere Informationen
Sonstiges
- Onlinebesichtigungen möglich
- alle Objektunterlagen vorhanden
- zeitgemäße Instandhaltungsrücklage
- langjähriges Mietverhältnis
- Mieterhöhung auf 360€ Kaltmiete p.M. sofort möglich
Stichworte
Anzahl der Schlafzimmer: 1, Anzahl der Badezimmer: 1, Anzahl Balkone: 1, 4 Etagen
Anbieter der Immobilie
Specht Immobilien
Merseburger Str. 137, 06112 Halle (Saale)

Online-ID: 2ncsn5c
Referenznummer: 26
Finde Angebote wie dieses
Hier geht es zu unserem Impressum, den Allgemeinen Geschäftsbedingungen, den Hinweisen zum Datenschutz und nutzungsbasierter Online-Werbung.