Version: 8.24.0Navigation überspringen
13,41 €
1.010,6 m² Bürofläche  •  teilbar ab 434,3 m²
Immowelt logo

Bürofläche zur Miete • provisionsfrei
13,41 €
/m²
1.010,6 m² Bürofläche  •  teilbar ab 434,3 m²

Historischer Altbau trifft auf moderne Architektur | Exklusiv über JLL

Die Liegenschaft besticht durch ihre Kombination aus einer Altbau- und Neubaustruktur - beide Komplexe sind über eine interne Schleuse miteinander verbunden und bieten hochwertige Büroflächen im charmanten Stil. Während sich der Altbau über mehrere Etagen erstreckt und über eine große Aufenthaltsfläche sowie Besprechungszonen verfügt, besticht der Neubau durch seine effiziente Flächenaufteilung und gehobene Ausstattungsqualität.

Merkmale

  • Bezug: Auf Anfrage
  • Teeküche
  • voll klimatisiert
- Klimatisierung: teilweise Klimasplitgeräte (Altbau), Kühldecken (Neubau)
- Verkabelung: Cat5 (Altbau), Cat6 (Neubau)
- hochwertig ausgestattete Küche
- Möbel können nach Absprache übernommen werden
- beide Gebäude sind über eine Schleuse miteinander verbunden, können aber auch als autarke Mieteinheit getrennt vermietet werden

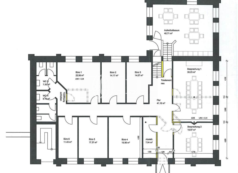
Grundrisse

Grundrisse
1 / 2

Realisiere Dein Projekt

Bausubstanz und Energie

Energieausweis

Endenergiebedarf (Strom)

  • Baujahr2019
  • EnergieträgerElektro
Immowelt logo

Mietkosten

Monatliche Miete
13,41 €/m²
Nebenkosten
3,78 €
Provision für Mieter
provisionsfrei; provisionsfrei für den Mieter/Käufer
Kaution
keine Angabe

Lage

address-icon
DülkenViersen (41751)
Der Anbieter hat die genaue Adresse nicht freigegeben
Das Objekt befindet sich in verkehrsgünstiger Lage mit ausgezeichneter Anbindung an die A 61 sowie die Ballungsräume Düsseldorf und Mönchengladbach. Umgeben von einigen Einzelhandels- und Gastronomieeinrichtungen bietet der Standort eine optimale Infrastruktur für den täglichen Geschäftsbetrieb. Die nahe gelegenen Grünflächen runden das Umfeld ab und sorgen für eine angenehme Arbeitsatmosphäre.

Weitere Informationen

Stichworte Gesamtfläche: 1.071,86 m² Sonstiges: EDV-Verkabelung

Weitere Services

Lust auf eine Besichtigung?
Eine Frage zur Immobilie?
Nachricht hinzufügen
Mit der Nutzung der oben angegebenen Telefonnummer oder durch Klicken auf „Kontaktieren“ akzeptierst Du die Allgemeinen Nutzungsbedingungen, denen Du jederzeit widersprechen kannst. Weitere Informationen zum Datenschutz

Über den Anbieter

Dreischeibenhaus 1, 40211 Düsseldorf
partner badge
Partnerschaft
Frau Anna-Louisa Kratochvil
Frau Anna-Louisa KratochvilDein Kontakt
Online-ID: 2krz55q
Referenznummer: 4@of89467@14@0
Jones Lang LaSalle SE - Office Leasing Düsseldorf
title
Jones Lang LaSalle SE - Office Leasing Düsseldorf
Nachricht hinzufügen
Mit der Nutzung der oben angegebenen Telefonnummer oder durch Klicken auf „Kontaktieren“ akzeptierst Du die Allgemeinen Nutzungsbedingungen, denen Du jederzeit widersprechen kannst. Weitere Informationen zum Datenschutz
Wie zufrieden bist du mit dieser Seite (nicht mit der Immobilie selbst)?