
STRECKER-OLENYI Industrie- & Gewerbeimmobilien
Herr Arno Strecker
072 ···
Nr. anzeigenPreise & Kosten
zzgl. Nebenkosten
Provision für Mieter
1,19 Monatsmieten
Warum sehe ich diese Anzeige? – Du siehst diese Anzeige basierend auf Ihrer Navigation auf unserer Website und den Suchkriterien, die du verwendet hast.
Lage
Die Immobilie befindet sich in unmittelbarer Nähe des Autobahnzubringers zur BAB5 Anschlussstelle KA-Süd (ca. 4 KM) und unweit der Südtangente (Bulacher Kreuz)
Die B36 ist ebenso schnell erreichbar, wie der Hauptbahnhof von Karlsruhe. (jew. ca. 5 Fahrminuten)
Büro-/Praxisfläche
Kategorie
Bürofläche
Baujahr
1968
Energie & Heizung
Warum sehe ich diese Anzeige? – Du siehst diese Anzeige basierend auf Ihrer Navigation auf unserer Website und den Suchkriterien, die du verwendet hast.
Wärme
Strom
Energieausweistyp
Verbrauchsausweis
Gebäudetyp
Nicht-Wohngebäude
Wesentliche Energieträger
Fernwärme
Gültigkeit
seit 20.10.2020
Endenergieverbrauch (Wärme)
129,10 kWh/(m²·a)
Endenergieverbrauch (Strom)
84,10 kWh/(m²·a)
Weitere Energiedaten
Energieträger
Fernwärme
Details
Objektbeschreibung
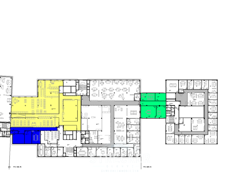
Büroeinheit (im Grundriss blau unterlegt) mit gesamt ca. 161,7 m² im I.OG eines gepflegten Geschäftshaus unweit zur Südtangente. Die Einheit verfügt über 3 Arbeitsräume und ein separates kleines Lager. Es verfügt über keine Teeküche, dafür kann aber die Hausinterne Betriebskantine optional genutzt werden. Eine barrierefreie...
Weitere Informationen
Sonstiges
Ein Energieausweis ist vorhanden.
Verbrauchsausweis
Erstelldatum: 20.10.2020
Gültig bis: 20.10.2030
Baujahr: 1968
Energieträger für Heizung und Warmwasser: Fernwärme
Endenergiebedarf Wärme: 129,1 kWh/(m²*a)
Endenergiebedarf Strom: 84,1 kWh/(m²*a)
Stichworte
Gesamtfläche: 161,70 m²
Anbieter der Immobilie
STRECKER-OLENYI Industrie- & Gewerbeimmobilien
An der Tagweide 2, 76139 Karlsruhe
Online-ID: 2db2y5t
Referenznummer: 2024012
Finde Angebote wie dieses
Hier geht es zu unserem Impressum, den Allgemeinen Geschäftsbedingungen, den Hinweisen zum Datenschutz und nutzungsbasierter Online-Werbung.