Version: 8.26.0Navigation überspringen
459.000 €
5 Zimmer  •  124 m²  •  EG
Immowelt logo

Wohnung zum Kauf • provisionsfrei
459000 €
3.700 €/m²
5 Zimmer  •  124 m²  •  EG

NEUER PREIS! - 5-Zimmer-Wohnung - Homeoffice/Büro/Ordination möglich - 2 Eingänge - im attraktiven Wildgarten-Viertel - Provisionsfrei

Der Wildgarten ist ein modernes, vielseitiges Wohnquartier, das sowohl urbane und ländliche Qualitäten verbindet und für ein gemeinschaftliches Miteinander steht.

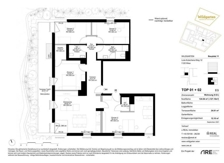
Hier befindet sich im Erdgeschoß diese ca. 124 m² große Wohnung, die über 2 Eingänge verfügt, und sich sehr gut für eine Kombination aus Wohnen und Arbeiten eignet. Eine ca. 24 m² große Terrasse lädt zum Entspannen ein.

Die Wohnung wird als Edelrohbau, wie Sie es auf den Fotos sehen, verkauft. Sie können daher die Fläche noch nach Ihren Wünschen und auf Ihre Kosten gestalten.

Auf dem Plan sehen Sie, wie die Unterteilung für eine 5-Zimmer-Wohnung aussehen könnte.

Die Sanitärbereiche sind zwar fertig und bestehen aus Bad mit Dusche und WC, und zwei weiteren WCs. Eventuell müssen Sie sie nach Ihren Wünschen noch adaptieren.

Die Anschlüsse für eine Air Condition sind vorhanden.

Was macht das attraktive Wohnen im Wildgarten aus?
Das autofreie Quartier verfügt über eine sehr vielseitige Bebauung sowie zahlreichen Grünflächen, Ruhe- und Begegnungszonen, Gemeinschaftsgärten mit Hochbeeten und Naschhecken und einem offenen Freiraumkonzept. Das Nachbarschaftszentrum bietet zusätzliche Indoor-Räumlichkeiten wie Büros, Veranstaltungsräume und einer Werkstatt. Zusätzlich gibt es im Wildgarten einen Co-Working Space, wo flexibel oder auch dauerhaft Arbeitsplätze gemietet werden können.

Das Infrastrukturangebot bietet derzeit einen Billa direkt im Wohnqaurtier sowie eine Pizzeria. Für alle jene, die ein Auto besitzen, können Tiefgaragenplätze in der Sammelgarage gemietet werden. Außenliegende Parkplätze stehen entlang des Quartiers zur Verfügung. Die öffentliche Anbindung ist durch die Buslinie 63A gewährleistet (Richtung U4 Meidling Hauptstraße und U6 Niederhofstraße). Ab vorauss. 2032 soll es eine neue S-Bahn Station in der Benyastraße geben.

Highlights Wildgarten

* autofreies Gelände
* Tiefgaragenplätze zur Miete
* Begegnungszonen, Gemeinschaftsgärten und Naschgärten
* Kindergarten und Spielplätze im Grünen
* Billa direkt am Gelände
* Fußbodenheizung
* provisionsfrei für Käufer:innen

Gerne präsentieren wir Ihnen den Wildgarten und die verfügbaren Wohnungen im Rahmen einer Besichtigung. Auch bei Fragen rund um die Finanzierung unterstützen wir Sie gerne und freuen uns über Ihre Anfrage!

Infrastruktur / Entfernungen

Gesundheit
Arzt <1.025m
Apotheke <825m
Klinik <1.500m
Krankenhaus <1.025m

Kinder & Schulen
Schule <575m
Kindergarten <250m
Universität <3.700m
Höhere Schule <3.500m

Nahversorgung
Supermarkt <300m
Bäckerei <500m
Einkaufszentrum <1.525m

Sonstige
Geldautomat <1.250m
Bank <1.275m
Post <1.475m
Polizei <1.500m

Verkehr
Bus <200m
U-Bahn <1.625m
Straßenbahn <1.325m
Bahnhof <1.375m
Autobahnanschluss <1.700m

Angaben Entfernung Luftlinie / Quelle: OpenStreetMap

Merkmale

  • Erdgeschoss
  • Personenaufzug
  • Gäste-WC
  • Terrasse
  • Barrierefrei
  • Bad mit Dusche

Grundrisse

Grundrisse
1 / 1

Bausubstanz und Energie

Heizwärmebedarf (HWB)

B

Gesamtenergieeffizienz (fGEE)

A+
Immowelt logo

Preisdetails

Kaufpreis
459000 €
3.700,42 €/m²
Provision für Käufer
PROVISIONSFREI

Lage

address-icon
Lore-Kutschera-Weg 12Wien (1120)

Weitere Informationen

Stichworte Anzahl der Badezimmer: 1, Anzahl der separaten WCs: 3, Anzahl Terrassen: 1, Balkon-Terrassen-Fläche: 24,01 m², Kellerfläche: 12,10 m², Bundesland: Wien, Wohnungsnr.: 1+2

Weitere Services

Lust auf eine Besichtigung?
Eine Frage zur Immobilie?
Nachricht hinzufügen
Mit der Nutzung der oben angegebenen Telefonnummer oder durch Klicken auf „Kontaktieren“ akzeptierst Du die Allgemeinen Nutzungsbedingungen, denen Du jederzeit widersprechen kannst. Weitere Informationen zum Datenschutz

Über den Anbieter

Landstraßer Hauptstraße 60, 1030 WIEN
Herr Alexander KepkaDein Kontakt

Weitere Unterlagen

Online-ID: 259AMDWGKAVG
Referenznummer: OBGC20260224162945770bb6e087454
Wie zufrieden bist du mit dieser Seite (nicht mit der Immobilie selbst)?