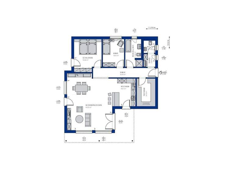
Das AMBIENCE 88 von Bien-Zenker zeigt eindrucksvoll, dass auch ein Bungalow genug Platz für die gesamte Familie bieten kann. Mit einer cleveren Raumaufteilung von 5.5 Zimmern und einer Wohnfläche von etwa 88 m² ist dieses architektonisch ansprechende Haus optimal auf die Bedürfnisse seiner Bewohner abgestimmt. Der offene Wohnbereich, der sich nach Süden hin öffnet, sorgt für eine lichtdurchflutete Atmosphäre und lädt zum Verweilen ein. Gleichzeitig sind die privaten Räume im ruhigen Norden untergebracht, was Ihnen eine erholsame Rückzugsmöglichkeit bietet. Egal, ob Sie sich für ein Sattel-, Walm- oder Flachdach entscheiden, jede Variante überzeugt durch stilvolle Architektur und durchdachten Komfort auf einer Ebene.
Bei der Ausstattung des AMBIENCE 88 haben Sie die Möglichkeit, Ihre individuellen Wünsche und Vorstellungen zu verwirklichen. Die großzügige Grundstücksgröße von 650 m² ermöglicht es Ihnen, sowohl einen schönen Garten als auch eine gemütliche Terrasse zu gestalten, wo Sie entspannte Stunden im Freien genießen können. Das Haus erfüllt zudem die Anforderungen des staatlichen Qualitätssiegels QNG für Nachhaltigkeit. Durch diese Zertifizierung profitieren Sie von mehr Energieeffizienz und Wohngesundheit, was sich nicht nur positiv auf Ihre Lebensqualität auswirkt, sondern auch auf mögliche Fördermöglichkeiten.
In der gewählten Ausbaustufe übernehmen wir den Rohbau und den technischen Innenausbau für Sie. Dies bedeutet, dass Sie sich um die Böden, Malerarbeiten und Sanitärinstallationen kümmern können. Dieser Ansatz gibt Ihnen die Freiheit, Ihre Vorstellungen und Kreativität einzubringen, während Sie gleichzeitig von einem komfortablen Bauablauf profitieren. Unsere erfahrenen Handwerker stellen sicher, dass alle technischen Details und Standards eingehalten werden, sodass Sie rechtzeitig in Ihr neues Zuhause einziehen können.
Bien-Zenker ist nicht nur ein Hausanbieter, sondern Ihr Partner auf dem Weg zum eigenen Zuhause. Unsere 115-jährige Erfolgsgeschichte und das Engagement von über 700 Mitarbeitenden stehen für die Qualität und Individualität, die jedes Bien-Zenker Haus auszeichnet.
Grundrisse und Abbildungen können Extras zeigen. Flächenangaben nach DIN 277.
Merkmale
650 m² Grundstück
offene Küche
Badezimmer: Badewanne, Bad mit Dusche, Bad mit Fenster
Ausstattung Gerne planen wir gemeinsam mit Ihnen Ihr exklusives Traumhaus - abgestimmt auf die Ausstattung, die für Sie persönlich den entscheidenden Mehrwert bietet. Bien-Zenker steht seit Jahrzehnten für hochwertige Architektur, energieeffiziente Technik und ein Ausstattungspaket, das bereits im Standard weit über dem Branchenniveau liegt. Bereits enthalten sind: - Individuelle Architektenplanung nach Ihren Vorstellungen - Energieeffiziente Bauweise gemäß GEG in moderner Holzfertigbauweise - Innovatives Luft-Luft-Wärmepumpensystem o Heizen, Lüften und Kühlen in einem System o Inklusive Wärmerückgewinnung o Allergikerfreundliches Raumklima - Hochwertige Bien-Zenker Wandtechnologie für optimale Energieperformance - 3-fach-verglaste Markenfenster mit erhöhten Schallschutzwerten - Sicherheits-Hauseingangstür in moderner Optik - Elektroinstallation nach DIN, auf Wunsch erweiterbar (Smart Home) - Marken-Sanitärprodukte (z. B. Villeroy & Boch, Hansgrohe) - Bodenebene Dusche im Bad - Komplettes Lüftungskonzept für kontinuierlich frische Luft - Persönlicher Bauleiter und engmaschige Qualitätsprüfung - Blower-Door-Test inklusive - Festpreisgarantie und definierter Bauablauf für maximale Planungssicherheit - Flexible Grundrissgestaltung - anpassbar an Ihre Wünsche - Transparente Energie- und Fördermittelberatung Darüber hinaus profitieren Sie über Bauplatz-Macher von einem erweiterten Grundstücksservice - inklusive Zugang zu attraktiven Grundstücken, die regulär nicht am Markt verfügbar sind. Selbstverständlich planen wir Ihr Bien-Zenker Haus auch auf einem bereits vorhandenen Grundstück.
Grundrisse
Grundrisse
1 / 1
Virtueller Rundgang
Video
Video
Realisiere Dein Projekt
Bausubstanz und Energie
Der Anbieter hat keine Informationen zum Energieverbrauch bereit gestellt.
HaustypKfW 40
EnergieträgerLuft-/Wasser-Wärmepumpe
Preisdetails
Kaufpreis
499599 €499.599 €
5.677,26 €/m²
Provision für Käufer
Bitte beachte, das Angebot kann bei Vertragsabschluss die Zahlung einer Provision beinhalten. Weitere Informationen erhältst Du vom Anbieter.
Geschätzte Gesamtkosten
559.901 €1
Kaufpreis
499.599 €
Kaufnebenkosten
60.302 €
2
Notarkosten (1,5%)
7.494 €
Grunderwerbsteuer (6,5%)
32.474 €
Provision für Käufer (3,57%)
17.836 €
Grundbucheintrag (0,5%)
2.498 €
1Der angezeigte Wert ist eine automatisch berechnete Schätzung von immowelt.
2Bei den Angaben handelt es sich um ortsübliche Werte. Individuelle Kosten können abweichen.
Lage
Milspe, Ennepetal (58256)
Der Anbieter hat die genaue Adresse nicht freigegeben
Ennepetal bietet Ihnen eine hervorragende Lebensqualität mit einer Vielzahl von Möglichkeiten für Bildung, Gesundheit, Einkauf und Freizeit direkt vor Ihrer Haustür. In der Umgebung finden Sie zahlreiche Kindergärten und Schulen, die eine solide Ausbildung für Ihre Kinder gewährleisten. Gesundheitsdienstleister und Arztpraxen sind ebenfalls gut erreichbar, sodass Sie sich stets um Ihr Wohlbefinden kümmern können. Einkaufsmöglichkeiten sind in Form von Supermärkten, Fachgeschäften und Einkaufszentren vorhanden und bieten Ihnen alles, was Sie für den täglichen Bedarf benötigen. Die Anbindung an den öffentlichen Nahverkehr ist in Ennepetal ausgezeichnet, sodass Sie bequem in die umliegenden Städte pendeln können. Auch die Autobahn ist in kurzer Zeit erreichbar, was Ihnen eine schnelle Verbindung zu den nahegelegenen Großstädten und eine unkomplizierte Anreise zu Ihren Zielorten ermöglicht. In Ihrer Freizeit erwarten Sie zahlreiche Möglichkeiten zum Wandern und Radfahren in der umliegenden Natur, die Ihnen Erholung und Entspannung bietet. Insgesamt genießen Sie in Ennepetal eine perfekte Kombination aus urbanem Leben und naturnaher Umgebung, die Ihr neues Zuhause bereichern wird.
Weitere Informationen
Sonstiges
Sonstiges Um Bauherren im hochwertigen Neubausegment im gesamten Ruhrgebiet zuverlässig zu begleiten, arbeite ich mit einem gewachsenen Netzwerk aus Architekten, Vermessern, Finanzierungspartnern und regionalen Grundstückseigentümern zusammen. Durch meine Tätigkeit für Bien-Zenker sowie die enge Kooperation mit Bauplatz-Macher profitieren Sie zusätzlich von einem strukturierten Zugang zu passenden Grundstücken - einschließlich exklusiver Flächen, die regulär nicht am Markt erhältlich sind. Der im Exposé angegebene Preis umfasst bereits das Grundstück. Selbstverständlich planen wir Ihr neues Zuhause auch auf einem bereits vorhandenen Grundstück. In einem persönlichen Beratungsgespräch erstelle ich für Sie eine transparente und detaillierte Gesamtkostenaufstellung, damit Sie jederzeit Klarheit über Ihr Budget haben. Das Angebot ist unverbindlich und freibleibend; es bezieht sich auf die Ausbaustufe "Zur Ausstattung fertig" und versteht sich zuzüglich Baunebenkosten. Die dargestellten Hausvarianten enthalten teilweise Sonderausstattungen. Seriosität, Verbindlichkeit und eine klare, transparente Arbeitsweise prägen meine Projekte seit vielen Jahren. Wenn Sie eine professionelle, vorausschauende Beratung wünschen und Wert auf eine sichere Umsetzung legen, unterstütze ich Sie gern persönlich bei Ihrem Bauvorhaben. Ihr Sven Sommerfeld Freie Handelsvertretung für Bien-Zenker | Partner Bauplatz-Macher www.bauplatz-macher.com Mobil: 0171 / 269 42 94 E-Mail: sven.sommerfeld@bien-zenker.de