Version: 8.26.0Navigation überspringen
1.650 €
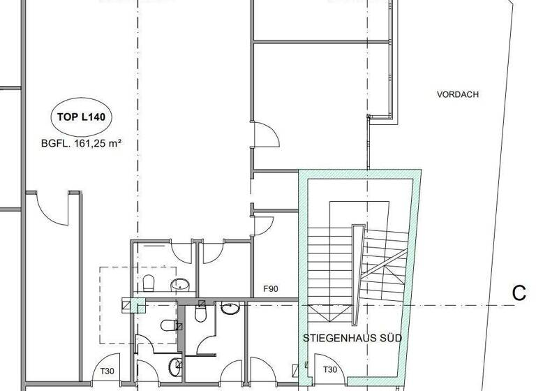
161,3 m² Bürofläche
Immowelt logo

Bürofläche zur Miete
1.650 €
161,3 m² Bürofläche

Büro im Gewerbepark Rossau L140

Die zur Miete stehende Büroeinheit mit einer Bruttogeschossfläche von ca. 161,25 m² befindet sich im ersten Obergeschoss des renommierten Gewerbeparks Rossau im Haus Valiergasse 58 in Innsbruck.

Raumaufteilung:
- Open Office Bereich
- drei separate Büroräume (einer davon klimatisiert)
- Teeküche
- Garderobenraum
- Archiv
- Serverraum
- eine Toilette
Direkt neben dieser Einheit befinden sich Toiletten zur Mitbenützung. Die Reinigungskosten sind in den Betriebskosten inkludiert.

Hinsichtlich der Raumaufteilung ist der Vermieter bereit auf die Anforderungen des Mieters einzugehen.

In der direkt darunter liegenden Tiefgarage mit einer Höhe von ca. 2,9 Metern können Abstellplätze angemietet werden.

Merkmale

  • Bezug: sofort
  • 1. Geschoss
  • Personenaufzug, Lastenaufzug

Grundrisse

Verschaffe dir einen genauen Überblick über die Raumaufteilung.selection_property_house-icon

Bausubstanz und Energie

Möchtest du Details zum Energieverbrauch?info_energy_calculation-icon
  • Zustand der ImmobilieGepflegt
Immowelt logo

Mietkosten

Nettokaltmiete
1.650 €
Betriebskosten
640 €
Provision für Mieter
3 BMM zzgl. 20 % USt. bei einer Laufzeit über 3 Jahre
Kaution
keine Angabe

Lage

address-icon
Valiergasse 58AmrasInnsbruck (6020)
Im Osten von Innsbruck, im renommierten GEWERBEPARK ROSSAU, steht im ersten Obergeschoss (mit zwei Lastenliften) diese Büroeinheit zur Miete.

Die günstige Verkehrslage für Ihre Kunden und Mitarbeiter durch den direkten Autobahnanschluss Innsbruck-Ost, die Nähe zur Stadt und die Anbindung an das öffentliche Verkehrsnetz (Linie T und F im 15 Minutentakt) zeichnen diesen Standort aus.

Weitere Informationen

Sonstiges Bruttogeschossfläche: ca. 161,25 m²
Miete pm: € 1.650,- netto zzgl. 20 % USt.
Betriebskosten pm: € 640,- netto zzgl. 20 % USt. inkl. Heizkosten
TG-Abstellplatz pm: € 80,- netto zzgl. 20 % USt. und € 20,- BK zzgl. USt.
Energiekennzahlen: HWB 29,04 kWh/m²a
Kaution: 4 Bruttomonatsmieten
Verfügbarkeit: ab sofort
Vertragsdauer: nach Vereinbarung

HINWEIS
EISENKIES Immobilien ist beauftragt, die gegenständliche Liegenschaft zu vermieten. Alle Objektangaben wurden nach besten Wissen und Gewissen gemacht. Da diese jedoch teilweise auf Informationen Dritter beruhen, können wir für die Richtigkeit keine Haftung übernehmen.

NEBENKOSTEN
Kosten für die Errichtung des Mietvertrages in der Höhe eines Bruttomonatsmietzinses zzgl. 20% USt.
Vergebührung beim Finanzamt (= Miete inkl. BK/HK x Laufzeit des MV, davon 1 %)
Vermittlungshonorar in der Höhe von 3 Bruttomonatsmieten zuzügl. 20 % USt. bei einer Laufzeit über 3 Jahre Stichworte StromAnschlußwert: 19 kW, Bundesland: Tirol, Distanz zum Flughafen: 13.0, Distanz zum Hauptbahnhof: 5.0, Distanz zur Autobahn: 0.3, Distanz zum Bus: 0.1

Weitere Services

Lust auf eine Besichtigung?
Eine Frage zur Immobilie?
Mit einer persönlichen Nachricht hast du bessere Chancen auf eine Antwort.
Mit der Nutzung der oben angegebenen Telefonnummer oder durch Klicken auf „Kontaktieren“ akzeptierst Du die Allgemeinen Nutzungsbedingungen, denen Du jederzeit widersprechen kannst. Weitere Informationen zum Datenschutz

Über den Anbieter

Schlöglstraße 55, 6050 HALL IN TIROL
Frau Ingrid Dadam-SchwablDein Kontakt
Online-ID: 26W15EAWWU44
Referenznummer: EK-48
Wie zufrieden bist du mit dieser Seite (nicht mit der Immobilie selbst)?