Version: 8.22.4Navigation überspringen
545.000 €
4 Zimmer  •  113,9 m²  •  523 m² Grundstück
Immowelt logo

Haus zum Kauf
545000 €
2.163 €/m²
4 Zimmer  •  113,9 m²  •  523 m² Grundstück

BUNGALOW I riesiger Wohnkeller I ideale Wohnküche I Wohnraumlüftung I Bahnhofs-Nähe I

In einer ruhigen Sackgasse von Strasshof erwartet Sie ein gepflegtes Einfamilienhaus in familienfreundlicher Wohnlage.

Es eignet sich hervorragend für Familien, die ihrem ältesten Kind einen eigenen Rückzugsbereich ermöglichen möchten, ebenso wie für Selbstständige, die im außergewöhnlich großzügigen Wohnkeller ideale Voraussetzungen für ihre berufliche Tätigkeit finden - aber auch für alle, die das Kellergeschoss als Hobby- oder Partybereich nutzen möchten. 

Auch das obere Geschoss ist nicht ohne! Auf einer Wohnfläche von ca. 114m² erstreckt sich eine äußerst durchdachte Raumaufteilung. 
Das große Plus: Sämtliche Wohnräume sind ebenerdig angelegt und ermöglichen komfortables Wohnen ohne Treppensteigen.
 

Einige der Highlights für Sie auf einen Blick:

* ca. 113,90 m² Wohnfläche 
* alle Wohnräume sind ebenerdig erreichbar 
* toll angelegter und beheizter Wohnkeller 
* Wohnraumlüftung 
* elektrische Außenbeschattungen 
* voll ausgestattete DAN-Küche 
* Tageslichtbad mit Dusche, Badewanne und Doppelwaschbecken
* großzügige und super geschnittene Wohnküche 
* KFZ-Stellplätze 
* Enthärtungsanlage 
* doppelverglaste Fenster 
* südlich ausgerichteter Garten+Terrasse 
* wärmegedämmt
* Baujahr: 2005 

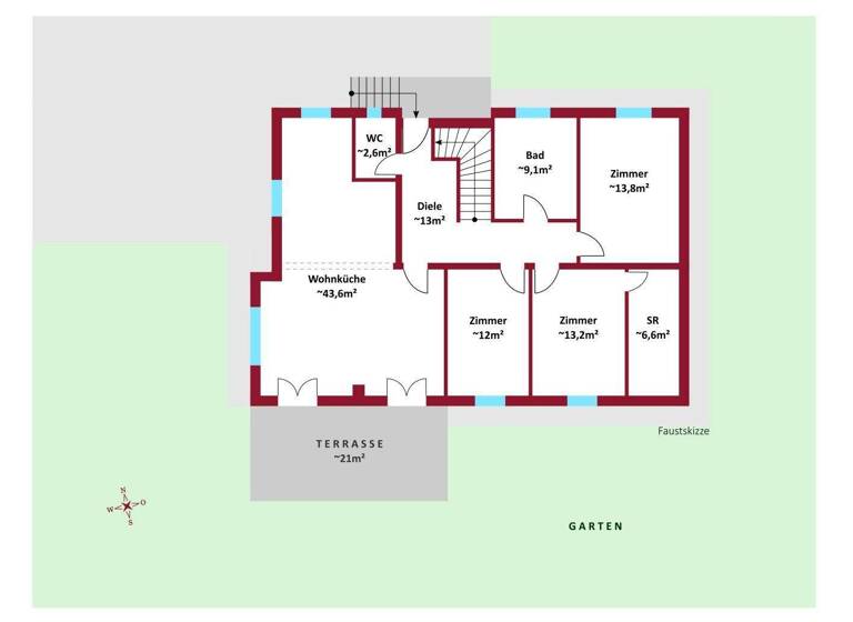
Die vorteilhafte Raumaufteilung gestaltet sich wie folgt: 

* einladend offenes Vorzimmer, aus dem jeder Raum zentral begehbar ist 
* ca. 43,6m² große Wohnküche mit Ausgang auf die ca. 21m² große Terrasse 
* 3 Schlafzimmer, davon eines mit eigenem Schrankraum 
* Tageslichtbad mit Dusche, Badewanne und Doppelwaschbecken
* separates WC mit Handwaschbecken 

Im Kellergeschoss stehen Ihnen zurzeit 3 separate Räume zur Verfügung, die durch eine angepasste Raumtrennung individuell gestaltet werden können.

Die Lage: 
Herrliche Ruhelage! 
Das Haus befindet sich in einer ruhigen Sackgasse. 
Sie genießen eine tolle Infrastruktur und rasche Anbindung nach Wien. 
Nur ca. 6 Autominuten bzw. ein Spaziergang entfernt befindet sich der Bahnhof Silberwald. 
Geschäfte des täglichen Bedarfs und auch Ärzte können gut zu Fuß erreicht werden. 

Wien ca. 13km

Bahnhof Silberwald ca. 1,3km 

Kindergarten ca. 1km
Volksschule ca. 950m
Mittelschule ca. 1km 

Billa Plus ca. 500m

 

Gerne steht Ihnen Frau Maja Arsic für weitere Fragen bzw. flexibel gestaltbare Besichtigungstermine unter 0699 180 47 130 [tel:069918047130] zur Verfügung.  

www.ringsmuth-immobilien.at

Irrtum und Änderungen vorbehalten!

Der Vermittler ist als Doppelmakler tätig.

Infrastruktur / Entfernungen

Gesundheit
Arzt <1.500m
Apotheke <2.500m
Klinik <5.500m

Kinder & Schulen
Kindergarten <1.000m
Schule <1.000m

Nahversorgung
Supermarkt <500m
Bäckerei <2.500m

Sonstige
Bank <2.000m
Geldautomat <2.000m
Post <3.000m
Polizei <5.500m

Verkehr
Bus <500m
Bahnhof <500m

Angaben Entfernung Luftlinie / Quelle: OpenStreetMap

Merkmale

  • 523 m² Grundstück
  • Einbauküche, offene Küche
  • 2 Stellplätze: 2 Außen-Stellplätze
  • Garten
  • Terrasse
  • Badezimmer: Badewanne, Bad mit Dusche, Bad mit Fenster

Grundrisse

Grundrisse
1 / 4

Realisiere Dein Projekt

Bausubstanz und Energie

Heizwärmebedarf (HWB)

C

Gesamtenergieeffizienz (fGEE)

B
  • Zustand der ImmobilieNeubau
Immowelt logo

Preisdetails

Kaufpreis
545000 €
2.162,70 €/m²
Provision für Käufer
3% des Kaufpreises zzgl. 20% USt.
Weitere Preisinformationen
2 Stellplätze

Lage

address-icon
Strasshof an der Nordbahn (2231)
Der Anbieter hat die genaue Adresse nicht freigegeben
Wien ca. 13km

Bahnhof Silberwald ca. 1,3km 

Kindergarten ca. 1km
Volksschule ca. 950m
Mittelschule ca. 1km 

Billa Plus ca. 500m

Weitere Informationen

Stichworte Süd-Balkon/Terrasse, Nutzfläche: 252,00 m², Anzahl der Badezimmer: 1, Anzahl der separaten WCs: 1, Anzahl Terrassen: 1, Balkon-Terrassen-Fläche: 21,00 m², Kellerfläche: 117,20 m², Bundesland: Niederösterreich

Weitere Services

Lust auf eine Besichtigung?
Eine Frage zur Immobilie?
Nachricht hinzufügen
Mit der Nutzung der oben angegebenen Telefonnummer oder durch Klicken auf „Kontaktieren“ akzeptierst Du die Allgemeinen Nutzungsbedingungen, denen Du jederzeit widersprechen kannst. Weitere Informationen zum Datenschutz

Über den Anbieter

Hackhofergasse 1, 1190 WIEN
partner badge
3 Jahre Partnerschaft
Maja ArsicDein Kontakt
Online-ID: 2mudm5s
Referenznummer: OBGC20251220230456382e5705f7233
Ringsmuth Immobilien
Ringsmuth Immobilien
Bewertung: 5 von 5 Sternen
Nachricht hinzufügen
Mit der Nutzung der oben angegebenen Telefonnummer oder durch Klicken auf „Kontaktieren“ akzeptierst Du die Allgemeinen Nutzungsbedingungen, denen Du jederzeit widersprechen kannst. Weitere Informationen zum Datenschutz
Wie zufrieden bist du mit dieser Seite (nicht mit der Immobilie selbst)?