Version: 8.24.0Navigation ĂĽberspringen
980.000 €
1.400 m² Lagerfläche
Immowelt logo

Produktionshalle zum Kauf
980000 €
1.400 m² Lagerfläche

Gewerbeobjekt in Jahnsdorf zu verkaufen!

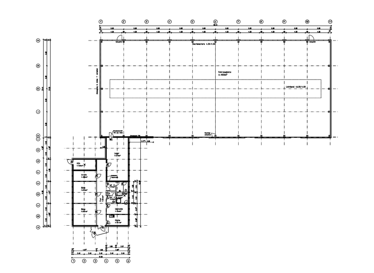
Gebäude für Produktion, Werkstätten oder Lagergebäude mit Büro- und Sozialräumen in Jahnsdorf zu verkaufen. Stahlrahmenbauweise (Raster 5 m - 5,50 m) mit Sandwichelementen ohne Innenwände, Flachdach mit Oberlicht, Tragschale aus Trapezblechprofilen mit Bitumendichtbahnen.

Merkmale

  • Bezug: sofort
  • 6.165 m² GrundstĂĽck
  • AuĂźen-Stellplatz
  • LKW-Zufahrt
Hallenhöhe: 4,82 m - 5,33 m - 4,82 m
HallenmaĂźe: 50 m x 22 m
Andienung ebenerdig über 10 Rolltore (Maße je Breite 4 m Höhe 4,50 m)

Heizung: steuerbare Decken- und Wandheizkörper / in Halle Gebläseheizung
Energie: 160 kVA
Bauart: Stahlrahmenbauweise (Raster 5 m - 5,50 m) mit Sandwichelementen ohne Innenwände, Flachdach mit Oberlicht, Tragschale aus Trapezblechprofilen mit Bitumendichtungsbahnen, Isolierglasfenster, elektr. Außenjalousieanlage, Grundstück komplett umzäunt, 2 Toranlagen vorhanden

Hallenhöhe: 4,82 m - 5,33 m-4,82 m
HallenmaĂźe: 50 m x 22 m
Zugang: ebenerdig über 10 Rolltore (Maße je Breite 4 m Höhe 4,50 m möglich)

Grundrisse

Grundrisse
1 / 1

Realisiere Dein Projekt

Bausubstanz und Energie

Energieausweis

  • Baujahr1994
  • EnergieträgerFlĂĽssiggas
Immowelt logo

Preisdetails

Kaufpreis
980000 €
Provision für Käufer
3% zzgl. Mehrwertsteuer
Geschätzte Gesamtkosten
1.009.400 €1
Kaufpreis
980.000 €
Provision für Käufer (3%)
29.400 €
1Der angezeigte Wert ist eine automatisch berechnete Schätzung von immowelt.
2Bei den Angaben handelt es sich um ortsübliche Werte. Individuelle Kosten können abweichen.

Lage

address-icon
Fabrikstraße 2, Pfaffenhain, Jahnsdorf/Erzgeb. (09387)
Die Gemeinde Jahnsdorf befindet sich etwa zehn Kilometer südwestlich des Chemnitzer Stadtzentrums und sechs Kilometer nordöstlich der Großen Kreisstadt Stollberg/Erzgeb. Innerhalb des rund 26 km² großen Gemeindegebietes befindet sich der Hauptort Jahnsdorf im Südosten. Das Objekt befindet sich direkt am Verkehrslandeplatz Chemnitz/Jahnsdorf. Die Autobahn A72 ca. 5 km entfernt in 8 Minuten erreichbar, Autobahnkreuz Chemnitz (BAB 4/BAB 72) ca. 20 km entfernt in 15 Minuten erreichbar. Flughafen Dresden in 94 km und Flughafen Halle/Leipzig in 114 km Entfernung. Gute Anbindung an ÖPNV (Bus und Citybahn ca. 1 km).

Weitere Informationen

Besichtigungstermine Besichtigung nach Absprache möglich!

Weitere Services

Lust auf eine Besichtigung?
Eine Frage zur Immobilie?
Nachricht hinzufĂĽgen
Mit der Nutzung der oben angegebenen Telefonnummer oder durch Klicken auf „Kontaktieren“ akzeptierst Du die Allgemeinen Nutzungsbedingungen, denen Du jederzeit widersprechen kannst. Weitere Informationen zum Datenschutz

Ăśber den Anbieter

Markus Fugel
Markus FugelMaklerbĂĽro
Hofer StraĂźe 7d, 09224 Chemnitz-Mittelbach
partner badge
Partnerschaft
Herr Nikolas RonczkaDein Kontakt
Online-ID: 2h4kk5z
Markus Fugel
Markus Fugel
Nachricht hinzufĂĽgen
Mit der Nutzung der oben angegebenen Telefonnummer oder durch Klicken auf „Kontaktieren“ akzeptierst Du die Allgemeinen Nutzungsbedingungen, denen Du jederzeit widersprechen kannst. Weitere Informationen zum Datenschutz
Wie zufrieden bist du mit dieser Seite (nicht mit der Immobilie selbst)?