
Loewenfeld Bauen Immobilien Konzepte GmbH
060 ···
Nr. anzeigenPreise & Kosten
Provision für Käufer
provisionsfrei
Lage
Umrahmt von Spessartwäldern, in einem seitlich des Mains gelegenen Tal, liegt Leidersbach mit seinen Ortsteilen Ebersbach, Leidersbach, Roßbach und Volkersbrunn. Kinderkrippe, Kindergarten sowie die Grund- und Mittelschule finden Sie vor Ort. Die weiterführenden Schulen finden Sie in naher Umgebung. Leidersbach bietet Ihnen...
Das Haus
Kategorie
Doppelhaushälfte
Baujahr
2026
Bezug
2026
Energie & Heizung
Warum sehe ich diese Anzeige? – Du siehst diese Anzeige basierend auf Ihrer Navigation auf unserer Website und den Suchkriterien, die du verwendet hast.
Energieausweis: für diesen Gebäudetyp nicht notwendig
Weitere Energiedaten
Heizungsart
Fußbodenheizung
Details
Objektbeschreibung
Hier ist die Welt noch in Ordnung: Sie möchten mit Ihrer Familie entspannt auf dem Land leben. Dann ist diese Doppelhaushälfte in Leidersbach genau das Richtige für Sie.
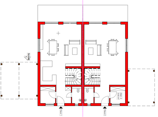
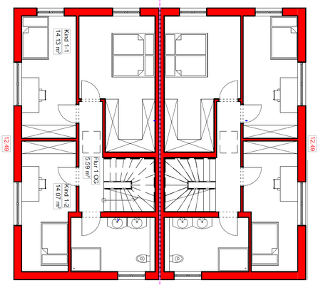
Das projektierte Haus ist wie folgt aufgeteilt: Im Erdgeschoß finden Sie Eingangsbereich mit Gäste-WC und Hauswirtschaftsraum. Hier erreichen Sie den...
Ausstattung
Unser Angebot umfasst das Baugrundstück mit massiv gebautem Haus inkl. Dacheindeckung gemäß unserer Baubeschreibung. Hierzu gehören insbesondere:
- Projektierung
- die individuelle Planung mit Statik und Wärmeschutzberechnung
- Baugenehmigung
- tragende sowie nicht tragende Wände aus massiven Ziegelsteinen
-...
Weitere Informationen
Sonstiges
Auf Grundriss und Ausstattung können Sie noch Einfluss nehmen. Eigenleistungen, die Sie erbringen möchten, binden wir sehr gerne auf Ihren persönlichen Wunsch perfekt in unsere Bauplanung mit ein.
Alle Qualitätsmerkmale finden Sie in unserer technischen Baubeschreibung. Die ausführliche Baubeschreibung des...
Anbieter der Immobilie
Online-ID: 2ldg45y
Referenznummer: Ab-LEID-401-1#130479477#bb95Hq
Finde Angebote wie dieses
Hier geht es zu unserem Impressum, den Allgemeinen Geschäftsbedingungen, den Hinweisen zum Datenschutz und nutzungsbasierter Online-Werbung.