




Mehrfamilienhaus zum Kauf • als Kapitalanlage geeignet540000 €2.160 €/m²12 Zimmer • 250 m² • 2.500,3 m² Grundstück
540000 €
2.160 €/m²
12 Zimmer • 250 m² • 2.500,3 m² Grundstück
Wohnen & Vermieten - MFH und zwei Bungalows in Zessin am Neuendorfer Wiek
Merkmale
- Bezug: nach Absprache
- 2.500,3 m² Grundstück
- Einbauküche
- Kein Keller
- 6 Stellplätze
- Garten
- Terrasse
- möbliert
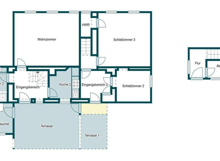
Grundrisse
Grundrisse
1 / 5
Virtueller Rundgang
3D tour

Realisiere Dein Projekt
Bausubstanz und Energie
Energieausweis
G
- Baujahr1950
- Zustand der Immobilierenovierungsbedürftig / sanierungsbedürftig
- HeizungsartZentralheizung
- EnergieträgerElektro
Preisdetails
Kaufpreis
540000 €
2.160 €/m²
Provision für Käufer
Die Provision i.H.v. 3,57 % inkl. MwSt. ist mit Kaufvertragsbeurkundung fällig, sofern der Verkaufspreis über 83.000,00 € liegt.
Liegt der Verkaufspreis dagegen bei/unter 83. Weitere Informationen siehe Provisionshinweis.
Liegt der Verkaufspreis dagegen bei/unter 83. Weitere Informationen siehe Provisionshinweis.
Geschätzte Gesamtkosten
583.308 €1
Kaufpreis
540.000 €
Kaufnebenkosten
43.308 €
2Notarkosten (1,5%)
8.100 €
Grunderwerbsteuer (6%)
32.400 €
Provision für Käufer (0,02%)
108 €
Grundbucheintrag (0,5%)
2.700 €
1Der angezeigte Wert ist eine automatisch berechnete Schätzung von immowelt.
2Bei den Angaben handelt es sich um ortsübliche Werte. Individuelle Kosten können abweichen.
Lage

Zessin, Neuenkirchen (18569)
Der Anbieter hat die genaue Adresse nicht freigegeben
Weitere Informationen
Weitere Services
Lust auf eine Besichtigung?
Eine Frage zur Immobilie?
Über den Anbieter
Online-ID: 2nus95n
Referenznummer: 58827b9c57
Wie zufrieden bist du mit dieser Seite (nicht mit der Immobilie selbst)?




