Version: 8.24.1Navigation überspringen
1.285.000 €
10 Zimmer  •  296,7 m²  •  765 m² Grundstück
Immowelt logo

Mehrfamilienhaus zum Kauf
1285000 €
4.331 €/m²
10 Zimmer  •  296,7 m²  •  765 m² Grundstück

3-Familienhaus in traumhafter Lage mit großem Garten und Pool

Die Top-Lage und eine grundsolide Bauweise werden Sie bei diesem Wohnhaus sehr zu schätzen wissen, das einer Familie künftig viel Platz und Entfaltung bietet.
Die drei Wohneinheiten - getrennt voneinander erreichbar über ein Treppenhaus - wurden seit Erbauung bisher ausschließlich als ein Familiendomizil selbst genutzt. Selbstverständlich wäre für einen künftigen Besitzer ebenso eine Vermietung der einzelnen Einheiten möglich.

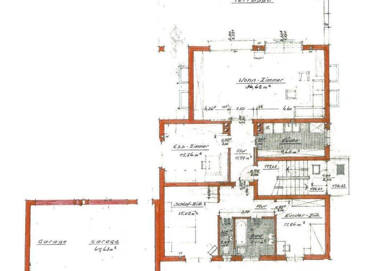
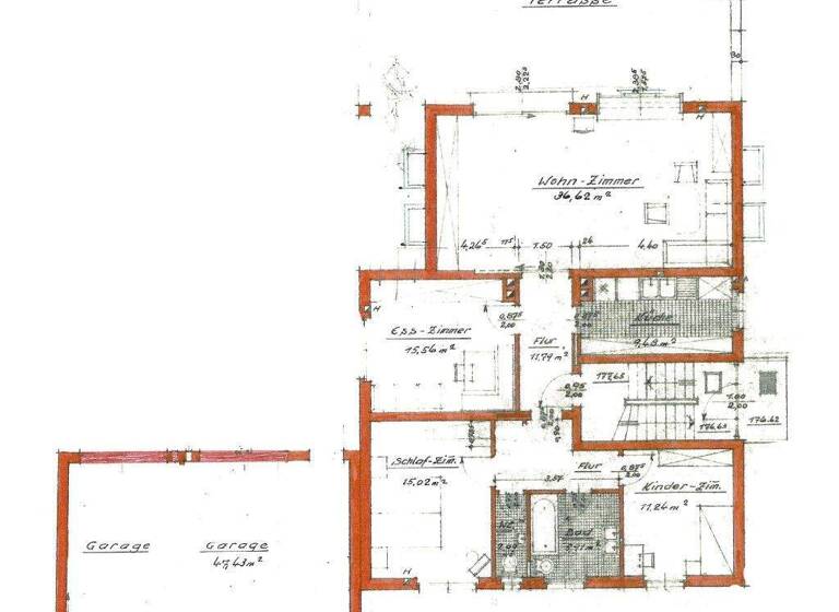
Die beiden in sich abgeschlossenen Wohnungen im Erdgeschoss und im 1.Obergeschoss verfügen über jeweils 4 Zimmer, Küche, Gäste-WC und ein großes Badezimmer mit Tageslicht.
Wunderschön öffnet sich die Wohnung im Erdgeschoss auf eine riesige Sonnenterrasse mit direktem Zugang in den herrlich angelegten Garten und den Außenpool. Die Wohnung im 1. Obergeschoss verfügt über einen über 2 Seiten umlaufenden großen Balkon mit Gartenblick.
Die großzügig gestaltete 2 Zimmer Studio-Dachgeschosswohnung mit großem Badezimmer, Küche und einer überdachten Loggia rundet das Raumangebot ab.

Das Haus ist komplett unterkellert. Dort befinden sich u.A. ein großer Fitnessraum mit Sauna und Dusche, ein klimatisierter Weinkeller mit Klimaboden, Technik/Heiz- und Öltankkeller, ein Waschkeller, ein WC und ein Abstellraum.

Baujahr 1968
1974 Ausbau Dachgeschoss, Erneuerung aller Dachfenster in 2021
Hinweis: Baujahresbedingt sind Modernisierungen nötig, um dem heutigen Stand der Technik und Ausstattungstrend zu entsprechen. Weiterhin sind Maßnahmen zur energetischen Ertüchtigung des Gebäudes durchzuführen. Hierzu wird die Beratung durch einen Energieberater Ihrer Wahl empfohlen. Das Gebäude verfügt bereits über eine Photovoltaik-Anlage.

Der Garten ist liebevoll angelegt und das gesamte Grundstück ist umzäunt. Ein Gartenhaus bietet Platz für alles rund um den Garten. Der große Hofraum verfügt über zusätzlichen Parkraum oder eine wunderbare Spielfläche für Kinder.

Merkmale

  • Bezug: Nach Absprache
  • 765 m² Grundstück
- Das Haus wurde in Stein mit 30 cm Außenmauerwerk erbaut
- Fußböden: Fliesen und Teppichboden
- Bäder: Fliesen/Wand und Boden
- Treppenhaus massiv mit schönem weißem Holzgeländer, derzeit Teppichbelag
- Außenpool: Der Pool ist als Betonwanne erbaut und gefliest. Technik ist zu erneuern.
- PV-Anlage auf dem Dach (6 kPw mit LG Modulen)

Nutzfläche:
Kellergeschoss ca.100 m²
Garage für 3 PKWs ca. 47,44 m²

Heizung:
Ölzentralheizung (Viessmann, Baujahr 1995), Öltank mit 9.000 Ltr.
Ein Energiebedarfsausweis liegt vor:
Endenergiebedarf: 257,0 kWh/(m².a)
Energieeffizienzklasse: H

Grundrisse

Grundrisse
1 / 4

Realisiere Dein Projekt

Bausubstanz und Energie

Energieausweis

H
  • Baujahr1968
  • Zustand der ImmobilieGepflegt
  • HeizungsartZentralheizung
  • EnergieträgerÖl
Immowelt logo

Preisdetails

Kaufpreis
1285000 €
4.330,68 €/m²
Provision für Käufer
2,5% inkl. 19% MwSt.
Geschätzte Gesamtkosten
1.387.800 €1
Kaufpreis
1.285.000 €
Notarkosten (1,5%)
19.275 €
Grunderwerbsteuer (3,5%)
44.975 €
Provision für Käufer (2,5%)
32.125 €
Grundbucheintrag (0,5%)
6.425 €
1Der angezeigte Wert ist eine automatisch berechnete Schätzung von immowelt.
2Bei den Angaben handelt es sich um ortsübliche Werte. Individuelle Kosten können abweichen.

Lage

address-icon
InnenstadtAschaffenburg (63739)
Der Anbieter hat die genaue Adresse nicht freigegeben
Das Haus befindet sich in angesagter ruhiger Lage, mit kurzer Entfernung in die Aschaffenburger Innenstadt und direkter Nähe zur Natur.
Im näheren Umfeld befinden sich ausgezeichnete Einkaufsmöglichkeiten, Ärzte, Kindergärten, Grundschule, weiterführende Schulen jeglicher Art sowie die Techn. Hochschule und das Klinikum.
Durch die zahlreichen Grüngürtel in der Umgebung, besteht die Möglichkeit, verschiedenste Sport- und Freizeitmöglichkeiten zu nutzen.
Die Autobahn BAB A3 ist verkehrsabhängig in ca. 10 Minuten Fahrtzeit erreichbar. Der Internationale Flughafen Frankfurt ist ca. 50 km entfernt.

Weitere Informationen

Hinweis Das Angebot erfolgt unter dem Hinweis, dass wir bei Abschluss eines Kaufvertrages durch unseren Nachweis oder unsere Vermittlung eine Provision in Höhe von 2,5 % incl. gesetzl. MwSt. aus dem Kaufpreis dem Käufer berechnen. Zahlbar nach Rechnungsstellung und Kaufpreisfälligkeit.

Hinweis: Wir sind mit der Vermittlung dieser Immobilie beauftragt und haben mit dem Verkäufer einen Vertrag in gleicher Höhe geschlossen.
Die Höhe der Courtage richtet sich nach den ab dem 23.12.2020 in Kraft getretenen gesetzlichen Regelungen zur Teilung der Maklerprovision.

Grunderwerbsteuer, Notar- und Grundbuchkosten sind vom Käufer zu tragen.

Selbstverständlich eröffnen sich mit dem Erwerb einer Immobilie auch Fragen, die in keinem Exposé beantwortet werden können. Wir stehen Ihnen deshalb gerne und kompetent für nähere Informationen sowie für einen Besichtigungstermin zur Verfügung.

WICHTIG: Um Ihnen ein Expose per E-Mail zusenden zu können, benötigen wir Ihre vollständige Adresse.

Konnten wir mit unserem Angebot Ihr Interesse wecken?
... unser Team ist gerne für Sie da.

Weitere Services

Lust auf eine Besichtigung?
Eine Frage zur Immobilie?
Nachricht hinzufügen
Mit der Nutzung der oben angegebenen Telefonnummer oder durch Klicken auf „Kontaktieren“ akzeptierst Du die Allgemeinen Nutzungsbedingungen, denen Du jederzeit widersprechen kannst. Weitere Informationen zum Datenschutz

Über den Anbieter

Wolfslaufstraße 7, 63768 Hösbach
Frau Eva-Maria Staudt-HochreinDein Kontakt
Online-ID: 2nclq5s
Referenznummer: P3295
Franz Staudt Immobilien GmbH
Franz Staudt Immobilien GmbH
Nachricht hinzufügen
Mit der Nutzung der oben angegebenen Telefonnummer oder durch Klicken auf „Kontaktieren“ akzeptierst Du die Allgemeinen Nutzungsbedingungen, denen Du jederzeit widersprechen kannst. Weitere Informationen zum Datenschutz
Wie zufrieden bist du mit dieser Seite (nicht mit der Immobilie selbst)?