

Logistikzentrum zur Miete10.000 €3.904 m² Lagerfläche
10.000 €
3.904 m² Lagerfläche
Logistik- und Gewerbefläche mit 14 Überladebrücken - flexibel teilbar
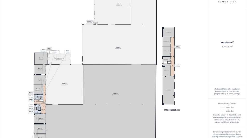
Grundrisse
Verschaffe dir einen genauen Überblick über die Raumaufteilung.

Virtueller Rundgang
3D tour

Realisiere Dein Projekt
Bausubstanz und Energie
Möchtest du Details zum Energieverbrauch?

Mietkosten
Nettomiete zzgl. Nebenkosten
10.000 €
Provision für Mieter
3 Monatskaltmieten zzgl. MwSt.
Die Maklerprovision in Höhe von 3 Monatskaltmieten zzgl. MwSt. ist mit Abschluss des Mietvertrages verdient und fällig.
Die Höhe der Bruttocourtage unterliegt einer Anpassung bei Steuer-Satzänderung.
Die Maklerprovision in Höhe von 3 Monatskaltmieten zzgl. MwSt. ist mit Abschluss des Mietvertrages verdient und fällig.
Die Höhe der Bruttocourtage unterliegt einer Anpassung bei Steuer-Satzänderung.
Kaution
keine Angabe
Lage

Güdingen, Saarbrücken (66130)
Der Anbieter hat die genaue Adresse nicht freigegeben
Weitere Informationen
Weitere Services
Lust auf eine Besichtigung?
Eine Frage zur Immobilie?
Über den Anbieter
Saarbrücker Str. 51, 66292 Riegelsberg
3 Jahre Partnerschaft
Online-ID: 26AAAP7T8PWY
Referenznummer: 5026925

Kessel & Naumann Immobilien
Bewertung: 4,8 von 5 Sternen
Wie zufrieden bist du mit dieser Seite (nicht mit der Immobilie selbst)?

