Version: 8.25.1Navigation überspringen
Heimat Österreich gemeinnützige Wohnungs- u. Siedlungsges. mbH
687 €
3 Zimmer  •  76,3 m²

Wohnung zur Miete
687 €
3 Zimmer  •  76,3 m²

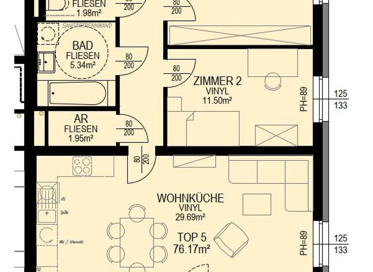
Schöne 3-Zimmer-Wohnung mit Balkon in Randegg

Diese charmante Wohnung bietet auf ca. 76,29 m² Wohnfläche ein angenehmes Zuhause zum Wohlfühlen. Sie verfügt über drei helle Zimmer und ist südseitig ausgerichtet, was für viel natürliches Licht sorgt.

Ein Highlight ist der ca. 7,54 m² große, sonnige Balkon, der direkt von der geräumigen Wohnküche aus begehbar ist - perfekt für entspannte Stunden im Freien. Die modernen Vinylböden in schöner Holzoptik verleihen den Räumen eine warme Atmosphäre.

Der Vorraum bietet ausreichend Platz zum Ankommen, und im praktischen Abstellraum lassen sich Dinge gut verstauen. Bad und WC sind getrennt - das sorgt für zusätzlichen Komfort im Alltag. Im Badezimmer lädt eine gemütliche Badewanne zum Entspannen ein. Vorraum, Abstellraum sowie Bad und WC sind mit geschmackvollen Fliesen ausgestattet.

Beheizt wird die Wohnung mittels Fernwärme, zusätzlich sorgt eine kontrollierte Wohnraumbelüftung für ein angenehmes Raumklima. Ein Kellerabteil, ein Lift sowie Gemeinschaftsräume wie Wasch- und Trockenraum, Fahrrad- und Kinderwagenraum stehen ebenfalls zur Verfügung.

Ein Stellplatz ist bereits in der Miete inkludiert.

Die Infrastruktur lässt keine Wünsche offen: Kindergarten, Schule, Einkaufsmöglichkeiten, Arzt und Bank sind bequem zu Fuß erreichbar. Die umliegende Natur lädt zu Spaziergängen ein, familienfreundliche Wanderwege und abwechslungsreiche Radrouten bieten Erholung für Groß und Klein.

Befristung: unbefristet, 1 Jahr Kündigungsverzicht 3 Monate Kündigungsfrist

Bezug: ab sofort 

Energiekennzahlen: Laut Energieausweis vom 05.11.2020 beträgt der Heizwärmebedarf 22,3 kWh/m²a Klasse B und der Gesamtenergieeffizienz-Faktor 0,73 Klasse C.

Der einmalige Finanzierungsbeitrag beträgt € 5.000,00 und die monatliche Miete beläuft sich auf € 686,61 inkl. BK und Ust.

Ihr neues Zuhause wartet auf Sie - Willkommen in Randegg!

Noch nichts gefunden? Wir informieren Sie über geeignete Immobilienangebote noch vor allen anderen.
Legen Sie jetzt Ihren individuellen Suchagenten unter folgendem Link an. Wir schicken Ihnen passende Immobilien exklusiv vorab zu.
Suchagent anlegen [https://heimat-oesterreich.service.immo/registrieren/de] - https://heimat-oesterreich.service.immo/registrieren/de

Infrastruktur / Entfernungen

Gesundheit
Arzt <450m
Apotheke <4.825m

Kinder & Schulen
Schule <50m
Kindergarten <150m

Nahversorgung
Supermarkt <175m
Bäckerei <5.150m

Sonstige
Bank <225m
Geldautomat <225m
Post <5.325m
Polizei <5.100m

Verkehr
Bus <150m

Angaben Entfernung Luftlinie / Quelle: OpenStreetMap

Merkmale

  • Bezug: sofort
  • Personenaufzug
  • Balkon
  • Badewanne
  • Bodenbelag: Fliesen

Grundrisse

Grundrisse
1 / 2

Realisiere Dein Projekt

Bausubstanz und Energie

Heizwärmebedarf (HWB)

B

Gesamtenergieeffizienz (fGEE)

A
  • Baujahr2020
  • Zustand der ImmobilieNeubau, Gepflegt
  • EnergieträgerFernwärme
MediumRectangleTop

Mietkosten

Gesamtmiete
686,61 €
Nettokaltmiete
nicht angegeben
Kaution
keine Angabe

Lage

address-icon
Taborweg 1Randegg (3263)
Die Marktgemeinde Randegg auch die Perle des kleinen Erlauftals genannt besticht vor allem durch die idyllische Grünlage mit Blick auf Hügeln, Wald und Weideflächen und dennoch finden Sie alle Geschäfte des täglichen Gebrauchs sowie Ärzte, Kindergarten, Volkschule, und weitere Institutionen in unmittelbarer Umgebung. Mehr Informationen finden Sie unter: www.randegg.at

Weitere Informationen

Stichworte Stellplatz vorhanden, Fahrradraum, Anzahl der Badezimmer: 1, Anzahl der separaten WCs: 1, Anzahl Balkone: 1, Balkon-Terrassen-Fläche: 7,54 m², Kellerfläche: 6,77 m², Bundesland: Niederösterreich, Wohnungsnr.: 5 Sonstiges/Wohnen: seniorengerechtes Wohnen

Weitere Services

Lust auf eine Besichtigung?
Eine Frage zur Immobilie?
Nachricht hinzufügen
Mit der Nutzung der oben angegebenen Telefonnummer oder durch Klicken auf „Kontaktieren“ akzeptierst Du die Allgemeinen Nutzungsbedingungen, denen Du jederzeit widersprechen kannst. Weitere Informationen zum Datenschutz

Über den Anbieter

Plainstr. 55, 5020 Salzburg
partner badge
Partnerschaft
Frau Luisa Burkhardt
Frau Luisa BurkhardtDein Kontakt

Weitere Unterlagen

Online-ID: 25PR2FCD2FVZ
Referenznummer: OBGC20250930084803678e68f590854
Heimat Österreich gemeinnützige Wohnungs- u. Siedlungsges. mbH
title
Heimat Österreich gemeinnützige Wohnungs- u. Siedlungsges. mbH
Bewertung: 4,2 von 5 Sternen
Nachricht hinzufügen
Mit der Nutzung der oben angegebenen Telefonnummer oder durch Klicken auf „Kontaktieren“ akzeptierst Du die Allgemeinen Nutzungsbedingungen, denen Du jederzeit widersprechen kannst. Weitere Informationen zum Datenschutz
MediumRectangleTop
MediumRectangleBottom
MediumRectangleTop
Wie zufrieden bist du mit dieser Seite (nicht mit der Immobilie selbst)?