Version: 8.26.0Navigation überspringen
474.650 €
5 Zimmer  •  147 m²  •  750 m² Grundstück
Immowelt logo

Einfamilienhaus zum Kauf • provisionsfrei
474650 €
3.229 €/m²
5 Zimmer  •  147 m²  •  750 m² Grundstück

Moderne Stadtvilla von Kern-Haus ruhig und doch citynah!

Der lichtdurchflutete Wohntraum 'Signus' lässt keine Wünsche offen. Auf zwei Vollgeschossen findet die ganze Familie Platz, um sich zu entspannen und frei zu entfalten. Die bodentiefen Fensterelemente machen das Haus zu einem Wohnerlebnis und zeigen die Großzügigkeit dieser zeitlosen Stadtvilla.

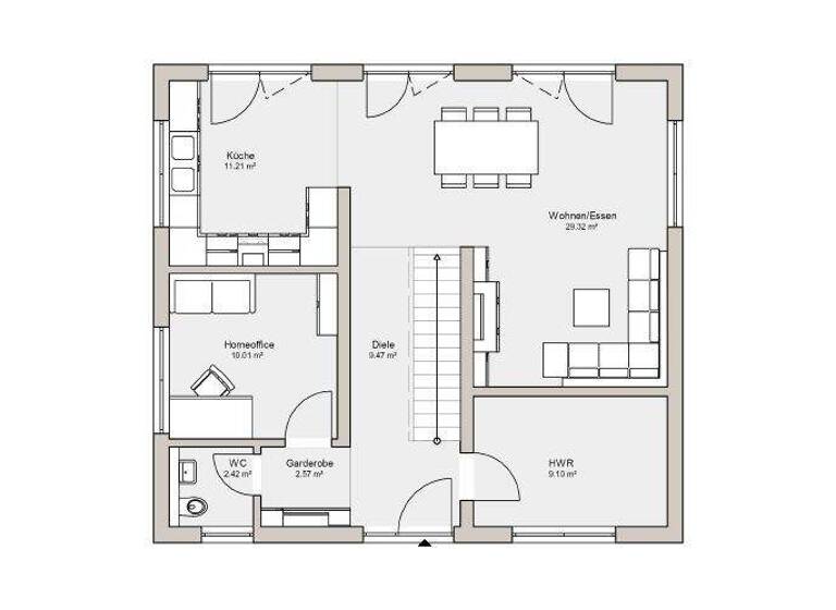
Gleich im Eingangsbereich zeigt die Stadtvilla Signus durch ihre Offenheit was sie zu bieten hat. Eine große Garderobe verstaut die Jacken und Mäntel der Bewohner sowie Besucher. Über einen langen Flur, vorbei an der geradläufigen Treppe, gelangen Sie in den Wohn-/Essbereich des Hauses, an den auch die offene Küche Anschluss findet. Von hier bieten die bodentiefen Fenster einen herrlichen Blick in den Garten. Des Weiteren befindet sich im Erdgeschoss ein Home-Office, das auch als Gäste-Zimmer genutzt werden kann, als auch ein Hauswirtschaftsraum und ein Gäste-WC.

Im Obergeschoss steht das Wohlbefinden jedes einzelnen Familienmitglieds im Vordergrund. Die Räume der Kinder sind großzügig gestaltet und sind ein angenehmer Rückzugsort. Das Elternschlafzimmer verfügt über ein angrenzendes Ankleidezimmer. Im Wellness-Bad kann die ganze Familie nach Herzenslust die Seele baumeln lassen.

Dieses Haus wird nach Ihren individuellen Wünschen geplant und ausgestattet!

Merkmale

  • 750 m² Grundstück
  • Badewanne
  • Gäste-WC
5 Zimmer, Küche, Diele, WC, Flur, Bad, Ankleide, Hauswirtschaftsraum, Garderobe

Das gezeigte Traumhaus im Überblick:

+ Schlüsselfertiges Massivhaus im Sinne der Ausstattungsbeschreibung "Easy"
+ Inklusive Bodenplatte

Beste Markenausstattung in jedem Kern-Haus:

+ Zimmermannsmäßiger Dachstuhl aus Konstruktionsvollholz
+ Dacheindeckung mit Betondachsteinen von Braas
+ Hochwertiger Kunstharz-Außenputz für eine langlebige Fassade
+ Vollständige Badausstattung von Villeroy & Boch mit Badewanne und flacher Duschwanne
+ Fliesen von Villeroy & Boch in Bad und WC
+ Haustür mit 3-fach-Sicherheitsverriegelung
+ Erstklassige Innentüren der Marke Herholz
+ Fenster mit 3-Scheiben-Wärmeschutzverglasung und Rollläden
+ Stahl-Holz-Treppe mit individueller Farbgestaltungsmöglichkeit
+ Elektroausstattung inklusive Klingelanlage
+ Rauchmelder für Ihre Sicherheit
+ Alle Leistungen aus einer Hand
+ Alle Planungs- und Architektenleistungen
+ Einsatz regionaler Handwerksbetriebe
+ Individuelle Anpassung auf Ihre Bedürfnisse
+ Auf Wunsch mit Keller erhältlich
+ Auf Wunsch mit weiteren Energietechniken erhältlich

Grundrisse

Grundrisse
1 / 2

Bausubstanz und Energie

Energieausweis

Der Anbieter hat keine Daten zum Energieausweis hinterlegt.
  • Baujahr2026
  • Zustand der ImmobilieNeubau, Projektiert
  • HeizungsartZentralheizung: Fußbodenheizung
Immowelt logo

Preisdetails

Kaufpreis
474650 €
3.228,91 €/m²
Provision für Käufer
provisionsfrei
Geschätzte Gesamtkosten
510.249 €1
Kaufpreis
474.650 €
Notarkosten (1,5%)
7.120 €
Grunderwerbsteuer (5,5%)
26.106 €
Grundbucheintrag (0,5%)
2.373 €
1Der angezeigte Wert ist eine automatisch berechnete Schätzung von immowelt.
2Bei den Angaben handelt es sich um ortsübliche Werte. Individuelle Kosten können abweichen.

Lage

address-icon
RöhrsdorfChemnitz (09247)
Der Anbieter hat die genaue Adresse nicht freigegeben
Das Grundstück ist Teil eines neuen kleinen Baugebiets in Chemnitz-Röhrsdorf.

Weitere Informationen

Sonstiges Kern-Haus

Kern-Haus baut individuelle und massive Architektenhäuser zu einem attraktiven Preis-Leistungs-Verhältnis - und das bereits mit einer Erfahrung seit 1980.

Maximale Sicherheit bei Kern-Haus:
+ 10 Jahre Gewährleistung auf die wesentlichen Bauleistungen
+ Bis zu 24 Monate Festpreisbindung
+ 50 Jahre Gewährleistung auf das DuoTherm-Mauerwerk
+ Verbindliche Bauzeit
+ Zahlung nach Baufortschritt

Preise und Auszeichnungen von Kern-Haus:
- German Brand Award in den Jahren 2018 und 2021
- Hausbau Design Award: Sieger in den Jahren 2017, 2018, 2019, 2020, 2021, 2022 und 2023
- Deutscher Traumhauspreis: Sieger in den Jahren 2014, 2015, 2016 und 2018 und Silber 2017, 2020 und 2021
- Mittelstandspreis "Top 100" in den Jahren 2014, 2016, 2018, 2020 und 2022
- German Design Award im Jahr 2018

Weitere Informationen

Der gezeigte Preis versteht sich inklusive Grundstück und exklusive der Baunebenkosten. Stichworte Stellplatz vorhanden, Anzahl der Schlafzimmer: 4, Anzahl der separaten WCs: 1

Weitere Services

Lust auf eine Besichtigung?
Eine Frage zur Immobilie?
Nachricht hinzufügen
Mit der Nutzung der oben angegebenen Telefonnummer oder durch Klicken auf „Kontaktieren“ akzeptierst Du die Allgemeinen Nutzungsbedingungen, denen Du jederzeit widersprechen kannst. Weitere Informationen zum Datenschutz

Über den Anbieter

Albert Einstein Str. 4, 09212 Limbach-Oberfrohna
Frau Janet Schrepel
Frau Janet SchrepelDein Kontakt
Online-ID: 251X9U7SX9WR
Referenznummer: KH 87_24
Wie zufrieden bist du mit dieser Seite (nicht mit der Immobilie selbst)?